
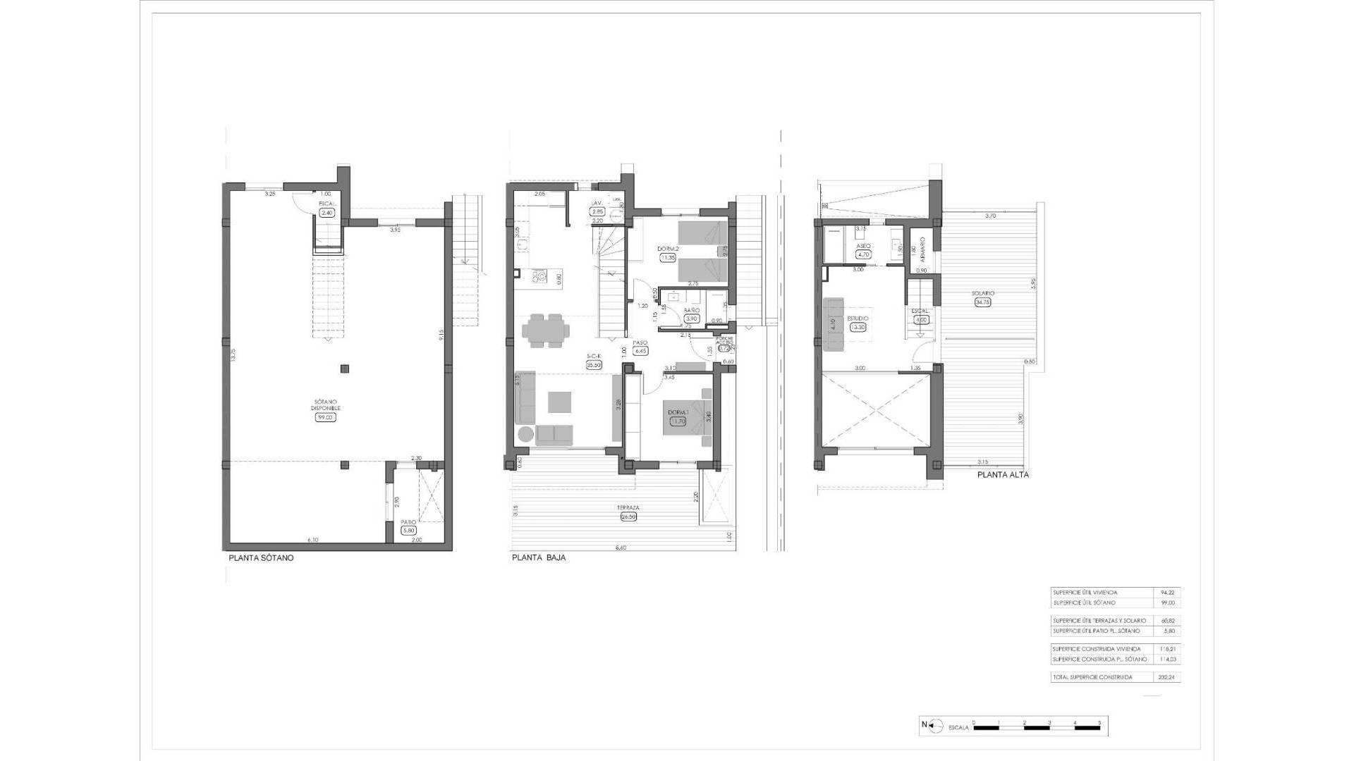
Villas jumelées neuves avec piscine privée dans le complexe La Finca Golf Resort, Algorfa Une vie méditerranéenne exclusive à La Finca Golf Découvrez ce nouveau complexe résidentiel exceptionnel situé dans le prestigieux complexe La Finca Golf Resort à Algorfa, sur la Costa Blanca Sud. Vous pouvez choisir entre des appartements de 2/3 chambres avec piscine commune ou des villas jumelées ou individuelles avec piscine privée. Entourée de fairways luxuriants et de paysages naturels, cette communauté offre un style de vie idyllique dans un environnement paisible et sécurisé. La charmante ville d'Algorfa est connue pour son caractère espagnol traditionnel, son excellente gastronomie et son atmosphère détendue, ce qui en fait une destination idéale pour les maisons de vacances et la vie permanente. Villas jumelées modernes avec piscine privée Ces villas jumelées magnifiquement conçues disposent de 3 chambres et 2 salles de bains, alliant fonctionnalité, confort et style moderne. Détails de l'agencement Rez-de-chaussée Salon et salle à manger lumineux et ouverts, reliés à une cuisine équipée Grandes portes coulissantes donnant directement accès au jardin et à la piscine privée Deux chambres spacieuses avec placards intégrés Une salle de bain complète Parking privé dans la propriété Étage supérieur Studio avec salle de bain, idéal pour un bureau, un salon ou un espace invités Accès à une terrasse privée ouverte de 30 m², parfaite pour prendre le soleil et se détendre Caractéristiques et finitions de haute qualité Construites selon des normes haut de gamme, ces villas offrent un confort contemporain pour vivre toute l'année, notamment Armoires encastrées dans toutes les chambres Volets électriques dans le salon et les chambres Salles de bains entièrement équipées avec miroirs et parois de douche Climatisation centralisée entièrement installée Jardin et piscine privés Emplacement privilégié à proximité des plages, du golf et des services La Finca Golf Resort est l'une des destinations de golf les plus renommées de la Costa Blanca, offrant une large gamme de services tels qu'un hôtel de luxe, des restaurants, un spa et des installations sportives. Le complexe bénéficie d'un accès rapide aux villes, plages et aéroports voisins, offrant commodité et connectivité. Distances vers les points clés La Finca Golf Club : accessible à pied Plages de Guardamar del Segura : 15 km Torrevieja et Orihuela Costa : 15 km Almoradí, Benijófar et Ciudad Quesada : à quelques minutes en voiture Aéroport d'Alicante : 35 km Profitez du meilleur de la vie sur la Costa Blanca Avec leur design moderne, leurs espaces extérieurs privés et leur emplacement privilégié, ces villas sont un excellent choix pour les familles, les investisseurs et les amateurs de golf à la recherche d'un style de vie de qualité dans le sud de l'Espagne. Contactez-nous dès aujourd'hui pour organiser une visite ou recevoir plus d'informations sur ce nouveau projet immobilier exclusif à La Finca Golf Resort, Algorfa.
Cette information donnée ici est sujette à des erreurs et ne fait partie d'aucun contrat. L'offre peut être modifiée ou retirée sans préavis. Les prix n'incluent pas les coûts d'achat
© 2026 Costa Weflen Group · Mentions légales · Intimité · Cookies · Plan du site
Conception: Mediaelx
Tout d’abord, merci de nous contacter.
Nous avons reçu votre demande concernant la référence du bien:N9538. Un de nos agents vous contactera dans les meilleurs délais.
Tout d’abord, merci de nous contacter.
Nous avons reçu une demande de rapport si vous abaissez le prix de la propriété avec la référence: N9538
En attendant, jetez un œil à cette sélection de propriétés similaires qui pourraient vous intéresser: