
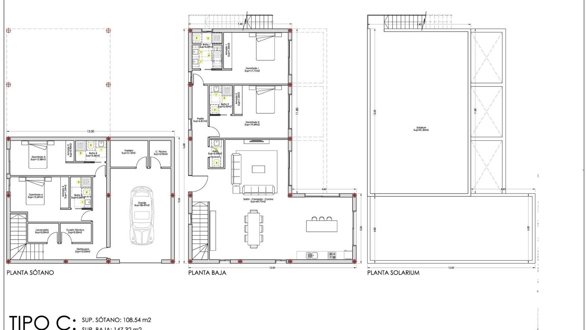
Villas neuves de luxe à Finestrat, près de Benidorm Collection exclusive de villas indépendantes durables Ce prestigieux complexe immobilier comprend 36 villas indépendantes situées dans le quartier très prisé de Bahia Golf à Finestrat, à seulement 3,5 km de la côte méditerranéenne. Conçues pour allier luxe, confort et durabilité, ces maisons modernes offrent un style de vie exceptionnel sur la Costa Blanca, en pleine nature mais à proximité de tous les services. Chaque villa dispose de 3 ou 4 chambres spacieuses, de jardins paysagers privés et d'une piscine à débordement privée. Certaines villas bénéficient d'une vue imprenable sur la mer, tandis que toutes les propriétés sont situées sur des terrains généreux de plus de 500 m2 avec des surfaces construites à partir de 222 m2. Aménagements flexibles avec sous-sol et solarium sur le toit Les acheteurs peuvent choisir parmi quatre aménagements différents, tous soigneusement conçus pour maximiser l'espace et la lumière naturelle. Chaque villa comprend un sous-sol avec parking privé, débarras, buanderie et deux chambres avec salle de bains attenante, reliées à un patio anglais pour la lumière naturelle et la ventilation. Le rez-de-chaussée comprend une ou deux chambres supplémentaires avec salle de bains attenante, des toilettes pour invités et une cuisine ouverte reliée au salon et à la salle à manger, avec accès direct à la terrasse et à la piscine. Un solarium sur le toit couronne chaque propriété, offrant une vue panoramique sur la montagne ou la mer et la possibilité d'installer un jacuzzi. Finitions de haute qualité et efficacité énergétique BREEAM Ces villas sont construites selon les normes de certification BREEAM, garantissant d'excellentes performances énergétiques et une responsabilité environnementale. Les spécifications haut de gamme comprennent : Fenêtres en aluminium à double vitrage avec rupture thermique et volets électriques Climatisation centralisée entièrement installée Portail d'accès motorisé Piscine privée et jardin paysager Cuisine moderne PORCELANOSA équipée d'appareils électroménagers Salles de bains design avec meubles, miroirs et douches à l'italienne Carrelage en grès cérame PORCELANOSA Emplacement privilégié à proximité des plages, du golf et des commerces Finestrat est une charmante ville située entre les montagnes et la mer, offrant une grande tranquillité tout en étant à quelques minutes seulement de la ville animée de Benidorm. La région allie beauté naturelle et excellentes infrastructures, écoles internationales, restaurants et centres commerciaux. Distances vers les principaux points d'intérêt Plages de Benidorm 3,5 km Centre commercial La Marina 1 km Golf Puig Campana 3 km Vieille ville de Benidorm 4 km Aéroport d'Alicante 55 km Accès à l'autoroute A7 2 km Vivez le rêve méditerranéen à Finestrat Ces villas offrent l'équilibre parfait entre luxe, nature et connectivité sur la Costa Blanca. Contactez-nous dès aujourd'hui pour recevoir plus d'informations ou pour organiser une visite privée de ces exceptionnelles maisons neuves à Finestrat.
Cette information donnée ici est sujette à des erreurs et ne fait partie d'aucun contrat. L'offre peut être modifiée ou retirée sans préavis. Les prix n'incluent pas les coûts d'achat