
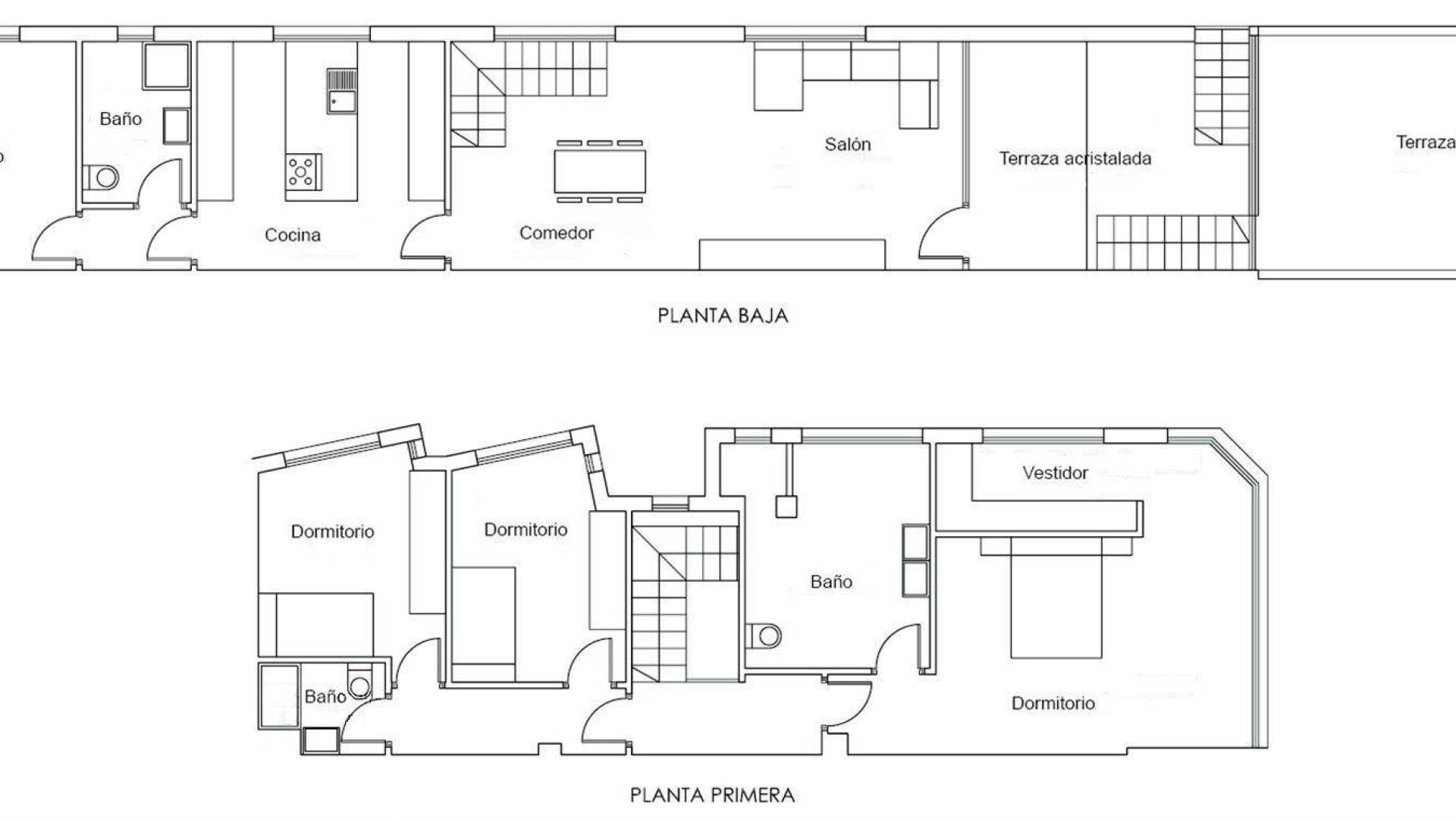
Duplex en Front de Mer avec Vue Panoramique, Terrasses et Parking ! Superbe duplex spacieux et lumineux, avec entrée privée et plusieurs terrasses, situé en première ligne face à la mer et à quelques pas de la plage de Playa del Cura. Parking inclus dans le prix. Au rez-de-chaussée : terrasse couverte idéale pour l’hiver, grande terrasse extérieure de 20 m², salon-salle à manger, grande cuisine avec îlot central, une chambre et une salle de bain avec douche. À l’étage : chambre principale avec lit king-size, salle de bain attenante avec douche et baignoire, et un dressing lumineux avec fenêtre. Plus deux autres chambres et une troisième salle de bain avec douche. Vendu meublé, avec climatisation et en excellent état — parfait pour vivre toute l’année ou comme résidence secondaire. Points forts : – Emplacement en première ligne avec vue imprenable – Entrée indépendante sur deux niveaux – 4 chambres, 3 salles de bains – Suite parentale avec dressing lumineux – Grandes terrasses à deux pas de la plage – Parking inclus – Entièrement meublé Ne manquez pas cette opportunité rare — contactez-nous dès aujourd’hui pour une visite !
Cette information donnée ici est sujette à des erreurs et ne fait partie d'aucun contrat. L'offre peut être modifiée ou retirée sans préavis. Les prix n'incluent pas les coûts d'achat
© 2026 Costa Weflen Group · Mentions légales · Intimité · Cookies · Plan du site
Conception: Mediaelx
Tout d’abord, merci de nous contacter.
Nous avons reçu votre demande concernant la référence du bien:MLSC758383. Un de nos agents vous contactera dans les meilleurs délais.
Tout d’abord, merci de nous contacter.
Nous avons reçu une demande de rapport si vous abaissez le prix de la propriété avec la référence: MLSC758383
En attendant, jetez un œil à cette sélection de propriétés similaires qui pourraient vous intéresser: