
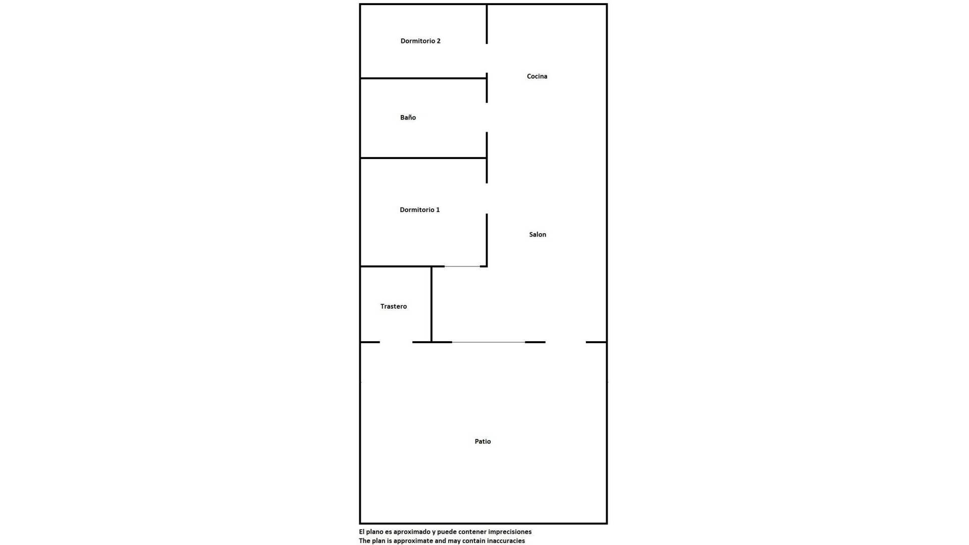
À vendre : maison entièrement rénovée de 54 m² avec un terrain spacieux de 30 m². Possibilité d’installer une piscine privée. Orientation est permettant de profiter du soleil une grande partie de la journée. Parfaite combinaison de confort moderne et de sécurité : - Intérieur moderne : murs isolés avec plaques de plâtre, hauts plafonds, nouvelles fenêtres et portes. - Sécurité : porte d’entrée solide avec trois points de verrouillage, caméra de surveillance connectée en Wi-Fi. - Installations modernes : nouvelle installation électrique avec protection par zones, plomberie et canalisation rénovées. - Confort toute l’année : nouvelle climatisation avec chauffage et refroidissement, éclairage réglable avec ventilateurs. - Cuisine et électroménager entièrement équipés : nouveau lave-vaisselle, lave-linge, sèche-linge, chauffe-eau, etc. - Terrain bien entretenu : nouvelle clôture et portail d’entrée, espace spacieux pour se détendre et recevoir. - Emplacement : quartier calme sans bars bruyants à proximité, mais proche des transports et à distance de marche de grands centres commerciaux, supermarchés, écoles, restaurants et bars. À 800 m, un lac salé crée un microclimat bénéfique pour le système respiratoire. À seulement 10 minutes en voiture des meilleures plages de Torrevieja et alentours. Optionnel : espace barbecue et piscine privée.
Cette information donnée ici est sujette à des erreurs et ne fait partie d'aucun contrat. L'offre peut être modifiée ou retirée sans préavis. Les prix n'incluent pas les coûts d'achat