
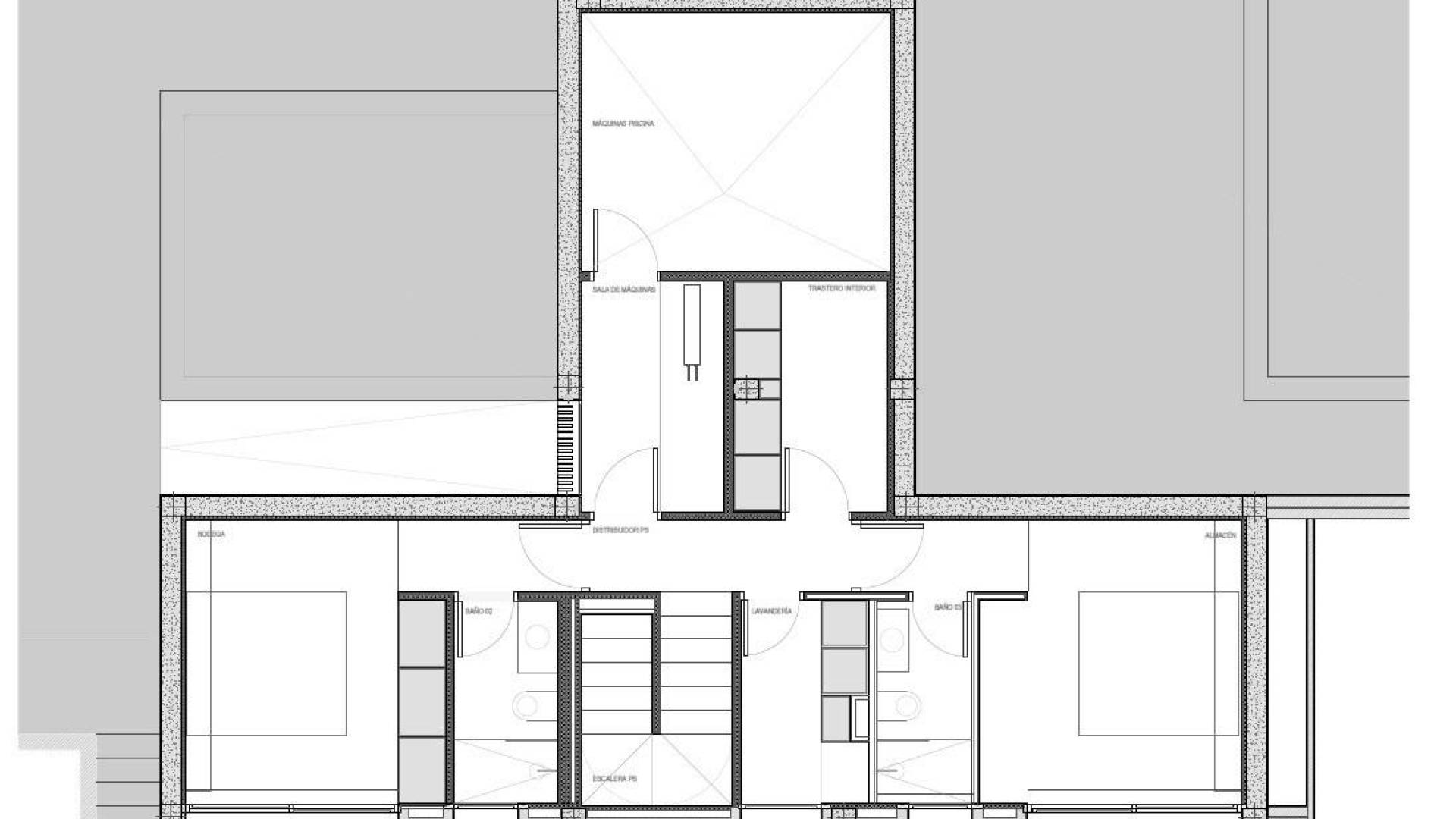
Villa neuve prête à emménager avec vue sur la mer à La Alberca Polop Villa moderne de luxe dans un cadre naturel de montagne Cette villa contemporaine prête à emménager est située à La Alberca, un quartier résidentiel calme de Polop, entouré de forêts et de montagnes. Située en hauteur, la propriété bénéficie d'une vue panoramique sur la mer Méditerranée, les montagnes et le centre historique de Polop. La villa offre intimité, tranquillité et excellentes connexions avec la côte et les villes voisines. Polop est un charmant village de la région de Marina Baixa, sur la Costa Blanca, connu pour son caractère traditionnel et son environnement naturel. La propriété est proche de tous les services de La Nucia, notamment des commerces, des restaurants, des centres sportifs et des écoles, tandis que les plages et les villes côtières animées ne sont qu'à quelques minutes en voiture. Aménagement spacieux sur le rez-de-chaussée, le sous-sol et le solarium La villa est répartie sur un étage principal, un sous-sol et un solarium sur le toit, offrant un espace de vie généreux et une grande flexibilité. À l'étage principal, un hall d'entrée accueillant avec placard intégré mène à deux chambres avec salle de bains, dont une suite parentale avec des portes-fenêtres relevables donnant sur un balcon Juliette et une terrasse. Le salon et la salle à manger ouverts communiquent directement avec une terrasse pergola couverte et une piscine privée d'eau salée. Le sous-sol comprend deux chambres supplémentaires avec salle de bains privative et grandes fenêtres, une salle de jeux ou une salle de cinéma modulable avec raccordements à l'eau et à l'électricité pour un coin bar, une buanderie entièrement équipée avec des appareils Haier et deux locaux techniques. Le solarium sur le toit offre un vaste espace extérieur avec vue panoramique sur la mer et est prêt pour l'installation future de panneaux solaires. Une cuisine extérieure, de nombreux casiers de rangement et un jardin paysager de style méditerranéen avec irrigation automatique complètent l'extérieur. Caractéristiques haut de gamme et efficacité énergétique Cette villa se distingue par ses finitions haut de gamme et ses installations de pointe, notamment Îlot central avec appareils électroménagers BOSCH intégrés Plans de travail en pierre naturelle à l'intérieur et à l'extérieur Pré-installation du chauffage au sol Système de climatisation aérothermique Mitsubishi Classe d'efficacité énergétique A Pré-installation pour système domotique Piscine d'eau salée avec chauffage en option Parking privé pour deux véhicules De grandes fenêtres avec vitrage anti-solaire maximisent la lumière naturelle tout en garantissant confort et sécurité. Emplacement et distances exceptionnels Centre de Polop à 2 km La Nucia à 4 km Benidorm à 12 km Altea à 10 km Plages à 10 km Villaitana Golf à 14 km Aéroport d'Alicante à 65 km Assurez-vous la maison de vos rêves à Polop Cette villa exceptionnelle, prête à emménager, allie intimité, design et vues panoramiques dans l'une des zones intérieures les plus attrayantes de la Costa Blanca. Contactez-nous dès aujourd'hui pour organiser une visite privée et faire de cette villa de luxe à La Alberca Polop votre nouvelle maison.
Cette information donnée ici est sujette à des erreurs et ne fait partie d'aucun contrat. L'offre peut être modifiée ou retirée sans préavis. Les prix n'incluent pas les coûts d'achat