Alicante (Costa Blanca) - Aspe Poligono 19
Ref.: N8934
Villa Nieuwbouw


Details

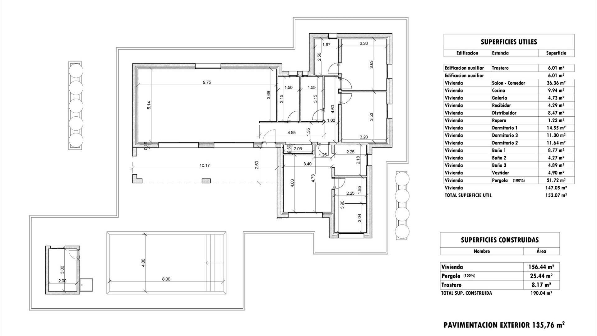
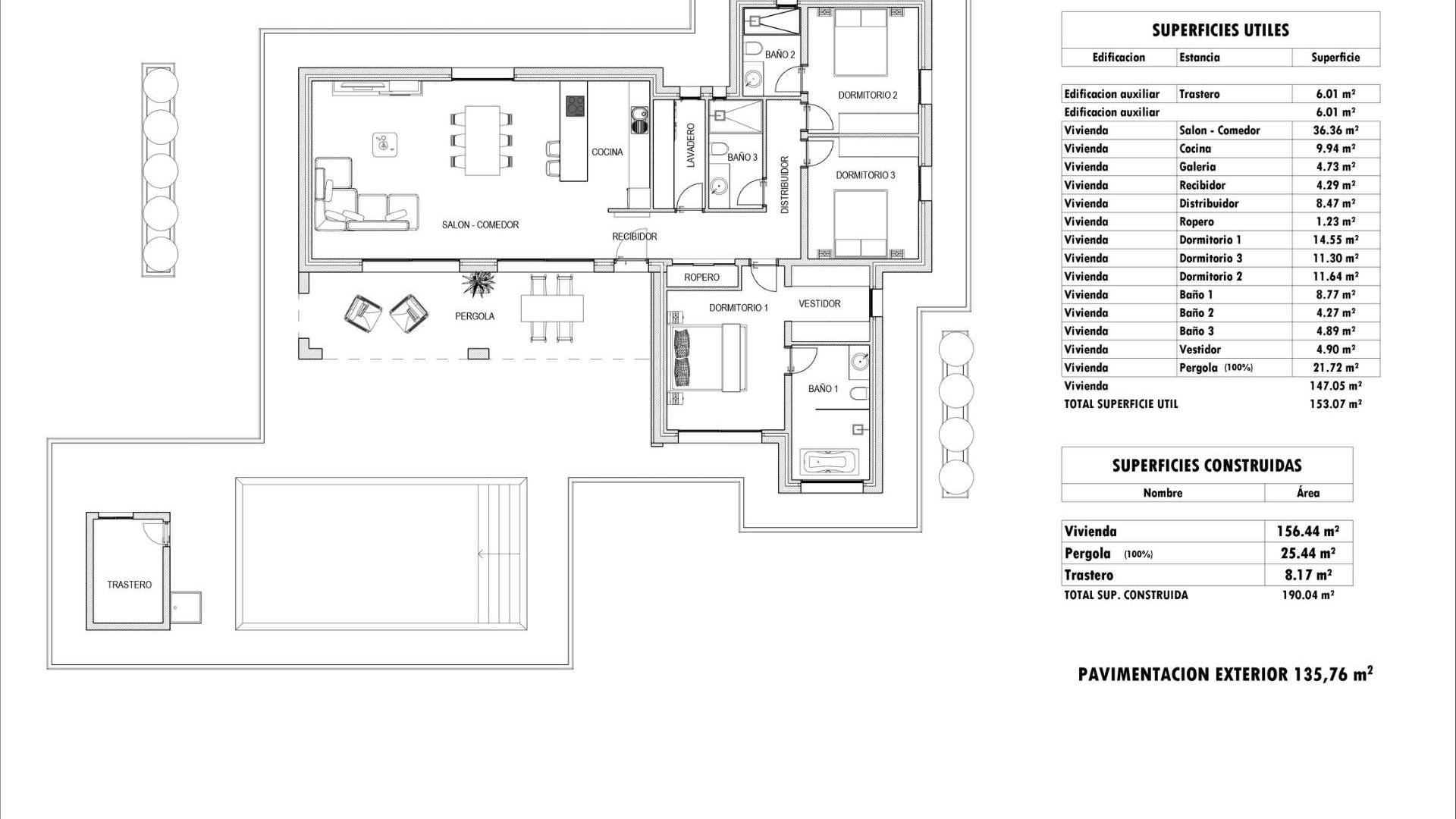
  • 190m2
  • 13.172m2
  • 3
  • 3
  •  

Kenmerken

icon Slaapkamers: 3
icon Badkamers: 3
icon Gebouwd: 190m2
icon Plot: 13.172m2
icon Zwembad: Ja
icon Private Pool
icon Gated
icon Near Schools
icon Number of Parking Spaces: 1
icon Air Conditioning: Pre-Installed
icon Garden
icon Double Bedrooms: 3
icon Terrace: 25 Msq.
icon Parking - Space
icon Location: Rural, Mountain
icon Beach: 25000 Meters
icon Useable Build Space: 153 Msq.
icon Storage / Trastero
Energy Rating
Energy Rating:
B

Beschrijving

Nieuwbouwwoningen gelegen in de gemeente Aspe. Nieuwbouwwoningen met verschillende modellen naar keuze met 2, 3 of 4 slaapkamers, met één of twee verdiepingen en gebouwd met platen of met een structuur: afhankelijk van het model en het gekozen perceel wordt de exacte prijs berekend. Alle villa's worden gebouwd op rustieke percelen van meer dan 10.000 m2, waarvan ongeveer 2.500 m2 omheind zal worden. De villa's beschikken over een open keuken met woonkamer, inbouwkasten, privézwembad, veranda, berging en buitenparkeerplaats. Er zijn verschillende percelen beschikbaar. Voor de prijsberekening is uitgegaan van een perceel met een prijs van 75 000 euro (als u een ander perceel kiest, betaalt u het verschil). Het project wordt in eigen beheer uitgevoerd en wordt binnen ongeveer 12 maanden na verlening van de vergunning opgeleverd. Als u op zoek bent naar een rustige omgeving, dicht bij typisch Spaanse dorpjes, ver weg van de toeristische drukte, omgeven door bergen, met een zeer groot perceel en op ongeveer 30 minuten van de zee, dan is dit uw huis. Aspe is een typisch Spaans dorp met alle voorzieningen voor het dagelijks leven, omgeven door bergen en met verschillende natuurgebieden in de omgeving waar u kunt wandelen of mountainbiken. Gelegen op 25 km van het strand, op 9 km van Elche en op ongeveer 20 km van de luchthaven van Alicante.

Lokatie

Economisch

Deze informatie is onderhevig aan fouten en maakt geen deel uit van een contract. De aanbieding kan zonder kennisgeving worden gewijzigd of ingetrokken. Prijzen zijn exclusief aankoopkosten.

Bereken hypotheken

Wisselkantoor

  • Pounds: 449.225 GBP
  • Russische roebel: 449.225 RUB
  • Zwitserse frank: 471.950 CHF
  • Chinese yuan: 4.081.477 CNY
  • Dollar: 603.159 USD
  • Zweedse kroon: 5.579.896 SEK
  • De Noorse kroon: 5.580.673 NOK

Vraag voor informatie

Responsable del tratamiento: Costa Weflen Group SL, Finalidad del tratamiento: Gestión y control de los servicios ofrecidos a través de la página Web de Servicios inmobiliarios, Envío de información a traves de newsletter y otros, Legitimación: Por consentimiento, Destinatarios: No se cederan los datos, salvo para elaborar contabilidad, Derechos de las personas interesadas: Acceder, rectificar y suprimir los datos, solicitar la portabilidad de los mismos, oponerse altratamiento y solicitar la limitación de éste, Procedencia de los datos: El Propio interesado, Información Adicional: Puede consultarse la información adicional y detallada sobre protección de datos Aquí.

Contact

Hilde Jeanette Weflen
Eigenaar en CEO Telefoon +34 639 689 651 E-mail hilde@cweflengroup.com

© 2026 Costa Weflen Group · Colofon · Privacy · Cookies · Web plattegrond

Ontwerp: Mediaelx

Contact WhatsApp
WhatsApp