
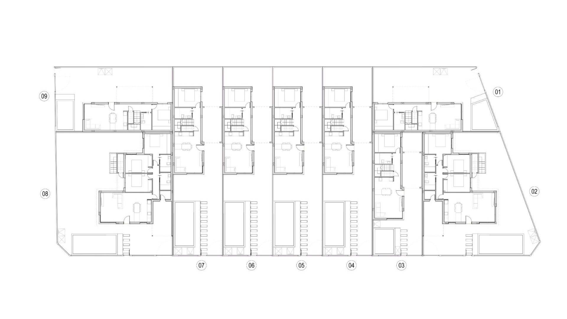
Nieuwbouwwoningen met privézwembad in Los Alcázares, Costa Cálida Exclusieve moderne villa's op slechts 700 meter van de zee Ontdek deze exclusieve woonwijk met 9 nieuwbouwwoningen in Los Alcázares, een van de meest gewaardeerde plaatsen aan de Costa Cálida vanwege de nabijheid van de zee, de ontspannen sfeer en het uitstekende aanbod aan diensten. Elke villa heeft een privézwembad, een onafhankelijke overdekte garage en is ontworpen om comfort, functionaliteit en een eigentijdse stijl te bieden. De woningen zijn verdeeld over één of twee verdiepingen en beschikken over 3 slaapkamers en 2 badkamers, een volledig uitgeruste open keuken, een ruime woonkamer, een terras en een tuin op de begane grond en een privé-solarium op de overbouw met een zomerkeuken. Dankzij de verschillende oriëntaties kunt u het hele jaar door de hele dag van de zon genieten. Hoogwaardige afwerking Deze villa's zijn ontworpen met materialen van topkwaliteit en bieden: Privézwembad met buitendouche Keuken uitgerust met apparatuur: koelkast, oven, ingebouwde magnetron, keramische kookplaat, afzuigkap en ingebouwde vaatwasser Inbouwkasten met lades Complete badkamers met meubel, spiegel met verlichting en douchewanden Voorbereiding voor airconditioning Installatie van 2 zonnepanelen Zomerkookplaats op het solarium Overdekte parkeerplaats op het perceel Onverslaanbare locatie aan de Costa Cálida Deze woningen liggen op slechts 700 meter van de stranden van de Mar Menor en bieden u de mogelijkheid om te genieten van een unieke natuurlijke omgeving met rustig en warm water. Los Alcázares combineert een ontspannen levensstijl met alle voorzieningen binnen handbereik: supermarkten, restaurants, sportfaciliteiten en gezondheidscentra. Ideaal als permanente woning of als vakantiehuis. Afstanden tot bezienswaardigheden Strand van Mar Menor: 0,7 km Golfbanen (Roda, La Serena, Mar Menor Golf): tussen 3 en 10 km Internationale luchthaven van Murcia: 30 km Cartagena: 22 km Winkelcentrum Dos Mares: 13 km Jachthaven van Los Alcázares: 2 km Uw toevluchtsoord van zon en rust aan de Middellandse Zee Deze villa's bieden de perfecte combinatie van modern design, privacy, comfort en een bevoorrechte ligging. Neem vandaag nog contact met ons op en plan uw bezoek om uw volgende woning aan zee te ontdekken.
Deze informatie is onderhevig aan fouten en maakt geen deel uit van een contract. De aanbieding kan zonder kennisgeving worden gewijzigd of ingetrokken. Prijzen zijn exclusief aankoopkosten.
© 2026 Costa Weflen Group · Colofon · Privacy · Cookies · Web plattegrond
Ontwerp: Mediaelx
Allereerst bedankt dat je contact met ons hebt opgenomen.
We hebben uw verzoek met betrekking tot de eigenschap referentie ontvangen:N9005. Een van onze agenten neemt zo snel mogelijk contact met u op.
Allereerst bedankt dat je contact met ons hebt opgenomen.
We hebben een aanvraag voor een rapport ontvangen als u de prijs van het onroerend goed met de referentie verlaagt: N9005
Bekijk in de tussentijd eens een selectie van vergelijkbare woningen die voor u van belang kunnen zijn: