
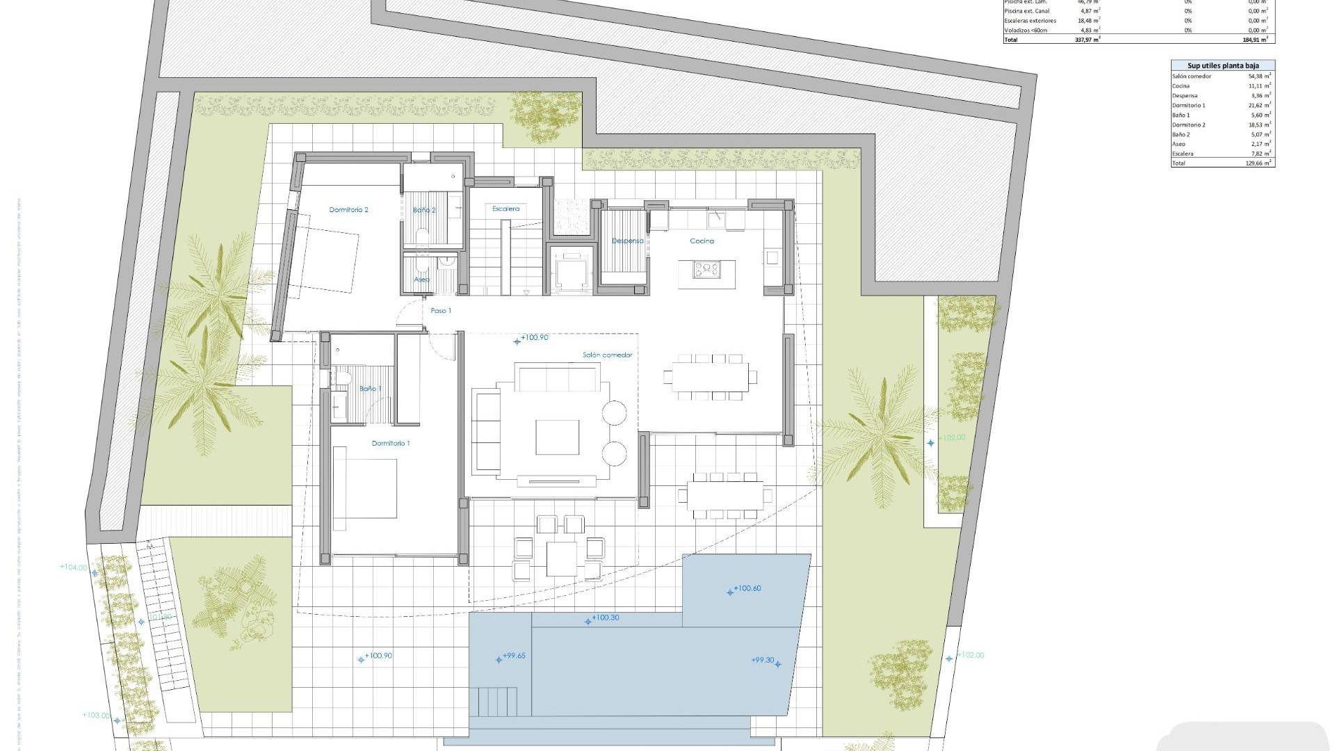
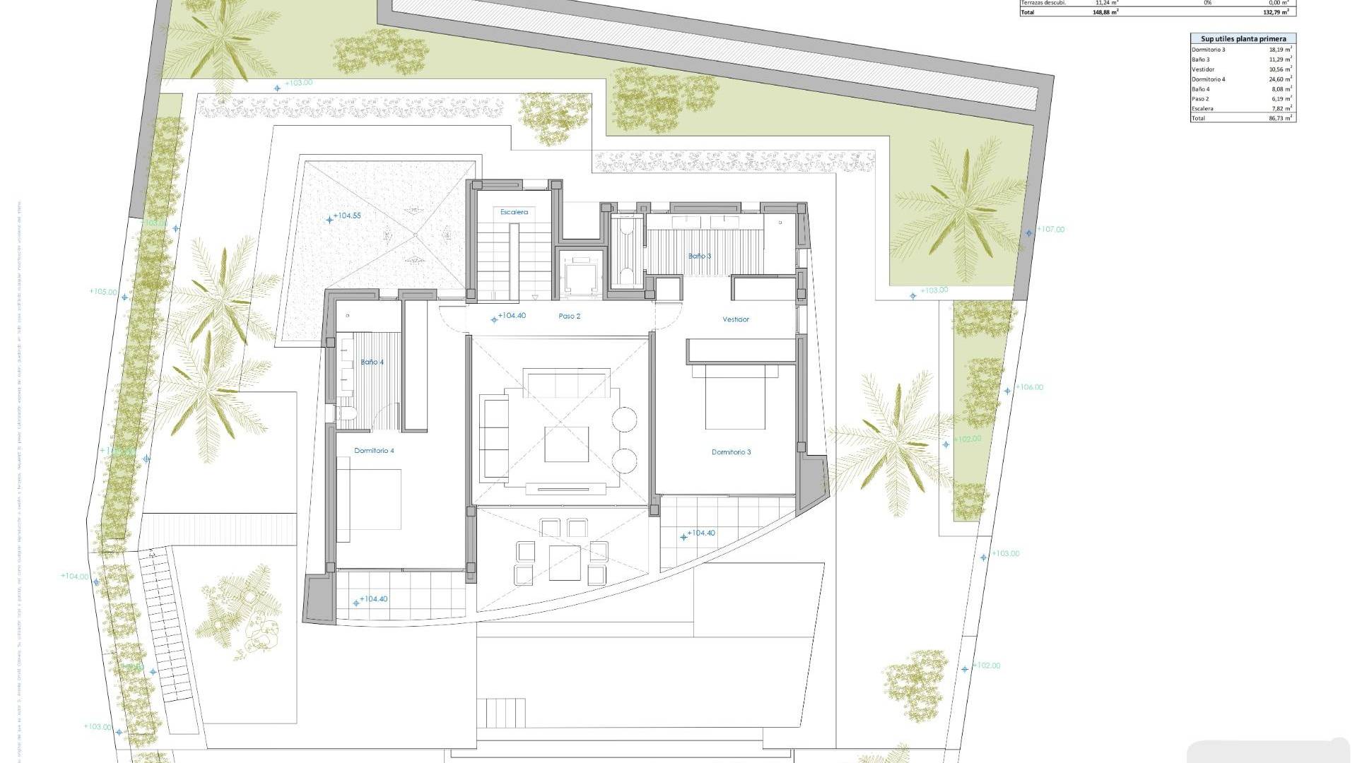
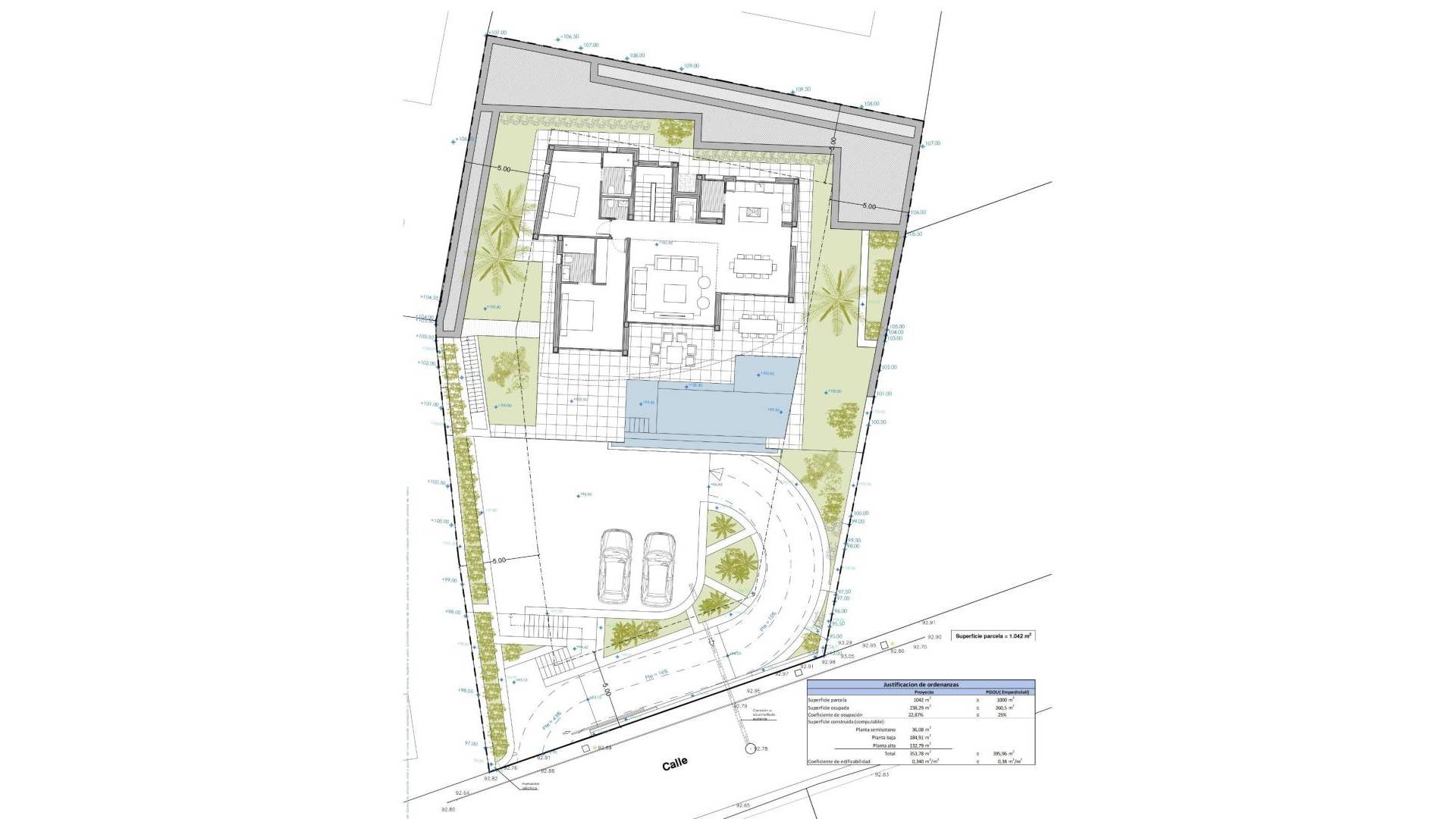
Luxe villa met zeezicht in Calpe - Moderne elegantie met prachtig uitzicht Toplocatie in Calpe, Alicante - Rustige en gevestigde wijk Deze luxe villa ligt in Calpe, Alicante, in een rustige en gevestigde buurt die bekend staat om zijn charme en de nabijheid van enkele van de beste attracties in de omgeving. Op slechts 5,4 km van het centrum van Calpe biedt deze villa gemakkelijke toegang tot het stadscentrum en de prachtige stranden van Calpe, met kristalhelder water en zacht zand. Calpe staat bekend om zijn schilderachtige schoonheid en wordt omringd door natuurparken en de iconische Peñón de Ifach, een herkenningspunt dat een uniek karakter toevoegt aan het landschap. Bezienswaardigheden in de buurt: Calpe Centrum en Stranden: Op slechts 5,4 km afstand, met gemakkelijke toegang tot plaatselijke winkels, restaurants en stranden. Luchthaven Alicante: 78 km, waardoor het handig is voor internationale en binnenlandse reizen. Golfbanen: Verschillende gerenommeerde golfbanen liggen binnen een straal van 15 km, perfect voor golfliefhebbers. Winkelcentra: Het populaire winkelcentrum La Marina in Benidorm ligt op ongeveer 25 km afstand en biedt een verscheidenheid aan winkel- en eetgelegenheden. Haven van Calpe: Op ongeveer 6 km afstand, ideaal voor jachtliefhebbers en watersporters. Prachtige villa met zeezicht en 3 verdiepingen modern comfort Deze villa biedt 335 m² luxueuze leefruimte op een royaal perceel van 1.042 m², met spectaculair uitzicht op de zee, de Peñón de Ifach en de stad Calpe. Met drie doordacht ontworpen verdiepingen verbonden door een binnentrap en lift, biedt deze villa stijl en gemak op elk niveau. Halve kelderverdieping: Parkeerplaats, wasruimte en wijnkelder Als je vanaf de straat binnenkomt via automatische poorten, kom je direct uit bij de ingang van de garage, die zich op het halve kelderniveau bevindt. De ruime garage van 52 m² biedt plaats aan meerdere voertuigen en heeft een speciale wasruimte en een wijnkelder, die een vleugje luxe en functionaliteit toevoegt. Hoofdverdieping: Open leefruimte en toegang tot het zwembad Op de hoofdverdieping, bereikbaar via een trap of lift, vind je een ruime woon- en eetruimte die leidt naar een veranda van 25 m² en een indrukwekkend zwembadterras van 78 m². De open keuken, volledig uitgerust met Siemens apparatuur, gaat naadloos over in de woonkamer. Deze verdieping heeft ook twee slaapkamers met en-suite badkamers en een gastentoilet. Bovenste verdieping: Prive-slaapkamers met prachtige terrassen De bovenste verdieping heeft twee extra tweepersoonsslaapkamers, elk met een eigen badkamer en toegang tot open terrassen met panoramisch uitzicht. Hoogwaardige afwerking en moderne voorzieningen Deze villa beschikt over eersteklas voorzieningen, waaronder Technal timmerwerk met veiligheidsglas, LED-verlichting, vloerverwarming, gekanaliseerde airconditioning en een aerothermisch systeem voor warm water en verwarming. Extra voorzieningen zijn onder andere elektrische rolluiken, ingebouwde kasten, alarmsystemen voor binnen en buiten, pre-installatie van beveiligingscamera's en een overloopzwembad van 10x3,3 m met een barbecueplaats. Deze villa ligt op het zuiden voor optimale blootstelling aan de zon en is energiezuinig met een A-classificatie. Ervaar een leven van luxe en rust in Calpe 489
Deze informatie is onderhevig aan fouten en maakt geen deel uit van een contract. De aanbieding kan zonder kennisgeving worden gewijzigd of ingetrokken. Prijzen zijn exclusief aankoopkosten.