
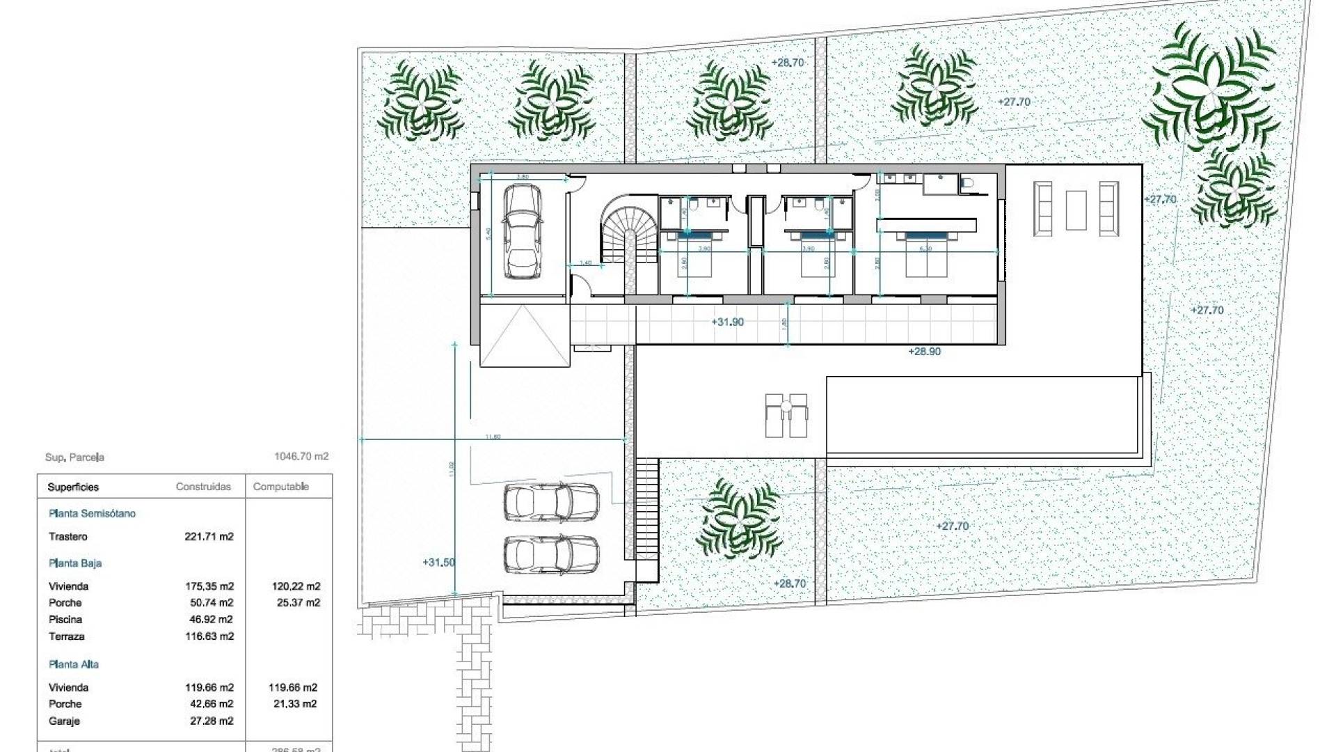
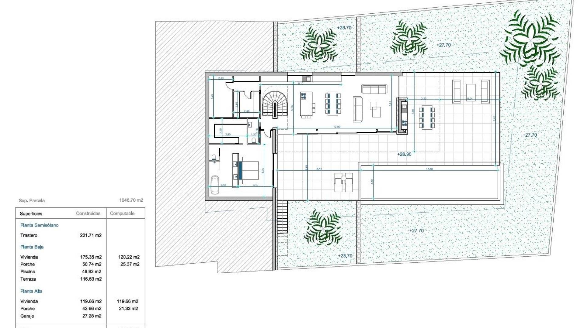
LUXE NIEUWBOUW VILLA IN MORAIRA Nieuwbouw Luxe villa met de beste kwaliteiten, en op loopafstand van de prachtige stranden en het centrum van Moraira. Deze luxe villa is verdeeld over 3 verdiepingen: op de begane grond (147,30m2) is er een grote lichte woonkamer naast de open keuken met kookeiland, een gastentoilet en een slaapkamer met een en-suite badkamer. Aan de buitenkant van deze verdieping vinden we het zwembad en de barbecueplaats. Dan gaan we naar de bovenverdieping (133,65m2) waar we 3 ruime kamers vinden met hun badkamer en suite. Tenslotte de kelderverdieping, waar het leidt naar een dubbele garage en wasruimte. EXTRAS: Technal timmerwerk met veiligheidsglas, volledige keuken met Siemens apparatuur, volledige badkamers en kranen van het merk Roca, LED verlichting, aerothermisch systeem voor warm water en vloerverwarming, gekanaliseerde airconditioning (warm en koud) door het hele huis, zonnepanelen, inbouwkasten, elektrische rolluiken, interieur alarm, pre-installatie van exterieur alarm en beveiligingscamera's. Rechthoekig zwembad met overloopsysteem van 12x4,5 meter, barbecueplaats van 22m2, wasruimte, afgewerkte tuin. Automatische toegangsdeuren. Energie classificatie A. Zuidelijke oriëntatie. Moraira is een kleine stad met goede restaurants, bars en tal van supermarkten in de buurt. Er is een zeer aangenaam strand direct naast de stad dat geweldig is voor gezinnen. De kust biedt een geweldig uitzicht op Penon Ifach aan de overkant van de baai van Calpe. De kustweg erheen is de moeite waard met spectaculaire uitzichten. Moraira ligt ongeveer 1 uur en 15 minuten ten noorden van de A7 vanaf het vliegveld van Alicante en is vrij gemakkelijk te bereiken. Het is ongeveer dezelfde afstand of iets minder zuidelijk vanaf het vliegveld van Valencia. 489
Deze informatie is onderhevig aan fouten en maakt geen deel uit van een contract. De aanbieding kan zonder kennisgeving worden gewijzigd of ingetrokken. Prijzen zijn exclusief aankoopkosten.