Alicante (Costa Blanca) - Pinoso Rodriguillo
Ref.: N9263
Villa Nieuwbouw


Details

  • 131m2
  • 10.000m2
  • 2
  • 2
  •  

Kenmerken

icon Slaapkamers: 2
icon Badkamers: 2
icon Gebouwd: 131m2
icon Plot: 10.000m2
icon Zwembad: Ja
icon Useable Build Space: 105 Msq.
icon Location: Rural, Mountain
icon Beach: 40000 Meters
icon Storage / Trastero
icon Private Pool
icon Gated
icon Near Schools
icon Double Bedrooms: 2
icon Terrace: 20 Msq.
icon Air Conditioning: Pre-Installed
icon Garden
icon Number of Parking Spaces: 2
icon Parking - Space
Energy Rating
Energy Rating:
B

Beschrijving

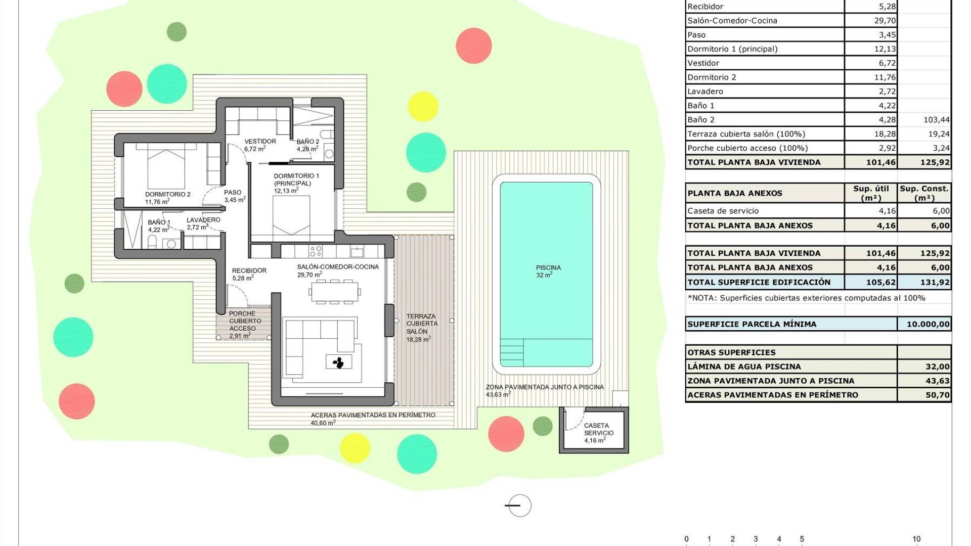
Nieuwbouwwoningen op ruime rustieke percelen in Pinoso, Alicante Rustig mediterraan leven in het hart van de natuur Ontdek dit exclusieve nieuwbouwproject in Pinoso, een charmant dorpje in het binnenland van de provincie Alicante dat bekend staat om zijn traditionele Spaanse karakter, prachtige berglandschappen en rustige omgeving. Deze villa's zijn perfect voor wie op zoek is naar privacy en ruimte. Ze zijn gebouwd op rustieke percelen van meer dan 10.000 m² en bieden de perfecte combinatie van modern comfort en het leven op het platteland, op slechts 45 km van de kust. Aanpasbare villa's met meerdere indelingsmogelijkheden Kies uit verschillende modellen villa's met 2, 3 of 4 slaapkamers en 2 badkamers (waarvan één en suite), allemaal ontworpen op één verdieping voor maximaal comfort. De uiteindelijke prijs wordt berekend op basis van het gekozen ontwerp, het bouwsysteem (plaat of structuur) en het geselecteerde perceel. Voor deze advertentie is uitgegaan van een perceel met een prijs van 73.000 euro. Als u een ander perceel kiest, betaalt u het verschil op basis van de prijs daarvan. Elke villa heeft een ruime open keuken en woonkamer, inbouwkasten en hoogwaardige afwerkingen in alle kamers. De grote ramen vullen de woningen met natuurlijk licht en zorgen voor een perfecte integratie tussen de binnen- en buitenruimtes. Uitzonderlijke buitenruimtes met privézwembad Elke woning ligt in een omheind gebied van ongeveer 2500 m² binnen een rustiek perceel van 10.000 m², wat veel privacy en ruimte garandeert. De villa's beschikken over een privézwembad van 8 x 4 m, een veranda, een berging en een privé parkeerplaats buiten. Geniet van het rustige uitzicht op het omliggende landschap en de bergen terwijl u ontspant in uw zwembad of uw gasten ontvangt in uw ruime tuin. Hoogwaardige bouwkwaliteit en moderne voorzieningen De villa's worden gebouwd volgens een zelfbouwplan en worden ongeveer 12 maanden na goedkeuring van de vergunning opgeleverd. Ze zijn allemaal voorzien van hoogwaardige specificaties, waaronder: Gewapende voordeur en gemotoriseerde poort voor voertuigen Gemotoriseerde rolluiken in de slaapkamers Volledig ingerichte keuken Badkamers met meubilair, spiegels en douchewanden Voorbereiding voor airconditioning met luchtkanalen Aerothermisch warmwatersysteem Bevoorrechte locatie in de buurt van belangrijke bestemmingen Pinoso biedt alle essentiële voorzieningen, zoals winkels, restaurants, scholen en gezondheidsdiensten, en heeft tegelijkertijd een ontspannen en authentiek Spaanse sfeer. Het wordt omgeven door natuurparken, wijngaarden en wandelroutes, ideaal voor liefhebbers van het buitenleven. Belangrijke afstanden: Elche: 33 km Stranden van de Costa Blanca: 45 km Luchthaven van Alicante: 45 km Uw perfecte landelijke toevluchtsoord in Alicante Deze nieuw gebouwde villa's in Pinoso combineren de rust van het landelijke leven met het comfort van modern design, waardoor ze ideaal zijn om permanent te wonen, om op vakantie te verblijven of als investering. Neem vandaag nog contact met ons op voor meer informatie of om te beginnen met het ontwerpen van uw droomhuis in Pinoso.

Lokatie

Economisch

Deze informatie is onderhevig aan fouten en maakt geen deel uit van een contract. De aanbieding kan zonder kennisgeving worden gewijzigd of ingetrokken. Prijzen zijn exclusief aankoopkosten.

Bereken hypotheken

Wisselkantoor

  • Pounds: 321.650 GBP
  • Russische roebel: 321.650 RUB
  • Zwitserse frank: 340.624 CHF
  • Chinese yuan: 2.969.823 CNY
  • Dollar: 435.309 USD
  • Zweedse kroon: 3.986.307 SEK
  • De Noorse kroon: 4.065.273 NOK

Vraag voor informatie

Responsable del tratamiento: Costa Weflen Group SL, Finalidad del tratamiento: Gestión y control de los servicios ofrecidos a través de la página Web de Servicios inmobiliarios, Envío de información a traves de newsletter y otros, Legitimación: Por consentimiento, Destinatarios: No se cederan los datos, salvo para elaborar contabilidad, Derechos de las personas interesadas: Acceder, rectificar y suprimir los datos, solicitar la portabilidad de los mismos, oponerse altratamiento y solicitar la limitación de éste, Procedencia de los datos: El Propio interesado, Información Adicional: Puede consultarse la información adicional y detallada sobre protección de datos Aquí.

Contact

Hilde Jeanette Weflen
Eigenaar en CEO Telefoon +34 639 689 651 E-mail hilde@cweflengroup.com

© 2026 Costa Weflen Group · Colofon · Privacy · Cookies · Web plattegrond

Ontwerp: Mediaelx

Contact WhatsApp
WhatsApp