
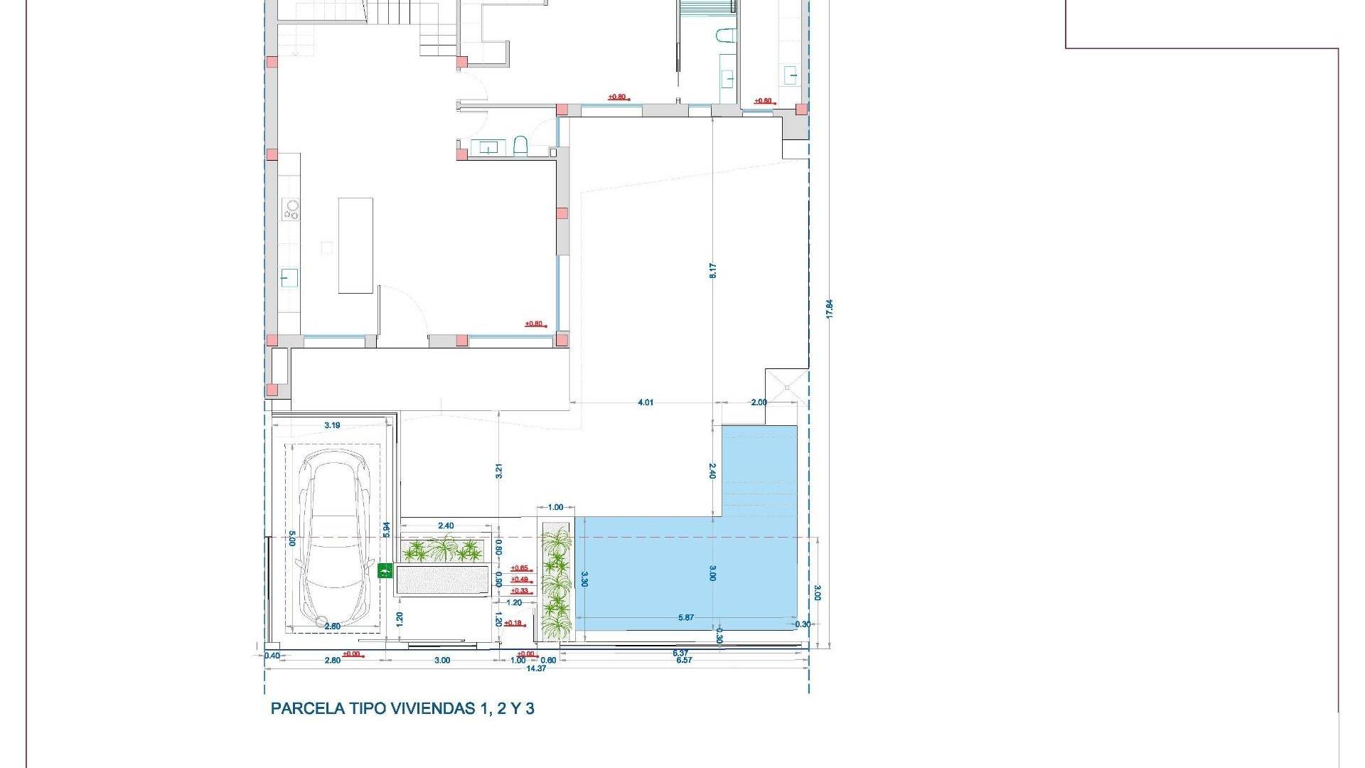
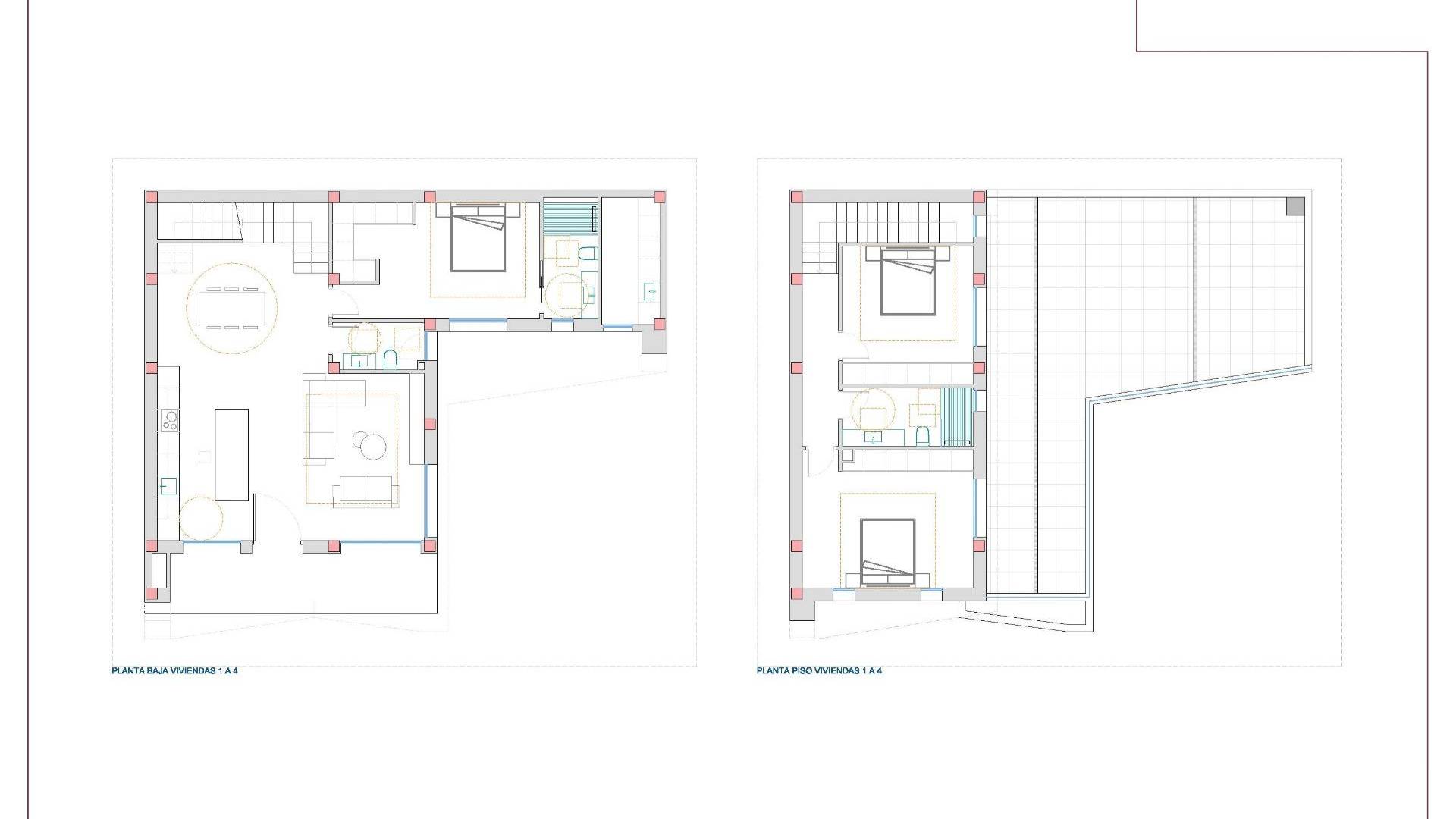
Moderne nieuwbouwwoningen in Dolores, Alicante Eigentijds wonen in het hart van de Vega Baja Ontdek dit exclusieve nieuwbouwproject in Dolores, een charmant stadje in de regio Vega Baja del Segura, ten zuiden van Alicante. Dolores staat bekend om zijn traditionele Spaanse karakter en wordt omgeven door een weelderig landschap. Het biedt een rustige levensstijl en alle dagelijkse voorzieningen op loopafstand, zoals winkels, restaurants, scholen en lokale diensten. Deze woonwijk ligt op slechts 12 km van de stranden van La Marina en Guardamar del Segura en biedt gemakkelijke toegang tot de snelweg AP-7, waardoor het perfect verbonden is met de belangrijkste kustplaatsen van de Costa Blanca. Elegante moderne villa's met privézwembad Deze moderne villa's met twee verdiepingen zijn ontworpen met het oog op comfort, functionaliteit en stijl. Op de begane grond vindt u een lichte open keuken die in verbinding staat met de woon-eetkamer, met grote schuifdeuren die direct uitkomen op het terras en de privétuin met zwembad. De begane grond beschikt ook over een slaapkamer met een eigen badkamer, een gastentoilet en een handige wasruimte buiten. Op de eerste verdieping zijn er twee extra slaapkamers, een badkamer en toegang tot een groot open terras van 60 m2, perfect om te zonnebaden of te ontspannen terwijl u geniet van het mediterrane klimaat. Elke woning heeft een eigen parkeerplaats op het perceel. Hoogwaardige afwerking en modern comfort Deze villa's zijn gebouwd met hoogwaardige materialen en een eigentijds ontwerp en zijn volledig uitgerust om het hele jaar door te wonen. De belangrijkste kenmerken zijn: Buitenbetimmering met thermische onderbreking Gemotoriseerde zonwering Warmwatersysteem op basis van aerothermische energie Volledig geïnstalleerde airconditioning met luchtkanalen Privézwembad Privé parkeerplaats en aangelegde tuin Het interieur combineert elegantie en functionaliteit, maximaliseert het natuurlijke licht en biedt een uitzonderlijke leefomgeving met een sterke verbinding tussen binnen- en buitenruimtes. Toplocatie dicht bij alles Dolores ligt op een strategische locatie en biedt een evenwicht tussen rust en bereikbaarheid. Belangrijkste afstanden: Stranden van La Marina en Guardamar del Segura: 12 km Luchthaven Alicante (Elche-El Altet): 30 km (25 minuten met de auto) Luchthaven Murcia-Corvera: 70 km (1 uur met de auto) Golfbanen: 15 km De stad Alicante: 40 km Leef de mediterrane levensstijl in Dolores Deze nieuwbouwwoningen in Dolores bieden de perfecte combinatie van modern design, comfort en nabijheid tot de kust. Ze zijn ideaal voor zowel permanente bewoning als vakantieverblijf en bieden een serene mediterrane levensstijl, omgeven door natuur en gemak. Neem vandaag nog contact met ons op om een bezichtiging te regelen en uw droomhuis in Dolores werkelijkheid te laten worden.
Deze informatie is onderhevig aan fouten en maakt geen deel uit van een contract. De aanbieding kan zonder kennisgeving worden gewijzigd of ingetrokken. Prijzen zijn exclusief aankoopkosten.