
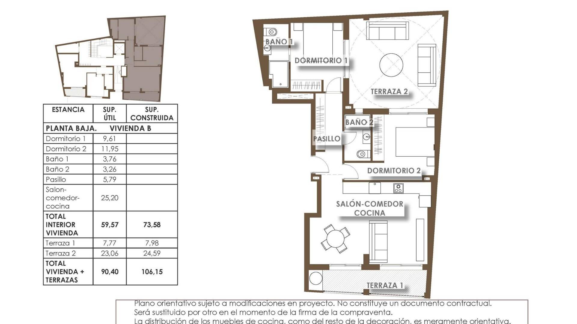
Moderne appartementen te koop op slechts 250 m van het strand El Cura in Torrevieja, Costa Blanca Exclusief nieuwbouwproject vlakbij de zee Dit nieuwe wooncomplex met 16 moderne woningen is ontworpen om de essentie van het mediterrane leven te vangen. Gelegen op slechts 250 meter van het strand El Cura in Torrevieja (Alicante), biedt dit project een perfecte mix van comfort, design en locatie. Met alle voorzieningen in de buurt en uitstekende openbaarvervoersverbindingen, waaronder het belangrijkste busstation op loopafstand, biedt het een ideale omgeving voor zowel het hele jaar door wonen als voor vakanties aan zee. Modern design en functionele leefruimtes Het project omvat een selectie van woningen met 1 of 2 slaapkamers en 1 of 2 badkamers, met verschillende indelingen die bij elke levensstijl passen. Elke woning wordt gekenmerkt door lichte, open ruimtes, elegante afwerkingen en een uitstekende bouwkwaliteit. Kenmerken zijn onder meer inbouwkasten, voorinstallatie van airconditioning, lift en hoogwaardige materialen. De appartementen op de begane grond en de standaardunits beschikken over een eigen terras dat ideaal is om buiten te ontspannen, terwijl de penthouses zijn voorzien van ruime privéterrassen — perfect om te zonnebaden, diners te organiseren of te genieten van de prachtige mediterrane zonsondergangen. Exclusieve gemeenschappelijke ruimtes voor uw plezier Het wooncomplex is ontworpen voor comfort en sociaal leven. Bewoners kunnen genieten van een spectaculaire gemeenschappelijke ruimte op het dak met een zwembad, ligweiden met ligstoelen en aangelegde zones - een rustig toevluchtsoord voor zomerse ontspanning. Toplocatie in Torrevieja Torrevieja is een van de populairste bestemmingen aan de Costa Blanca, bekend om zijn kristalheldere stranden, het aangename klimaat het hele jaar door en de levendige sfeer aan zee. Wonen hier betekent genieten van dagelijkse wandelingen langs de boulevard, dineren in restaurants aan het strand en de authentieke mediterrane levensstijl ervaren. Afstanden tot belangrijke bezienswaardigheden El Cura-strand: 250 m Jachthaven en haven van Torrevieja: 2 km Winkelcentrum Las Habaneras: 3 km Dichtstbijzijnde golfbanen: 7–10 km Luchthaven Alicante-Elche: 45 km De perfecte woning aan zee Of u nu op zoek bent naar een permanente woning, een vakantiehuis of een slimme investeringsmogelijkheid, deze nieuwbouwwoningen in Torrevieja bieden de perfecte combinatie van modern wonen, kustcharme en gemak. Neem vandaag nog contact met ons op voor meer informatie of om een bezichtiging in te plannen en uw droomhuis op een steenworp afstand van het strand El Cura in Torrevieja te bemachtigen.
Deze informatie is onderhevig aan fouten en maakt geen deel uit van een contract. De aanbieding kan zonder kennisgeving worden gewijzigd of ingetrokken. Prijzen zijn exclusief aankoopkosten.