
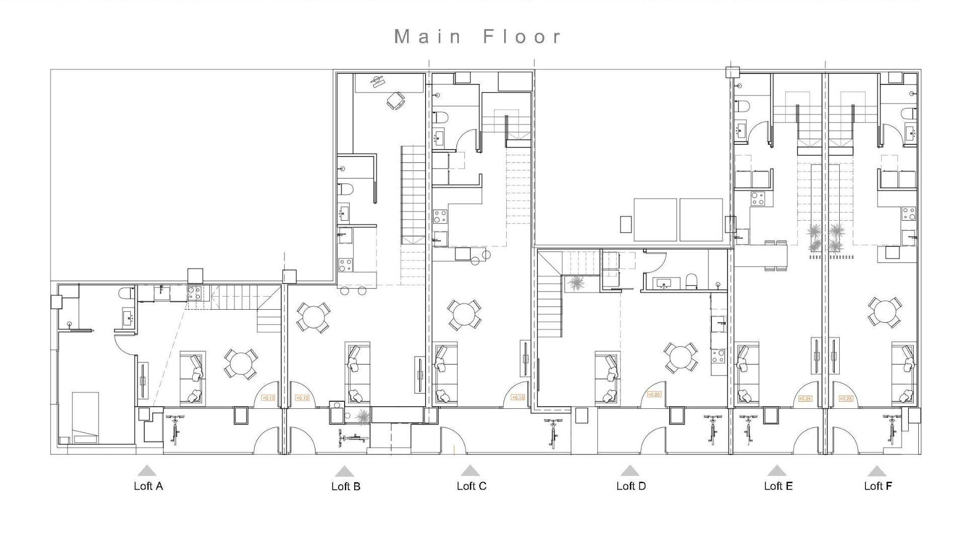
Moderne duplex loftappartementen in het hart van Alicante Exclusief nieuwbouwproject in de wijk Benalúa Ontdek een uitzonderlijke kans om een stijlvol duplex loftappartement te kopen in Benalúa, een van de meest levendige en goed bereikbare wijken van Alicante. Dit unieke project transformeert zes ongebruikte commerciële units in eigentijdse residentiële lofts en biedt een moderne stedelijke levensstijl op slechts 1 km van de Middellandse Zeekust. Benalúa staat bekend om zijn lokale winkels, cafés, culturele activiteiten en de nabijheid van het stadscentrum, waardoor het een zeer gewilde buurt is voor zowel bewoners als investeerders. Eigentijds loft-achtig ontwerp Elke woning is volledig opnieuw ontworpen om een frisse, open en elegante leefruimte te bieden. Het project omvat duplexlofts met 1 en 2 slaapkamers en 2 badkamers, allemaal met indrukwekkende ruimtes met dubbele hoogte die het natuurlijke licht versterken en een echte loft-sfeer creëren. Op de bovenverdieping bevinden zich een slaapkamer en een complete badkamer, wat privacy en comfort biedt. Met een onafhankelijke toegang vanaf de straat en een privéterras combineert elk appartement moderne architectuur met praktisch wonen. Hoogwaardige afwerkingen, eigentijdse indelingen en lichte interieurs maken deze lofts een uitstekende keuze voor wie op zoek is naar stijl en functionaliteit. Comfort en gemeenschappelijke voorzieningen Bewoners hebben toegang tot een gemeenschappelijk zwembad in het gebouw, dat een ontspannen en verfrissende sfeer biedt voor warme mediterrane dagen. De privéterrassen en onafhankelijke ingangen zorgen voor extra gemak en exclusiviteit. Toplocatie dicht bij belangrijke bezienswaardigheden Het project is perfect gelegen voor zowel wonen als investeren en wordt omringd door essentiële voorzieningen en belangrijke bezienswaardigheden: Strand van Alicante: 1 km Renfe-treinstation: 0,8 km Winkelcentrum El Corte Inglés: 0,7 km Justitiepaleis van Alicante: 0,5 km Luchthaven van Alicante: 12 km Jachthaven en haven van Alicante: 2 km Golfbanen (Alicante Golf): 7 km De omgeving biedt uitstekende openbaarvervoersverbindingen, culturele bezienswaardigheden, groene zones en gemakkelijke toegang tot de prachtige stranden van de stad. Een slimme investering in de kustlevensstijl van Alicante Of u nu op zoek bent naar een hoofdwoning, een vakantiehuis of een investering met een sterk verhuurpotentieel, deze duplex loftappartementen in Benalúa bieden een unieke kans in een van de meest veelbelovende wijken van Alicante. Neem vandaag nog contact met ons op om uw exclusieve loft te reserveren en te genieten van modern wonen in het hart van Alicante. * Toegang tot het zwembad moet nog worden goedgekeurd door de gemeenschap wanneer de bestemming van de lokalen wordt gewijzigd.
Deze informatie is onderhevig aan fouten en maakt geen deel uit van een contract. De aanbieding kan zonder kennisgeving worden gewijzigd of ingetrokken. Prijzen zijn exclusief aankoopkosten.