
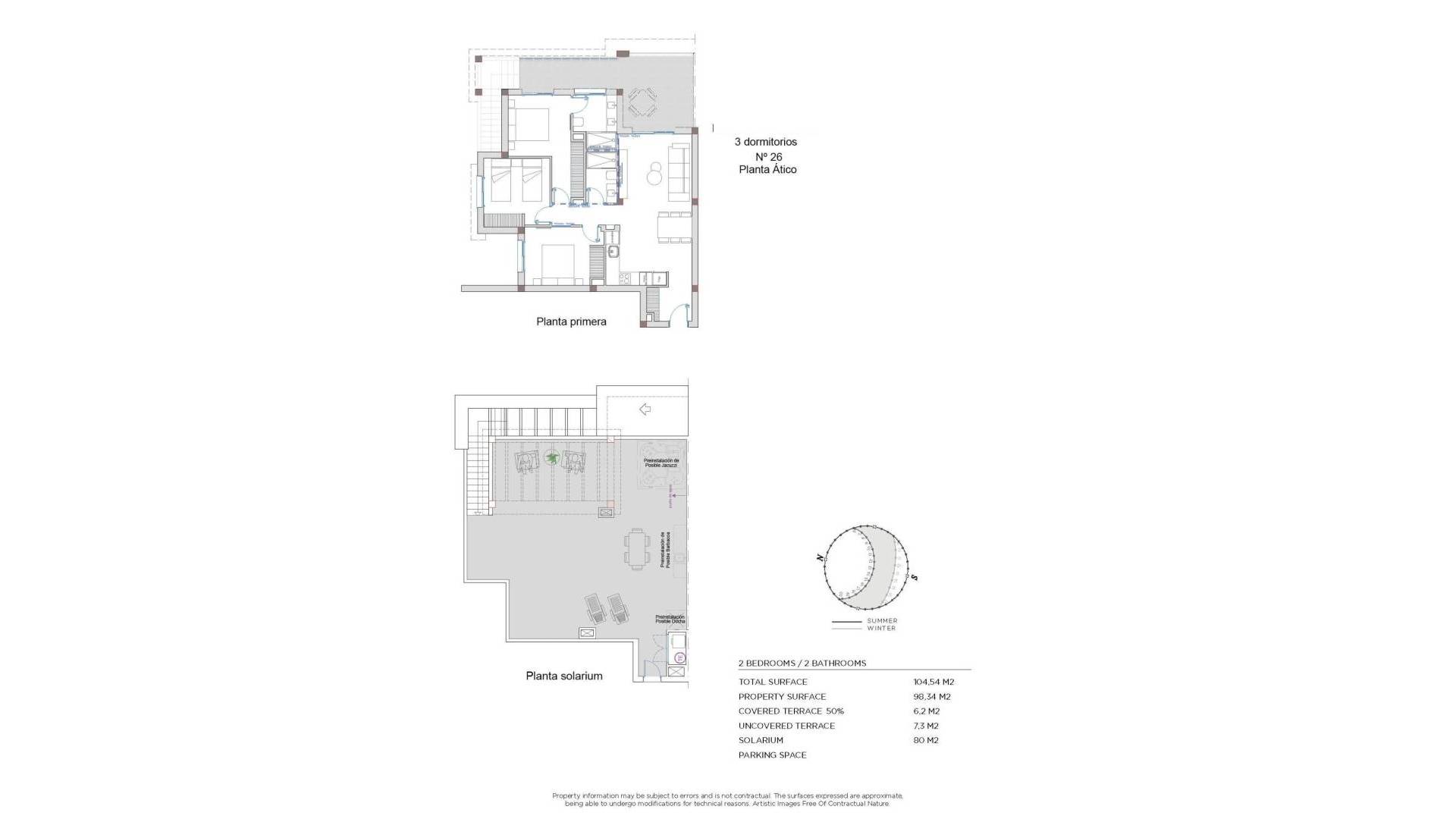
Moderne mediterrane appartementen in Ciudad Quesada, Costa Blanca Exclusief wonen Ontdek een exclusief privéwooncomplex dat is ontworpen om maximaal comfort, kwaliteit en levensstijl te bieden op een van de meest gewilde locaties aan de Costa Blanca. Dit moderne project ligt in Ciudad Quesada, op slechts enkele minuten van de internationale luchthaven van Alicante, en combineert de tijdloze charme van mediterrane architectuur met een fris, functioneel ontwerp dat ideaal is voor hedendaags wonen. Elegante appartementen met privébuitenruimtes Het complex beschikt over twee soorten woningen die geschikt zijn voor verschillende levensstijlen. Kies tussen appartementen op de begane grond met een ruime privétuin, perfect om buiten te ontspannen, of appartementen op de eerste verdieping met een groot privéterras, ideaal om het hele jaar door te genieten van de zon en het rustige uitzicht. Elk appartement heeft 2-3 slaapkamers en 2 badkamers en biedt een licht en comfortabel interieur. Bovendien beschikt elke woning over een eigen parkeerplaats binnen het complex en een berging voor extra gemak. Gemeenschappelijke ruimtes voor ontspanning en welzijn Het wooncomplex is ontworpen voor plezier en ontspanning en biedt prachtig aangelegde gemeenschappelijke tuinen en een groot zwembad dat een serene en exclusieve sfeer creëert. Of u nu wilt ontspannen in de zon, een verfrissende duik wilt nemen of gewoon wilt genieten van de natuurlijke omgeving, dit project biedt alles wat u nodig heeft om comfortabel te leven aan de Costa Blanca. Toplocatie vlakbij stranden en golfbanen Ciudad Quesada is een gevestigde en levendige gemeenschap, bekend om zijn uitstekende diensten, restaurants en recreatiemogelijkheden. De golfbaan La Marquesa, op slechts een paar minuten afstand, is een van de meest historische golfbanen aan de Costa Blanca, met 18 holes en de beroemde hole 17, geïnspireerd door Sawgrass, die een unieke ervaring biedt voor golfliefhebbers. De prachtige stranden met blauwe vlag van Guardamar del Segura, La Mata en Torrevieja liggen op slechts 15 km van het project en zijn perfect om te zonnebaden of te watersporten. De internationale luchthaven van Alicante ligt op 40 km afstand, waardoor reizen gemakkelijk en toegankelijk is. Het beste van de mediterrane levensstijl Omgeven door natuur, golfbanen en de zee biedt dit woonproject de perfecte omgeving voor zowel permanent wonen als vakantieplezier. Het is een plek waar modern comfort samengaat met de charme van de mediterrane levensstijl. Plan vandaag nog uw bezoek Mis deze kans niet om uw nieuwe woning in Ciudad Quesada, Costa Blanca, te kopen. Neem vandaag nog contact met ons op voor meer informatie of om een privébezichtiging van deze uitzonderlijke nieuwbouwwoningen te regelen. 489
Deze informatie is onderhevig aan fouten en maakt geen deel uit van een contract. De aanbieding kan zonder kennisgeving worden gewijzigd of ingetrokken. Prijzen zijn exclusief aankoopkosten.