
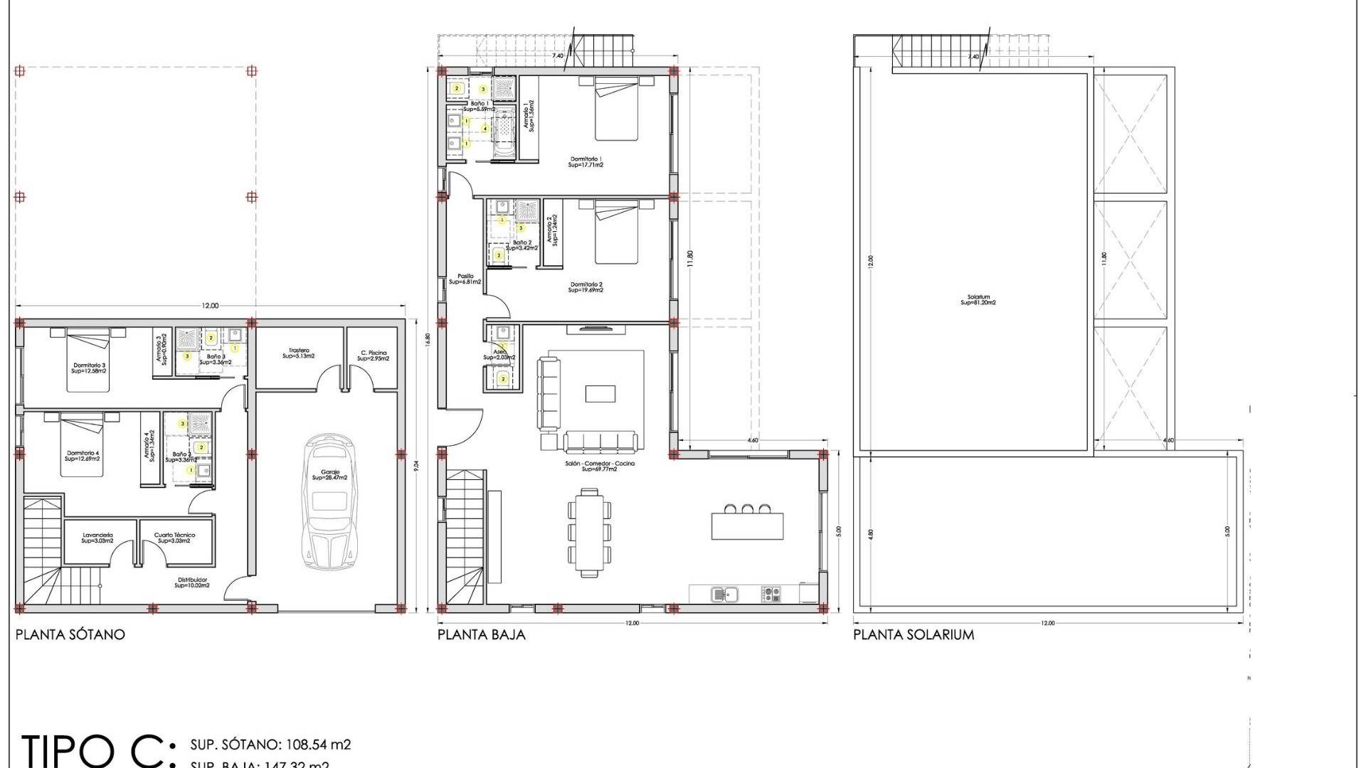
Luxe nieuwbouwwoningen in Finestrat, nabij Benidorm Exclusieve collectie duurzame vrijstaande villa's Dit prestigieuze project bestaat uit 36 vrijstaande villa's in de gewilde urbanisatie Bahia Golf in Finestrat, op slechts 3,5 km van de Middellandse Zeekust. Deze moderne woningen zijn ontworpen om luxe, comfort en duurzaamheid te combineren en bieden een uitzonderlijke levensstijl aan de Costa Blanca, omgeven door natuur en toch dicht bij alle voorzieningen. Elke villa heeft 3 of 4 ruime slaapkamers, een eigen aangelegde tuin en een privézwembad. Sommige woningen hebben een prachtig uitzicht op zee, terwijl alle woningen zijn gelegen op royale percelen van meer dan 500 m2 met een bebouwde oppervlakte vanaf 222 m2. Flexibele indelingen met kelder en solarium op het dak Kopers kunnen kiezen uit vier verschillende indelingen, die allemaal zorgvuldig zijn ontworpen om de ruimte en het natuurlijke licht te maximaliseren. Elke villa heeft een kelder met privéparkeerplaats, berging, wasruimte en twee slaapkamers met en-suite badkamers die in verbinding staan met een Engelse patio voor natuurlijk licht en ventilatie. De begane grond beschikt over één of twee extra slaapkamers met en-suite badkamer, een gastentoilet en een open keuken die in verbinding staat met de woon- en eetkamer, met directe toegang tot het terras en het zwembad. Elk pand heeft een solarium op het dak, met panoramisch uitzicht op de bergen of de zee en de mogelijkheid om een jacuzzi te installeren. Hoogwaardige afwerking en BREEAM-energie-efficiëntie Deze villa's zijn gebouwd volgens de BREEAM-certificeringsnormen, wat een uitstekende energieprestatie en milieuvriendelijkheid garandeert. Tot de hoogwaardige specificaties behoren: Aluminium ramen met dubbele beglazing, thermische onderbreking en elektrische rolluiken Volledig geïnstalleerde airconditioning met luchtkanalen Gemotoriseerde toegangspoort voor voertuigen Privézwembad en aangelegde tuin Moderne keuken van PORCELANOSA, uitgerust met apparatuur Designbadkamers met meubilair, spiegels en inloopdouches Porseleinen tegels van PORCELANOSA Toplocatie dicht bij stranden, golfbanen en winkels Finestrat is een charmant stadje tussen de bergen en de zee, dat rust biedt en toch op slechts enkele minuten van het bruisende Benidorm ligt. De omgeving combineert natuurschoon met een uitstekende infrastructuur, internationale scholen, restaurants en winkelcentra. Afstanden tot belangrijke bezienswaardigheden Stranden van Benidorm 3,5 km Winkelcentrum La Marina 1 km Puig Campana Golf 3 km Oude binnenstad van Benidorm 4 km Luchthaven Alicante 55 km Toegang tot snelweg A7 2 km Leef de mediterrane droom in Finestrat Deze villa's bieden de perfecte balans tussen luxe, natuur en connectiviteit aan de Costa Blanca. Neem vandaag nog contact met ons op voor meer informatie of om een privébezichtiging te regelen van deze uitzonderlijke nieuwbouwwoningen in Finestrat.
Deze informatie is onderhevig aan fouten en maakt geen deel uit van een contract. De aanbieding kan zonder kennisgeving worden gewijzigd of ingetrokken. Prijzen zijn exclusief aankoopkosten.