
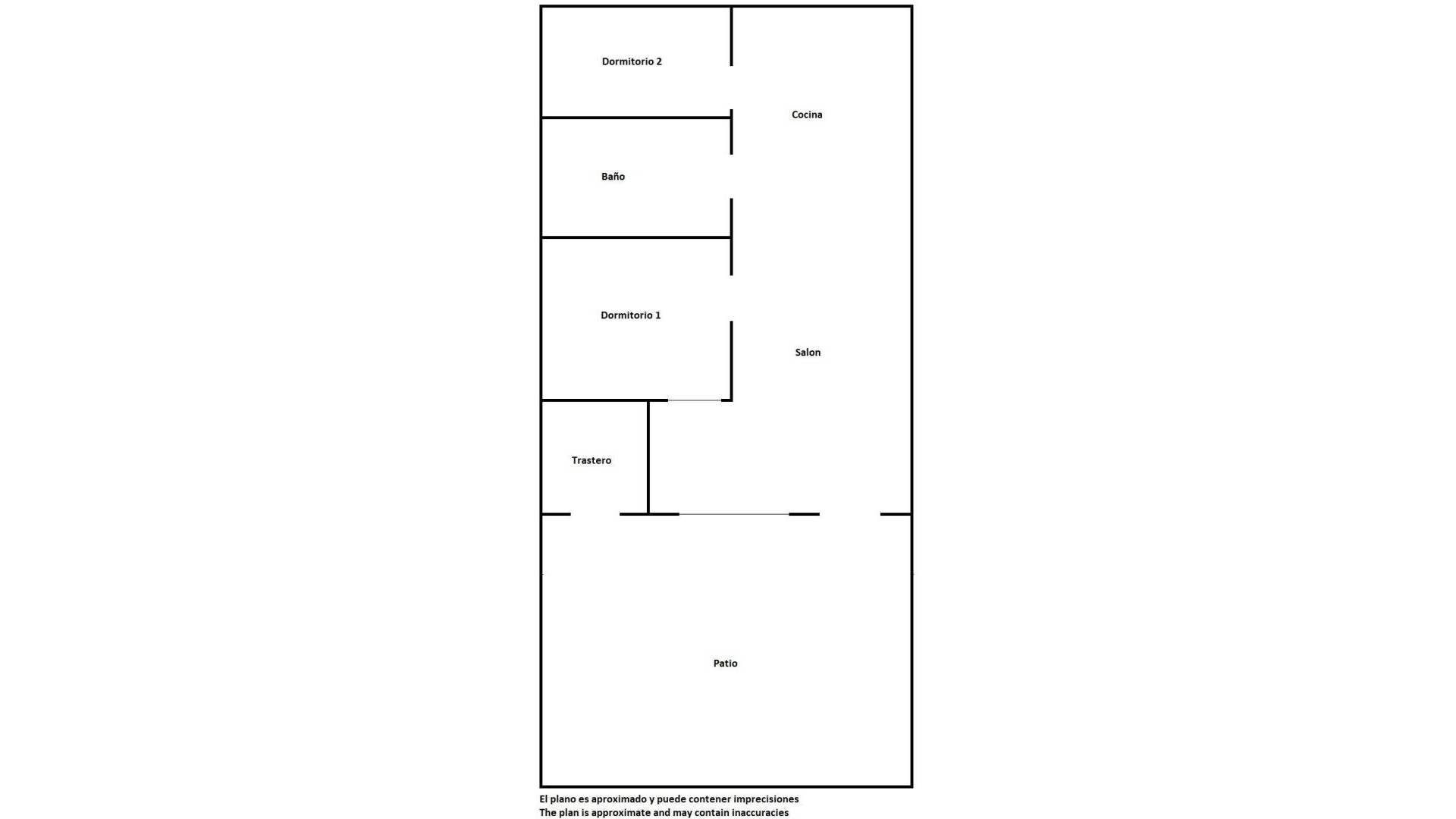
Te koop: volledig gerenoveerd huis van 54 m² met een ruim perceel van 30 m². Mogelijkheid voor een privézwembad. Oostelijke ligging zorgt voor zonlicht het grootste deel van de dag. Perfecte combinatie van modern comfort en veiligheid: - Modern interieur: geïsoleerde muren met gipsplaat, hoge plafonds, nieuwe ramen en deuren. - Veiligheid: stevige voordeur met drie vergrendelpunten, Wi-Fi beveiligingscamera. - Moderne voorzieningen: nieuwe elektrische bedrading met zoneschakelaars, vernieuwde water- en rioleringsleidingen. - Comfort het hele jaar door: nieuwe airconditioning met verwarmings- en koelfunctie, verstelbare verlichting met ventilatoren. - Volledig uitgeruste keuken en apparatuur: nieuwe vaatwasser, wasmachine, droger, boiler, enz. - Goed onderhouden perceel: nieuwe omheining en toegangspoort, ruime plek om te ontspannen en gasten te ontvangen. - Ligging: rustige omgeving zonder lawaaierige bars in de buurt, maar dicht bij transportverbindingen en op loopafstand van grote winkelcentra, supermarkten, scholen, restaurants en bars. 800 meter van een zoutmeer dat een bijzonder microklimaat voor de luchtwegen biedt. Slechts 10 minuten rijden naar de beste stranden van Torrevieja en omgeving. Optioneel: barbecuegebied en privézwembad.
Deze informatie is onderhevig aan fouten en maakt geen deel uit van een contract. De aanbieding kan zonder kennisgeving worden gewijzigd of ingetrokken. Prijzen zijn exclusief aankoopkosten.