Alicante (Costa Blanca) - Aspe Poligono 19
Ref.: N8935
Villa Nybygg

Detaljer

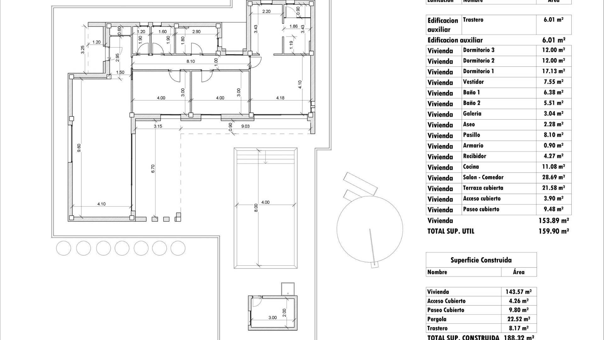
  • 188m2
  • 13.172m2
  • 3
  • 3
  •  

Kjennetegn

icon Soverom: 3
icon Baderom: 3
icon Areal: 188m2
icon Tomt: 13.172m2
icon Basseng: Ja
icon Privat basseng
icon Inngjerdet område
icon Nær skole
icon Antall parkeringsplasser: 1
icon Klimaanlegg: Preinstallert
icon Hage
icon Doble soverom: 3
icon Terrasse: 36 kvm
icon Parkeringsplass
icon Bruksareal: 159 kvm.
icon Beliggenhet: Fjell, landlig
icon Beach: 25000 Meters
icon Storage / Trastero
Energimerking
Energimerking:
B

Beskrivelse

Nybyggede villaer i Aspe. Nybyggede villaer med flere modeller å velge mellom, med 2, 3 eller 4 soverom, på 1 eller 2 etasjer og bygget med plate eller struktur: avhengig av modell og valgt tomt, vil den nøyaktige prisen bli beregnet. Alle villaene bygges på rustikke tomter på over 10 000 m2, hvorav ca. 2500 m2 vil bli inngjerdet. Villaene har åpen kjøkkenløsning med stue, innebygde skap, privat svømmebasseng, veranda, bod og utendørs parkeringsplass. Det er flere tomter å velge mellom. For prisberegningen er det lagt til grunn en tomt til en pris av 75 000 euro (hvis du velger en annen tomt, betales differansen i henhold til prisen på denne). Prosjektet er selvbygg, og levering skjer ca. 12 måneder etter at byggetillatelsen er gitt. Hvis du er ute etter et rolig miljø, nær typiske spanske landsbyer langt fra turistmassene, omgitt av fjell, med en svært stor tomt og ca. 30 minutter fra havet, er dette huset for deg. Aspe er en typisk spansk landsby med alle daglige tjenester, omgitt av fjell og med flere naturområder i nærheten hvor du kan gå på tur eller sykle på terrengsykkel. Ligger 25 km fra stranden, 9 km fra Elche og ca. 20 km fra Alicante flyplass.

Plassering

Økonomi

Informasjonen som er gitt her kan inneholde feil og inngår ikke i noen kontrakt. Tilbudet kan endres eller trekkes tilbake uten varsel. Priser inkluderer ikke andre kostnader som påløper ved kjøp.

Beregn boliglån

Valutaveksling

  • Pund: 449.225 GBP
  • Russiske rubler: 449.225 RUB
  • Sveitsiske franc: 471.950 CHF
  • Kinesiske yuan: 4.081.477 CNY
  • Dollar: 603.159 USD
  • Svenske kroner: 5.579.896 SEK
  • Norske kroner: 5.580.673 NOK

Be om informasjon

Responsable del tratamiento: Costa Weflen Group SL, Finalidad del tratamiento: Gestión y control de los servicios ofrecidos a través de la página Web de Servicios inmobiliarios, Envío de información a traves de newsletter y otros, Legitimación: Por consentimiento, Destinatarios: No se cederan los datos, salvo para elaborar contabilidad, Derechos de las personas interesadas: Acceder, rectificar y suprimir los datos, solicitar la portabilidad de los mismos, oponerse altratamiento y solicitar la limitación de éste, Procedencia de los datos: El Propio interesado, Información Adicional: Puede consultarse la información adicional y detallada sobre protección de datos Aquí.

Kontakt

Hilde Jeanette Weflen
Eier & CEO Telefon +34 639 689 651 E-post hilde@cweflengroup.com

© 2026 Costa Weflen Group · Juridisk merknad · Privat · Cookies · Nettstedskart

Design: Mediaelx

Kontakt WhatsApp
WhatsApp