
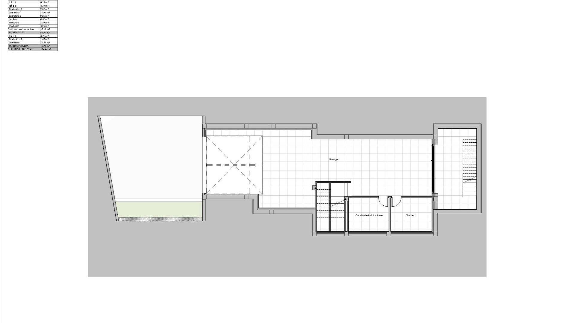
Nybygget villa i Las Colinas Golf & Country Club, Orihuela Eksklusiv beliggenhet på Costa Blanca Sør Denne fantastiske nybyggede villaen ligger i Las Colinas Golf & Country Club, et av de mest prestisjefylte feriestedene i Orihuela Costa. Området ligger i en frodig dal på 330 hektar, omgitt av middelhavsskog og grønne områder, og tilbyr en eksklusiv livsstil med maksimal privatliv. Feriestedet ligger bare 40 km fra Alicante lufthavn og 60 km fra Murcia–Corvera lufthavn, med vakre middelhavsstrender bare en kort kjøretur unna. Moderne villa med romslig planløsning Denne villaen er designet med eleganse og komfort i tankene, og er fordelt på to etasjer pluss en kjeller. Den har 3 soverom, alle med eget bad, og et gjestetoalett. Første etasje har et åpent kjøkken som er koblet til stuen, to soverom og tilgang til en stor terrasse med et privat 60 m2 svømmebasseng og anlagt hage. Andre etasje har et privat soverom med eget bad, mens kjelleren har en romslig garasje for to biler med naturlig lys og ventilasjon via en engelsk patio. Førsteklasses kvalitet og teknologi Denne villaen er bygget etter de høyeste standarder og inkluderer: Fullt installert kanalisert klimaanlegg Oppvarming og varmt vann via aerotermisk system Innvendig LED-belysning inkludert Fullt utstyrte bad med møbler og dusjvegger Kjøkken utstyrt med førsteklasses hvitevarer Hjemmeautomatiseringssystem for maksimal komfort og effektivitet Resortliv og tjenester Las Colinas Golf & Country Club er internasjonalt anerkjent for sin 18-hulls golfbane, som regnes som en av de beste i Spania. Resortet tilbyr et bredt spekter av tjenester for beboerne, inkludert tennis- og padelbaner, et moderne treningsstudio, velvære- og massasjefasiliteter, gourmetrestauranter og et minimarked med ferskt bakt brød hver dag. Med over 200 000 m2 med middelhavslandskap kan beboerne nyte naturskjønne turer gjennom innfødt flora, samt felt med appelsin- og sitronlunder. Kombinasjonen av natur, eksklusivitet og førsteklasses tjenester gjør Las Colinas til et virkelig unikt sted å bo. Ditt eksklusive hjem i Orihuela Costa venter Denne villaen i Las Colinas Golf er mer enn en eiendom; det er en livsstil som kombinerer luksus, privatliv og natur. Kontakt oss i dag for å avtale et besøk og sikre deg ditt nye hjem i et av de mest prestisjefylte feriestedene på Costa Blanca Sør.
Informasjonen som er gitt her kan inneholde feil og inngår ikke i noen kontrakt. Tilbudet kan endres eller trekkes tilbake uten varsel. Priser inkluderer ikke andre kostnader som påløper ved kjøp.