
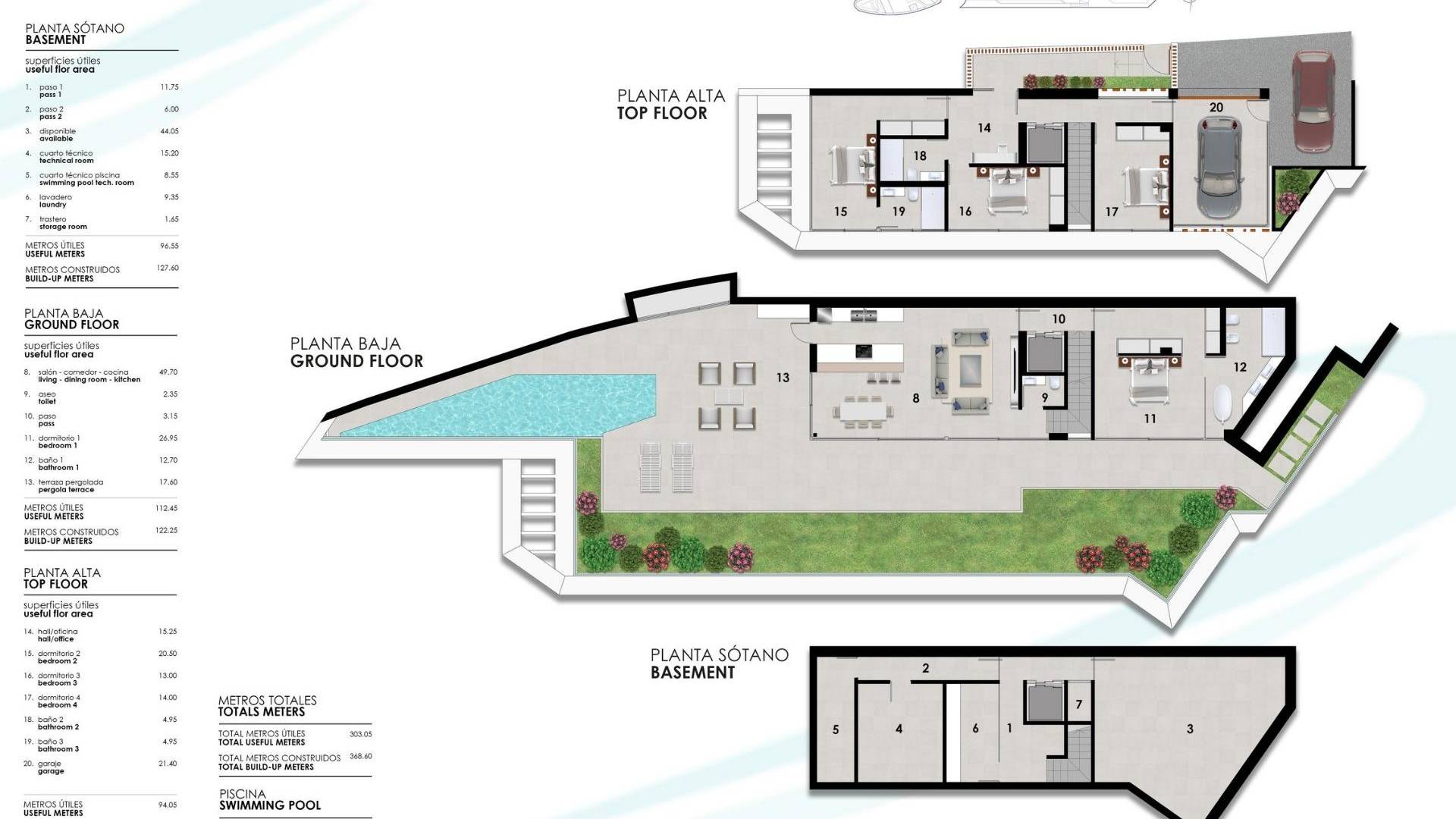
Luksusleiligheter og villaer ved sjøen i Mascarat, Calpe: middelhavslivet på en helt ny måte Eksklusivt nybyggprosjekt med havutsikt nær havnen i Mascarat, Calpe Oppdag et nytt nivå av luksus ved kysten med dette unike eiendomsprosjektet ved den pittoreske havnen i Mascarat, mellom Calpe og Altea, på Costa Blanca. Dette eksklusive prosjektet består av 4 designvillaer, 2 penthouse-leiligheter og 8 elegante leiligheter, alle med privat basseng og panoramautsikt over Middelhavet og den livlige marinaen. Bare 400 meter fra kysten kombinerer dette unike boligkomplekset moderne arkitektur, førsteklasses finish og en uovertruffen beliggenhet for å nyte en ekstraordinær livsstil. Privilegert beliggenhet med gode forbindelser og tjenester Strategisk plassert bare 55 km fra Alicante internasjonale lufthavn, er boligkomplekset lett tilgjengelig med bil på under 50 minutter. Den pittoreske marinaen i Mascarat ligger bare 350 meter unna, mens nærmeste supermarked ligger bare 1,1 km fra boligkomplekset. Byene Calpe og Altea, kjent for sin historiske sjarm, restauranter, butikker og kulturelle arrangementer, ligger bare noen minutter unna. Golfentusiaster finner den berømte Altea Club de Golf bare 8 km unna, og den prestisjetunge seilklubben Marina Greenwich ligger praktisk talt rett utenfor døren. Elegante leiligheter med privat basseng og havutsikt Prosjektet tilbyr 6 eksklusive leiligheter, hver med store terrasser, vakre hager og privat basseng. Alle leilighetene har tre soverom, to bad og et ekstra toalett for gjester. Alle boligene har to tildelte parkeringsplasser i den overvåkede underjordiske garasjen, samt tilgang til et stort semi-olympisk felles svømmebasseng og en panoramisk taubane som forbinder de forskjellige nivåene i boligkomplekset. Hver leilighet har en kjeller med vaskerom og bod som er koblet til boligen. Fantastiske duplex-leiligheter Juveler i høyden, med store terrasser, privat tilgang via privat heis og alle bekvemmeligheter som en villa, men med magien av de mest imponerende panoramautsiktene. De har 4 soverom, 3 bad og et toalett. Privat svømmebasseng og kjeller med vaskerom og bod og tilgang til boligen fra privat heis. Designvillaer med førsteklasses egenskaper og total privatliv De 4 luksuriøse villaene har fire soverom, tre bad fordelt på 2 etasjer, med åpne og lyse interiører som flyter uanstrengt over i store uterom. Hver villa har heis og privat svømmebasseng, egen garasje og tilgang til felles fasiliteter i resort-stil. Høykvalitets finish og arkitektonisk oppmerksomhet på detaljer sikrer at hver bolig tilbyr maksimal komfort, eleganse og privatliv. Høyteknologiske spesifikasjoner og hjemmestyringsteknologi Inngangsdør med forsterket sikkerhet Utvendig snekring i lakkert aluminium med termisk bro Motoriserte persienner med hjemmestyring Designerkjøkken med Silestone-benkeplater og integrerte hvitevarer Aerotermisk gulvvarme og sentral klimaanlegg Hjemmeautomatisering for belysning, klimaanlegg, solskjerming og lekkasjedeteksjon To private parkeringsplasser per enhet Opplev den middelhavske livsstilen i Calpe Opplev unike øyeblikk ved havet, med uovertruffen utsikt og tilgang til en av de vakreste marinaene på Costa Blanca. Enten det er som permanent bolig, feriebolig eller investering, tilbyr dette prosjektet en eksklusiv kombinasjon av luksus, natur og livsstil. Kontakt oss i dag for å avtale en privat visning og sikre deg drømmehuset ved havet.
Informasjonen som er gitt her kan inneholde feil og inngår ikke i noen kontrakt. Tilbudet kan endres eller trekkes tilbake uten varsel. Priser inkluderer ikke andre kostnader som påløper ved kjøp.