
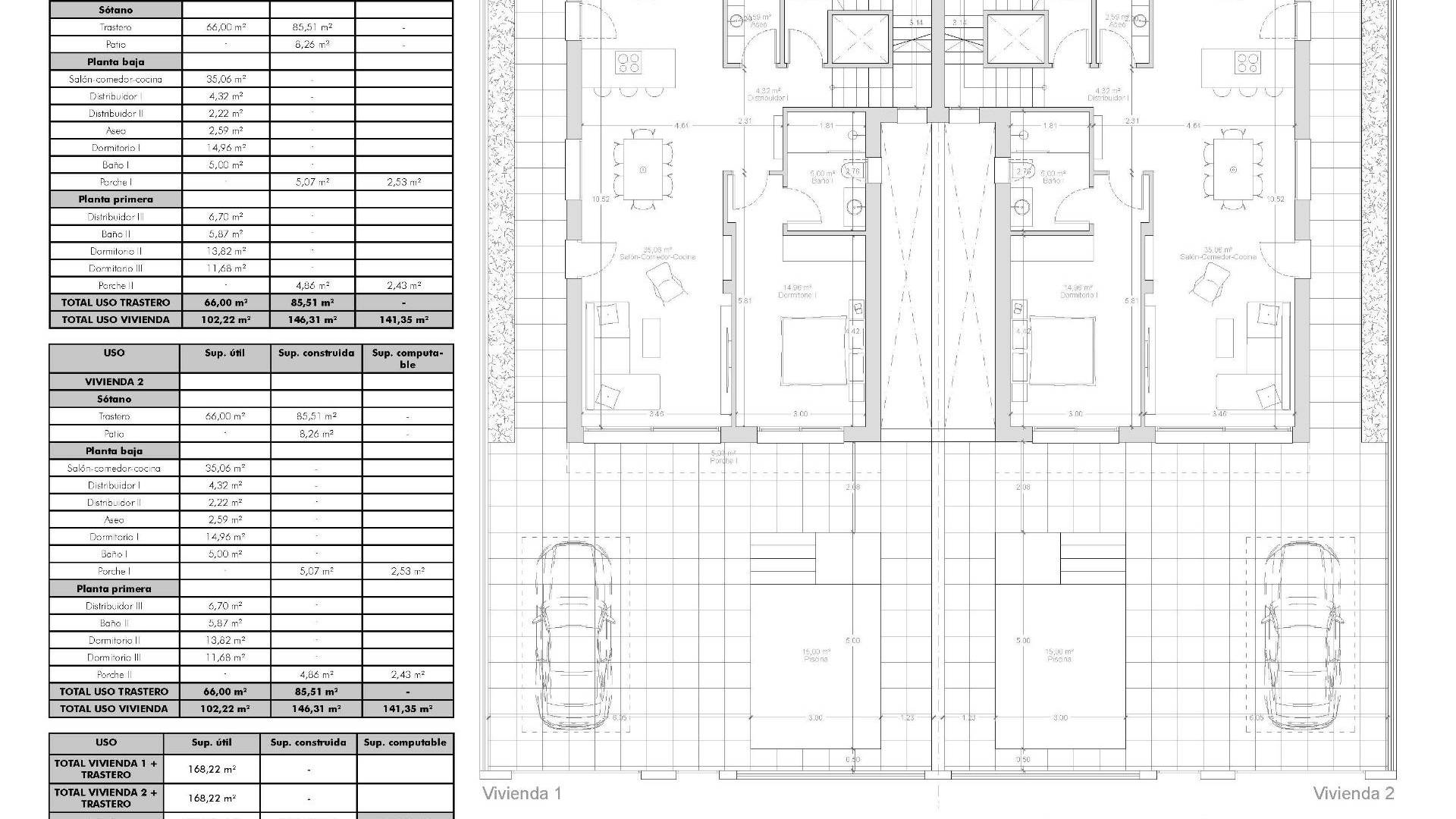
Luksuriøse nybygde tomannsboliger i Benijófar – Costa Blanca Living Privilegert beliggenhet i Benijófar Disse eksklusive nybygde tomannsboligene ligger i den sjarmerende byen Benijófar, et av de mest ettertraktede områdene på Costa Blanca. Benijófar er kjent for sin blanding av tradisjon og moderne livsstil, og tilbyr alle nødvendige tjenester, inkludert supermarkeder, apotek, banker, restauranter og lokale butikker. Bebyggelsen ligger strategisk plassert bare 10 km fra de gylne strendene i Guardamar del Segura og kun 30 km fra Alicante lufthavn, noe som gjør det til et ideelt sted for både permanent opphold og ferie. Romslig og moderne design Hver villa er designet i en moderne stil som maksimerer plassen og det naturlige lyset. Fordelingen inkluderer tre soverom (ett i første etasje og to i andre etasje) og tre bad (inkludert ett i kjelleren), noe som gjør dem perfekte for familier og gjester. Den åpne stuen med spisestue går sømløst over i det fullt utstyrte kjøkkenet, og skaper et varmt og funksjonelt miljø. Store vinduer gir lys i hele huset. Premium-funksjoner og ekstrautstyr Disse villaene skiller seg ut med sin høye finish og gjennomtenkte detaljer: 66 m2 kjeller med bad, galleri og vaskerom Privat basseng, solarium med grill og vask Dekorativ peis i stuen Privat parkering på tomten Heis fra kjeller til øverste etasje 3 solcellepaneler og LED-belysning i hele huset Forhåndsinstallert klimaanlegg Fullt utstyrte bad med møbler og dusjvegger Tomtestørrelser fra 200 m2 Livsstil og omgivelser Benijófar kombinerer sjarmen til en tradisjonell spansk landsby med bekvemmeligheten av moderne tjenester. Naturelskere vil nyte den nærliggende naturparken, som er perfekt for fotturer og sykling. For golfentusiaster ligger La Marquesa Golf bare 5 km unna, mens flere andre toppbaner ligger innenfor en radius på 15 km. Familier kan besøke vannparkene i Rojales (4 km) og Torrevieja (12 km), eller utforske den livlige byen Torrevieja, som ligger bare 12 km unna. Utmerket tilknytning Villaene har enkel tilgang til motorveiene N-332 og AP-7, som sikrer raske forbindelser til Alicante, Elche, Orihuela Costa og Murcia. Området tilbyr den perfekte balansen mellom ro, fasiliteter og tilgjengelighet. Drømmehuset ditt på Costa Blanca Opplev luksus, komfort og middelhavsliv i disse fantastiske nybygde villaene i Benijófar. Kontakt oss i dag for mer informasjon og for å avtale en visning av ditt fremtidige hjem.
Informasjonen som er gitt her kan inneholde feil og inngår ikke i noen kontrakt. Tilbudet kan endres eller trekkes tilbake uten varsel. Priser inkluderer ikke andre kostnader som påløper ved kjøp.
© 2026 Costa Weflen Group · Juridisk merknad · Privat · Cookies · Nettstedskart
Design: Mediaelx
Først og fremst, takk for at du kontakter oss.
Vi har mottatt forespørselen din om egenskapsreferansen:N9148. En av våre agenter vil kontakte deg så snart som mulig.
Først og fremst, takk for at du kontakter oss.
Vi har mottatt en forespørsel om en melding dersom du reduserer prisen på eiendommen med referanse: N9148
I mellomtiden, ta en titt på dette utvalget av lignende boliger, som kan være av interesse for deg: