Alicante (Costa Blanca) - Orihuela Vistabella Golf
Ref.: SP1151
Villa Nybygg

Detaljer

  • 114m2
  • 298m2
  • 3
  • 2
  •  

Kjennetegn

icon Soverom: 3
icon Baderom: 2
icon Areal: 114m2
icon Tomt: 298m2
icon Basseng: Ja
icon Privat basseng
icon Inngjerdet område
icon Nær skole
icon Nær kjøpesenter
icon Antall parkeringsplasser: 1
icon Nær golf / Golf resort
icon Takterrasse: Ja
icon Doble soverom: 3
icon Parkeringsplass
icon Beliggenhet: Tettsted
icon Bruksareal: 100 kvm.
icon Beach: 14000 Meters
icon Terrasse: 121 kvm
Energimerking
Energimerking:
B

Beskrivelse

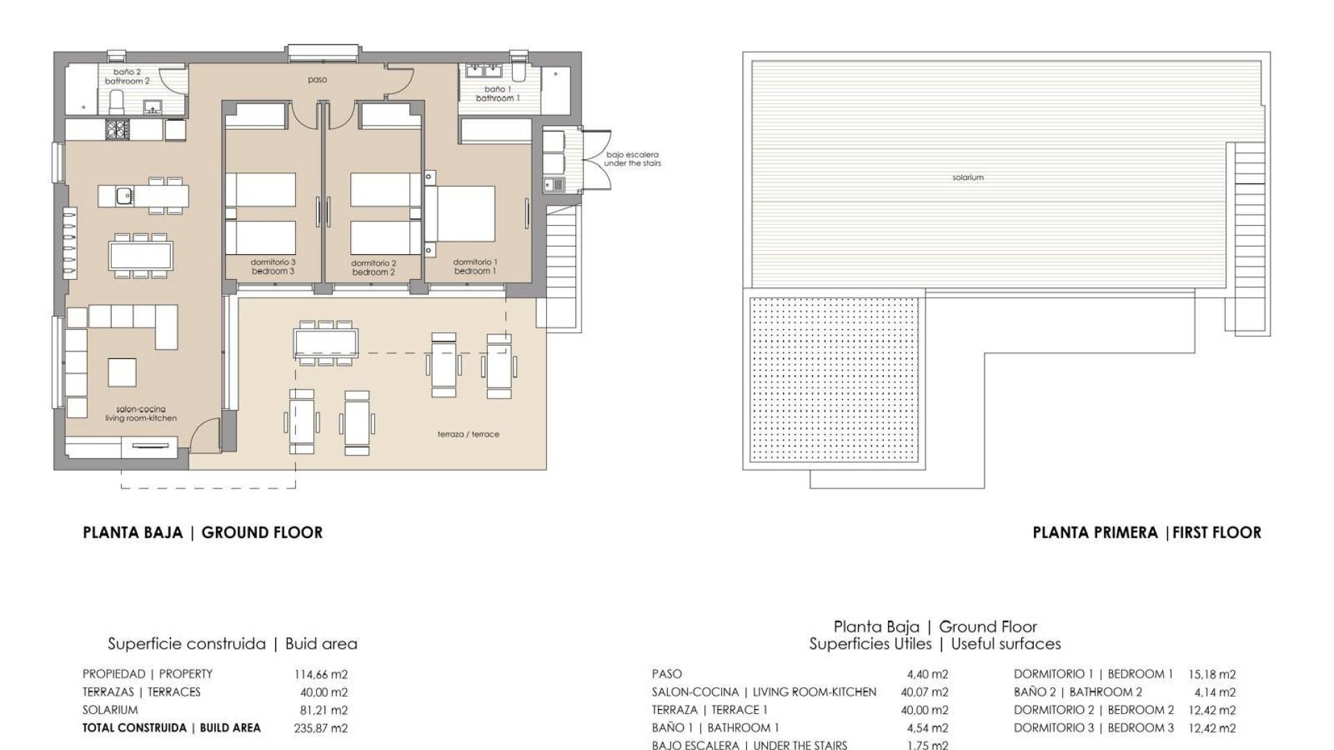
Nybyggede villaer på Vistabella Golf Resort – Orihuela Opplev moderne middelhavsliv i hjertet av Costa Blanca med disse fantastiske nybyggede villaene på Vistabella Golf Resort. Dette eksklusive boligprosjektet ligger mellom San Miguel de Salinas og Los Montesinos, i kommunen Orihuela, og tilbyr luksus, komfort og en uovertruffen beliggenhet for både golfentusiaster og livsstilsøkende. To forskjellige villamodeller Kjøpere kan velge mellom to elegante design: Enetasjes villaer med 3 soverom, 2 bad og solarium på taket. Toetasjes villaer med 4 soverom, 3 bad og solariumterrasse i første etasje. Begge modellene ligger på tomter på ca. 300 m² og har privat basseng og parkering på stedet. Førsteklasses kvalitet og moderne komfort Alle villaene har luksuriøs finish, inkludert fullt installert klimaanlegg, innredet kjøkken med hvitevarer, utvendig belysning, elektriske persienner og elegante dusjvegger på badene. Kombinasjonen av stil og funksjonalitet sikrer et hjem som er både vakkert og praktisk. Eksklusiv livsstil på golfresort Vistabella Golf Resort er et inngjerdet boligområde med en 18-hulls golfbane, paddle-tennisbaner, en bowlingbane, et supermarked og et bredt utvalg av barer og restauranter. Fremtidige oppgraderinger vil løfte resortet til et ekte 5-stjerners reisemål, med planlagte tillegg som en champagnebar, sushibar, spahotell, kunstig strand, tennisbane, fotballbane og gourmetbar. Førsteklasses beliggenhet på Costa Blanca Resortet har utmerket tilgang til regionens beste strender, golfbaner og tjenester. Avstander til viktige severdigheter inkluderer: La Mata-stranden: 18 km Guardamar del Segura-stranden: 20 km Torrevieja: 15 km Alicante lufthavn: 55 km Murcia lufthavn: 68 km Villamartín Golf: 12 km Las Colinas Golf & Country Club: 14 km Drømmehuset ditt venter Enten det er som permanent bolig, feriehus eller utleieinvestering, tilbyr disse nybygde villaene på Vistabella Golf Resort eksepsjonell verdi i et av Spanias mest ettertraktede kystområder. Kontakt oss i dag for å avtale en visning og sikre deg en plass i dette luksuriøse golfsamfunnet. 489

Plassering

Økonomi

Informasjonen som er gitt her kan inneholde feil og inngår ikke i noen kontrakt. Tilbudet kan endres eller trekkes tilbake uten varsel. Priser inkluderer ikke andre kostnader som påløper ved kjøp.

Beregn boliglån

Valutaveksling

  • Pund: 406.041 GBP
  • Russiske rubler: 406.041 RUB
  • Sveitsiske franc: 430.240 CHF
  • Kinesiske yuan: 3.758.683 CNY
  • Dollar: 552.649 USD
  • Svenske kroner: 5.094.656 SEK
  • Norske kroner: 5.085.023 NOK

Be om informasjon

Responsable del tratamiento: Costa Weflen Group SL, Finalidad del tratamiento: Gestión y control de los servicios ofrecidos a través de la página Web de Servicios inmobiliarios, Envío de información a traves de newsletter y otros, Legitimación: Por consentimiento, Destinatarios: No se cederan los datos, salvo para elaborar contabilidad, Derechos de las personas interesadas: Acceder, rectificar y suprimir los datos, solicitar la portabilidad de los mismos, oponerse altratamiento y solicitar la limitación de éste, Procedencia de los datos: El Propio interesado, Información Adicional: Puede consultarse la información adicional y detallada sobre protección de datos Aquí.

Kontakt

Hilde Jeanette Weflen
Eier & CEO Telefon +34 639 689 651 E-post hilde@cweflengroup.com

© 2026 Costa Weflen Group · Juridisk merknad · Privat · Cookies · Nettstedskart

Design: Mediaelx

Kontakt WhatsApp
WhatsApp