
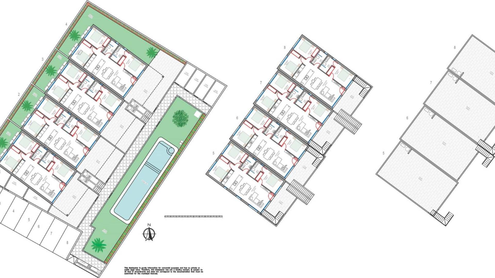
Eksklusive nybygg i Pilar de la Horadada, Costa Blanca Moderne middelhavsstil nær stranden Oppdag dette eksklusive nybyggprosjektet med bare 8 moderne boliger i Pilar de la Horadada, som ligger i gangavstand fra sentrum og bare 3,5 km fra de vakre strendene i Torre de la Horadada og Mil Palmeras. Denne sjarmerende kystbyen, som ligger i den sørligste delen av Costa Blanca, er kjent for sin avslappede atmosfære, tradisjonelle spanske sjarm og utmerkede fasiliteter. Innbyggerne kan nyte godt av et bredt utvalg av tjenester, inkludert supermarkeder, restauranter, butikker og fritidsområder, alt bare noen få minutter unna. Elegante boliger designet for komfort og stil Utbyggingen tilbyr et utvalg av leiligheter i første etasje med terrasser og private hager, eller leiligheter i øverste etasje med romslige terrasser og private solarium. Hver bolig har 3 soverom og 2 bad, hvorav ett er ensuite, designet med moderne linjer og høykvalitets finish for å sikre maksimal komfort. Boligkomplekset har et felles svømmebasseng omgitt av anlagte hager, som skaper et innbydende og fredelig miljø for avslapning og fritid. Hver eiendom har også en privat parkeringsplass og et bod. Høy kvalitet på finish og førsteklasses funksjoner Disse nybygde boligene er konstruert med materialer av topp kvalitet og med fokus på detaljer. Viktige spesifikasjoner inkluderer: Aluminiumsvinduer i antrasittgrått med termisk barriere (merket CORTIZO) Firedobbel vinduer med solbeskyttelse Elektriske aluminiumsluker i soverommene Hengende toaletter og dusjkabinetter med integrert gulv Baderomsmøbler med LED-bakbelyste speil og elektriske håndklestativ Fullt utstyrt kjøkken med Miele-apparater LED-belysning innvendig og utvendig i hele boligen Komplett klimaanlegg via kanaler (Fujitsu-system) Perfekt beliggenhet på Costa Blanca Pilar de la Horadada har en ideell beliggenhet både for permanent opphold og ferier. Byen kombinerer det beste av tradisjonelt spansk liv med moderne infrastruktur og nærhet til havet. Viktigste avstander: Strendene i Torre de la Horadada og Mil Palmeras: 3,5 km Lo Romero golfbane: 6 km Murcia-Corvera flyplass: 40 km Alicante flyplass: 55 km Marinaen i San Pedro del Pinatar: 10 km Ditt nye hjem i solen venter Nyt den perfekte kombinasjonen av design, komfort og middelhavsstil i disse nybygde boligene i Pilar de la Horadada. Enten du er på utkikk etter et feriested eller en bolig for hele året, tilbyr dette eksklusive prosjektet den ideelle balansen mellom kvalitet, beliggenhet og moderne livsstil. Kontakt oss i dag for mer informasjon eller for å avtale en visning.
Informasjonen som er gitt her kan inneholde feil og inngår ikke i noen kontrakt. Tilbudet kan endres eller trekkes tilbake uten varsel. Priser inkluderer ikke andre kostnader som påløper ved kjøp.