
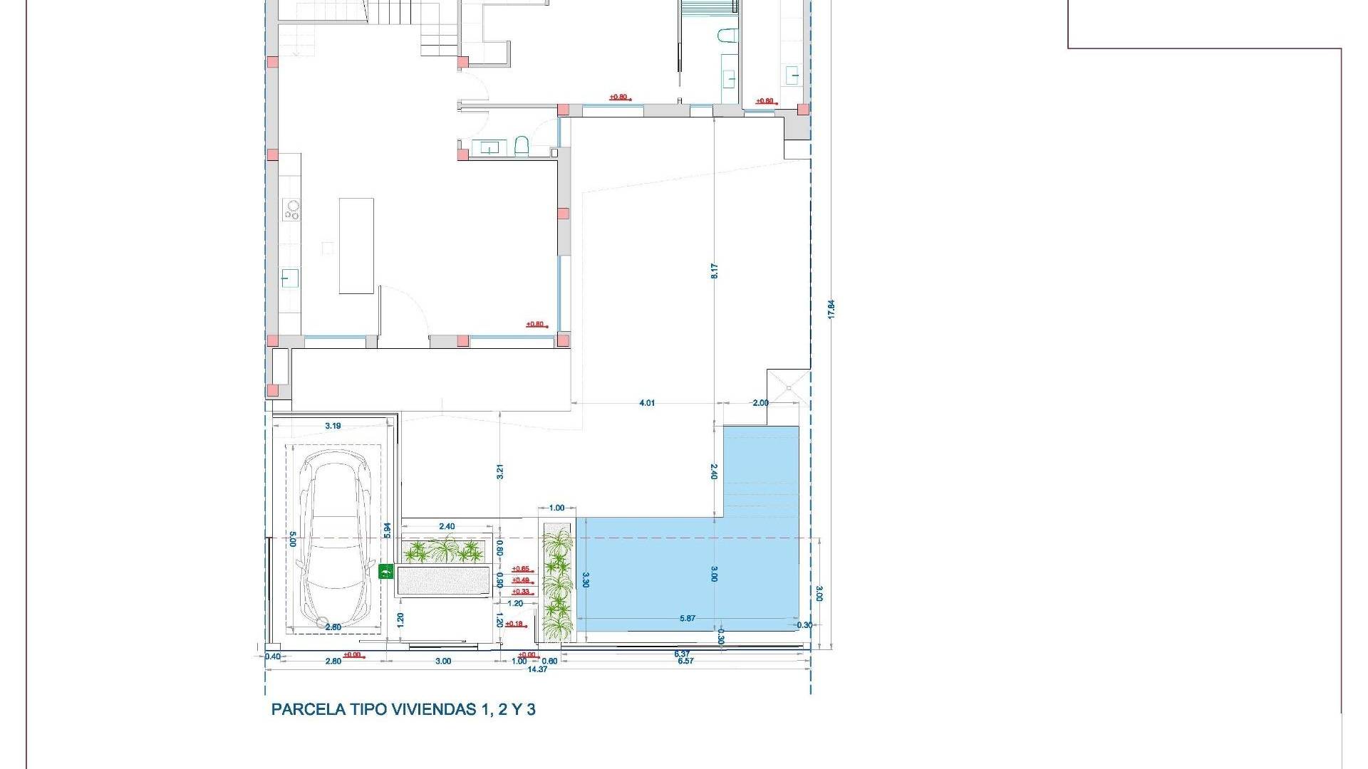
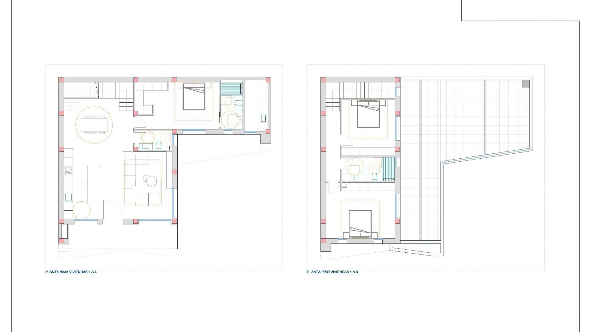
Moderne nybyggede villaer i Dolores, Alicante Moderne livsstil i hjertet av Vega Baja Oppdag dette eksklusive nybyggprosjektet i Dolores, en sjarmerende by i Vega Baja del Segura-regionen, sør for Alicante. Dolores er kjent for sin tradisjonelle spanske karakter og er omgitt av frodig natur. Her kan du nyte en fredelig livsstil, samtidig som alle daglige fasiliteter ligger innen gangavstand – butikker, restauranter, skoler og lokale tjenester. Dette boligområdet ligger bare 12 km fra strendene i La Marina og Guardamar del Segura, og med enkel tilgang til motorveien AP-7, har det perfekte forbindelser til de viktigste kystbyene på Costa Blanca. Elegante, moderne villaer med privat basseng Disse moderne villaene i to etasjer er designet for komfort, funksjonalitet og stil. I første etasje finner du et lyst kjøkken i åpen planløsning som er koblet til stue-spisestuen, med store skyvedører som åpner direkte ut mot terrassen og den private hagen med svømmebasseng. Første etasje har også ett soverom med eget bad, gjestetoalett og et praktisk vaskerom utendørs. I første etasje er det to ekstra soverom, et bad og tilgang til en stor åpen terrasse på 60 m2, perfekt for soling eller avslapning mens du nyter middelhavsklimaet. Hver bolig har privat parkering på tomten. Kvalitetsfinish og moderne komfort Disse villaene er bygget med materialer av høy kvalitet og moderne design, og er fullt utstyrt for helårsbeboelse. Hovedtrekkene inkluderer: Utvendig snekkerarbeid med kuldebro Motoriserte persienner Varmtvannssystem drevet av aerotermisk energi Fullt installert klimaanlegg med kanaler Privat svømmebasseng Privat parkering og anlagt hage Interiøret kombinerer eleganse og funksjonalitet, maksimerer naturlig lys og tilbyr et eksepsjonelt bomiljø med en sterk forbindelse mellom innendørs og utendørs områder. Førsteklasses beliggenhet nær alt Dolores har en strategisk beliggenhet som gir en balanse mellom ro og tilgjengelighet. Viktige avstander: Strendene i La Marina og Guardamar del Segura: 12 km Alicante lufthavn (Elche-El Altet): 30 km (25 minutter med bil) Murcia-Corvera lufthavn: 70 km (1 time med bil) Golfbaner: 15 km Alicante by: 40 km Lev middelhavslivet i Dolores Disse nybygde villaene i Dolores tilbyr den perfekte kombinasjonen av moderne design, komfort og nærhet til kysten. De er ideelle både som permanent bolig og feriebolig, og tilbyr et rolig middelhavsliv omgitt av natur og bekvemmeligheter. Kontakt oss i dag for å avtale en visning og gjøre drømmehuset ditt i Dolores til virkelighet.
Informasjonen som er gitt her kan inneholde feil og inngår ikke i noen kontrakt. Tilbudet kan endres eller trekkes tilbake uten varsel. Priser inkluderer ikke andre kostnader som påløper ved kjøp.