
Eiendom i Castalla til salgs – Boutiquehotellprosjekt
Bygget i 1888 og totalrenovert, bevarer eiendommen den autentiske middelhavsarkitekturen. Med over 1 300 m² bygd areal på en tomt på 48 000 m², er dette en ideell base for et boutiquehotell, landsted eller velværesenter.
Dokumentert Landbruksavkastning:
Oliventrærne og dyrkingsområdet på eiendommen viser betydelig lønnsomhetspotensial. Ifølge foreløpige studier kan utnyttelsen av avlingene generere en årlig inntekt på mellom €25 000 og €30 000 innen fem år, og etablere en stabil passiv inntektskilde.
Utvidelse av Boarealet:
Tomten har ytterligere 700 m² med bebyggbart areal, noe som gir mulighet til å bygge en ny, uavhengig bolig eller utvide de eksisterende fasilitetene (for eksempel ekstra suiter, spa eller bolig for personale/eierne), noe som tilfører investeringen enestående verdi og fleksibilitet.
Eiendommen inkluderer et ferdig prosjekt med lønnsomhetsstudie, designet for å tilby en unik opplevelse i vakre, naturlige omgivelser.
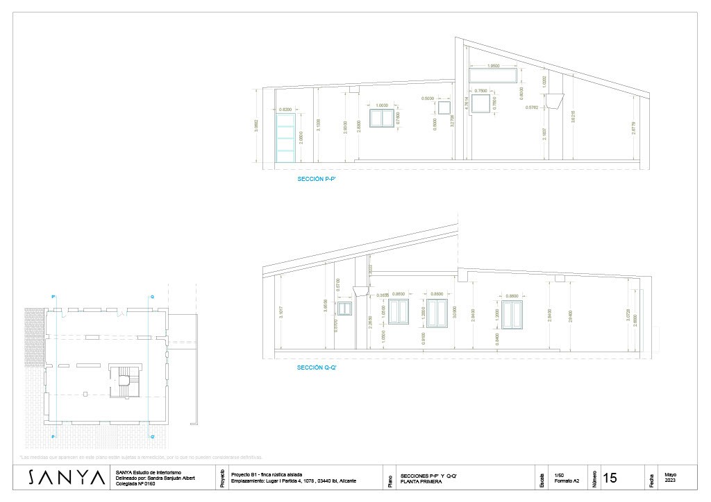
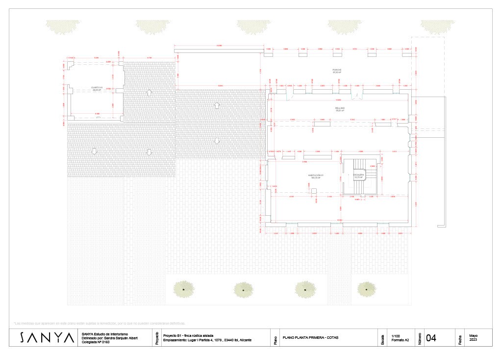
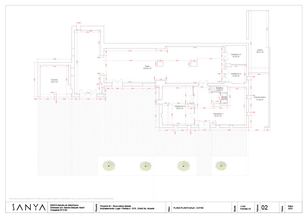
Planen omfatter:
12 rom med eget bad
Restaurant med profesjonelt kjøkken
Selskapslokale for bryllup og arrangementer
Resepsjon, vaskeri og fellesområder
Svømmebasseng, hage og oliventrær
En ideell mulighet for investorer som ønsker å utvikle et bærekraftig og lønnsomt turistprosjekt.
Kun 30 minutter fra Alicante og flyplassen, tilbyr eiendommen fredelige landlige omgivelser med nærhet til kysten og turistattraksjoner.
Denne eiendommen i Castalla representerer en unik investeringsmulighet i hjertet av Costa Blanca. Et prosjekt med historie, sjel og stort potensial for å bli et boutiquehotell på landet.
Eiendommen kan også brukes som privat bolig for de som ønsker et spektakulært hjem i naturskjønne omgivelser.
Informasjonen som er gitt her kan inneholde feil og inngår ikke i noen kontrakt. Tilbudet kan endres eller trekkes tilbake uten varsel. Priser inkluderer ikke andre kostnader som påløper ved kjøp.