
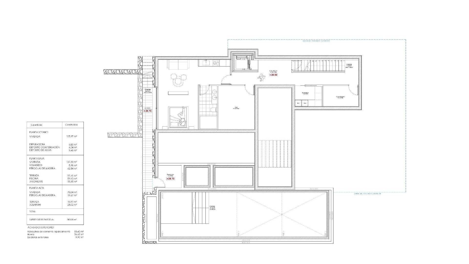
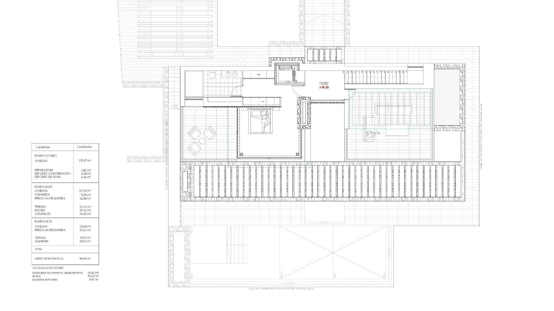
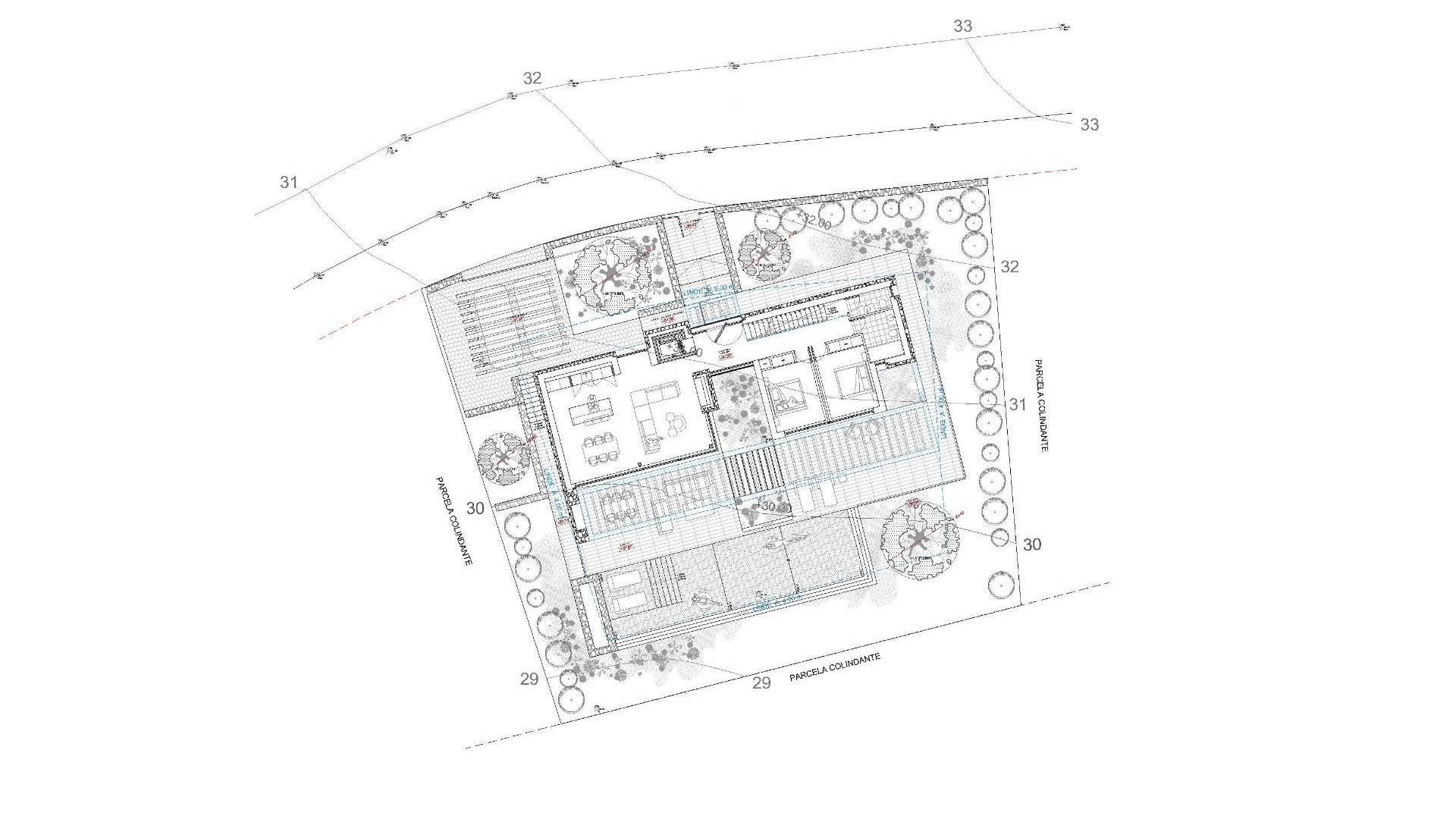
Moderne villa med panoramautsikt over havet i La Fustera, Benissa Costa Denne eksklusive nybygde villaen, designet av en kjent arkitekt og utviklet av en lokal utbygger med mer enn 20 års erfaring, ligger på en 800 m² stor tomt bare noen få skritt fra La Fustera-stranden. Arkitekturen blander middelhavsvarme med moderne eleganse og kombinerer naturstein, tre og myke, nøytrale farger, som integreres sømløst med kystlandskapet. Med et totalt byggeareal på 716 m² fordelt på tre etasjer – kjeller, første etasje og andre etasje – tilbyr villaen en perfekt balanse mellom funksjonalitet, design og komfort. Kjeller Den nedre etasjen på 105,97 m² er designet for både praktisk bruk og fritid. Den inkluderer et fullt utstyrt treningsstudio, vaskerom og tekniske områder, med mulighet for å tilpasse ekstra rom som vinkjeller, kino eller flerbruksrom. Denne etasjen huser også bassengets filtreringssystem og vanntanker, noe som sikrer effektiv styring av alle tekniske installasjoner. Første etasje Hovedetasjen, på 137,93 m², har en lys åpen planløsning som fanger essensen av middelhavslivet. Den romslige stuen, spisestuen og kjøkkenet åpner seg gjennom store vinduer fra gulv til tak mot hovedterrassen og evighetsbassenget, og rammer inn den fantastiske panoramautsikten over havet som preger karakteren til dette hjemmet. To doble soverom, et komplett bad og et gjestetoalett fullfører denne etasjen og gir komfort og funksjonalitet. Utenfor skygger en pergola av tre for utendørs stue og spisestue, omgitt av frodige hager, solterrasser og et 59,40 m² stort evighetsbasseng som visuelt smelter sammen med havet. Første etasje Den øvre etasjen, på 70,19 m², er reservert for master-suiten – et privat tilfluktssted med walk-in-garderobe, eget bad og en stor privat terrasse med fantastisk utsikt over Middelhavet. Et andre soverom eller kontor fullfører denne etasjen, som også gir tilgang til et solarium på 25,02 m², ideelt for å slappe av i solen og nyte roen i omgivelsene. Utvendig og beliggenhet Denne eiendommen ligger i en rolig boliggate omgitt av moderne villaer, og har en eksepsjonell beliggenhet bare 3 minutters gange fra La Fustera-stranden (150 m), Mandala Beach Bar & Restaurant og viktige fasiliteter som supermarkeder og lokale tjenester. Denne villaen er designet med vekt på lys, rom og sømløs overgang mellom inne og ute, og legemliggjør den moderne middelhavsstilen – elegant, avslappet og i perfekt harmoni med den spektakulære panoramautsikten over havet. Sikre deg din drømmevilla i La Fustera, Benissa Costa, og omfavn den ultimate middelhavsstilen med fantastisk havutsikt og uovertruffen komfort.
Informasjonen som er gitt her kan inneholde feil og inngår ikke i noen kontrakt. Tilbudet kan endres eller trekkes tilbake uten varsel. Priser inkluderer ikke andre kostnader som påløper ved kjøp.