
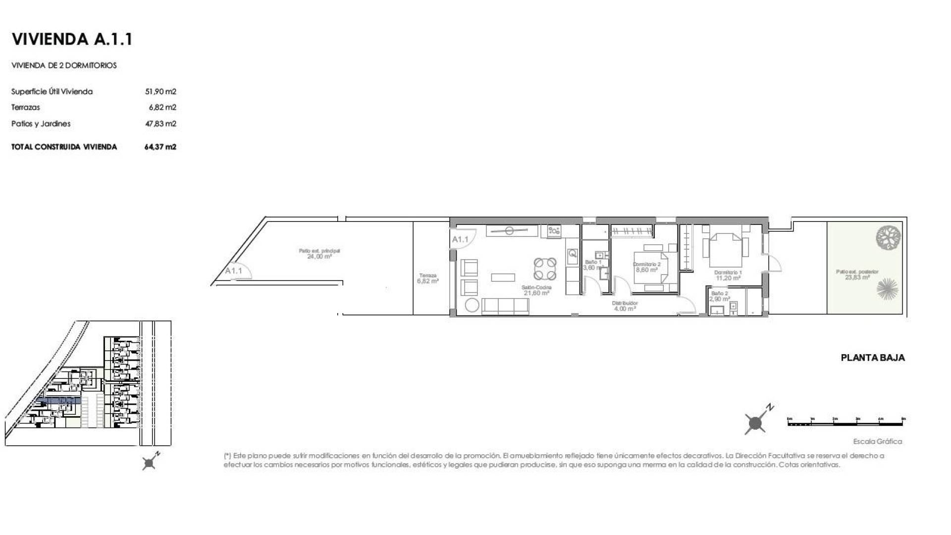
Nybyggede boliger bare 200 meter fra stranden i Puerto de Mazarrón Eksklusivt kystliv i Costa Cálida Vi presenterer et nytt boligprosjekt med moderne boliger i Puerto de Mazarrón, bare 200 meter fra den vakre Playa Negra. Dette prosjektet ligger i et av de mest ettertraktede kystområdene i Murcia-regionen og tilbyr en unik mulighet til å nyte middelhavslivet nær sjøen, viktige fasiliteter og naturlige omgivelser. Puerto de Mazarrón er kjent for sine fantastiske strender, krystallklare vann, sjarmerende marina og avslappede atmosfære. Med utmerkede tjenester, friluftsmuligheter og et varmt klima året rundt, er det et ideelt reisemål både for permanent opphold og ferieturer. Moderne design og funksjonelle planløsninger Dette eksklusive prosjektet består av 30 moderne boliger med 2 soverom og 1 eller 2 bad, nøye designet for å gi komfort, stil og effektivitet. Det lave komplekset inkluderer enheter i første etasje med private terrasser og hager, samt boliger i andre etasje med terrasser og private solterrasser på taket. Husene har private parkeringsplasser enten på eiendommen eller innenfor boligkomplekset. Boligene er orientert for å maksimere naturlig lys, med åpne oppholdsrom, store vinduer og førsteklasses finish. Den første fasen tilbyr tilpassbare boliger med funksjonelle planløsninger som kan tilpasses dine livsstilsbehov. Boligene i første etasje har privat hage, bakgård og parkering på tomten eller felles parkering. Boligene i øverste etasje har privat adkomst i første etasje, terrasse i andre etasje og solarium på taket, samt tildelt parkering. Ekstrautstyr inkluderer private bassenger på terrasser i første etasje eller boblebad på solarium. Spesifikasjoner av høy kvalitet Hver eiendom inkluderer Forsterket inngangsdør Forhåndsinstallasjon for kanalisert klimaanlegg Komplette bad med møbler, speil og dusjvegger Uteområder designet for grill, pergolaer og avslapningsområder Dette boligområdet tilbyr et trygt, familievennlig og etablert miljø, innen gangavstand fra supermarkeder, skoler, medisinske tjenester, parker og stranden. Førsteklasses beliggenhet i Puerto de Mazarrón Avstander til viktige severdigheter Playa Negra 0,2 km Mazarrón Marina 2 km Mazarrón Park kjøpesenter 5 km Cartagena 35 km Murcia by 70 km Murcia Corvera flyplass 45 km Golfbaner Camposol og Hacienda del Álamo 25–35 km Nyt vannsport, fotturer og sykling i den nærliggende Sierra de las Moreras, og oppdag det beste av Costa Cálida-livsstilen. Gjør Middelhavet til ditt hjem Ikke gå glipp av muligheten til å sikre deg en nybygget eiendom bare noen skritt fra stranden i Puerto de Mazarrón. Kontakt oss i dag for tilgjengelighet, detaljer og visningsavtaler. 489
Informasjonen som er gitt her kan inneholde feil og inngår ikke i noen kontrakt. Tilbudet kan endres eller trekkes tilbake uten varsel. Priser inkluderer ikke andre kostnader som påløper ved kjøp.