
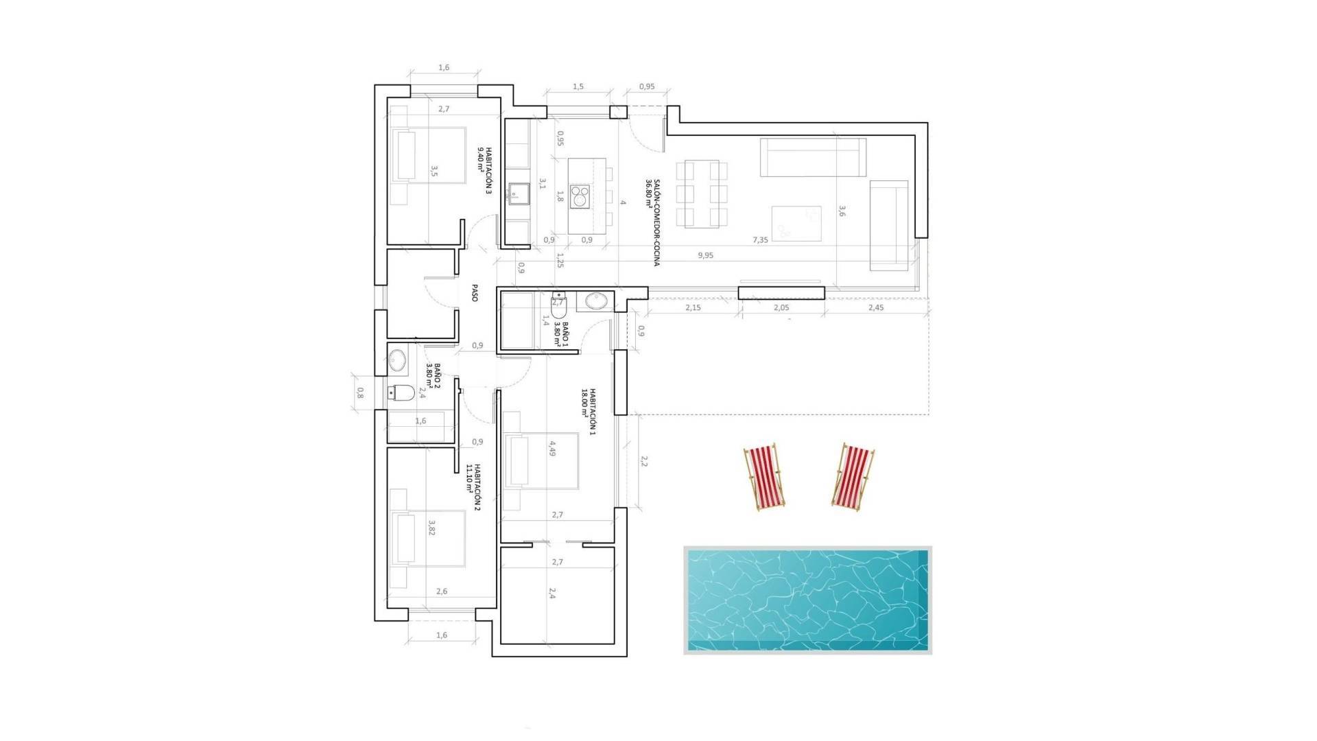
NYBYGGEDE VILLAER MED SVØMMEBASSENG I HONDON DE LAS NIEVES Oppdag elegansen og komforten i disse vakre frittliggende villaene på mellom 108 og 128 m2, designet for å tilby deg en eksepsjonell livsstil, alle i første etasje. Nyt privatlivet som denne villaen tilbyr, hvor du kan slappe av i din egen hage, skape en oase av ro eller kjøle deg ned i din private svømmebasseng for å nyte de varme sommerdagene. Eiendommen er fordelt på to store områder: Dagområde: Her finner vi en romslig stue/spisestue med åpen kjøkkenløsning (kjøkkeninnredning inkludert) som er forbundet med den store, moderne verandaen gjennom to store vinduer, som gir tilgang til hagen og bassenget. Som ekstra plass har den et vaskerom strategisk plassert i boligens planløsning, hvor det er lett tilgang fra alle deler av huset. Hvilestue: I denne delen er det 3 soverom. Hovedsoverommet har et stort walk-in-closet og eget bad. Det er også et ekstra bad for de andre soverommene og resten av huset. Denne villaen ligger i et rolig og boligområde, og gir deg den privatlivet og roen du ønsker, samtidig som du har kort avstand til tjenester, butikker, supermarkeder og restauranter. Det er den perfekte balansen mellom fredelig isolasjon og moderne bekvemmeligheter. I dette boligområdet i Hondón de las Nieves er hver dag en mulighet til å koble seg til verden. Hondón de las Nieves er en kommune i Valencia-regionen i Spania. Den ligger sørvest i provinsen Alicante, i distriktet Vinalopó Medio. Strendene og flyplassen i Alicante ligger i nærheten, bare 30 minutter unna med bil.
Informasjonen som er gitt her kan inneholde feil og inngår ikke i noen kontrakt. Tilbudet kan endres eller trekkes tilbake uten varsel. Priser inkluderer ikke andre kostnader som påløper ved kjøp.