
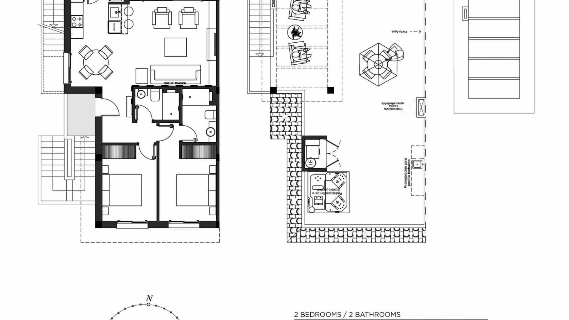
NYBYGD BOLIGKOMPLEKS I ROJALES Nybygget boligkompleks med bungalowleiligheter, rekkehus og tomannsboliger i Rojales. Moderne nybyggede bungalowleiligheter med 2 og 3 soverom i 2 etasjer: første etasje med privat hage og første etasje med privat takterrasse. Moderne rekkehus over 2 etasjer med 3 soverom, 2 bad, åpen kjøkkenløsning og stue, garderober, terrasser, privat hage og solarium. Moderne tomannsboliger over 2 etasjer med 3 soverom, 2 og 3 bad, åpen kjøkkenløsning og stue, garderober, terrasser, privat hage og solarium. Privat boligområde med grønne områder, svømmebasseng og privat parkering. Med alle nødvendige tjenester innen rekkevidde: supermarkeder, golfbaner, restauranter, helsesentre. Rojales er en tradisjonell jordbruksby som har blitt et av de mest populære reisemålene i det indre av Vega Baja, takket være den strategiske beliggenheten nær N-332 og AP-7. De gode tilkomstmulighetene gjør at du kan nå Alicante flyplass på 20 minutter og nyte strendene i Guardamar, La Mata eller Torrevieja på 15 minutter. Rojales tilbyr et rikt og variert gastronomisk og fritidstilbud, og har den prestisjetunge golfbanen La Marquesa Golf. Rojales er en nydelig landsby med alle tjenester som supermarkeder, apotek, banker, restauranter og naturpark like i nærheten av villaene. La Marquesa Golf er en av de mest historiske banene på Costa Blanca, med 18 hull og ett like spesielt som det 17. hullet på Sawgrass. Tradisjon, kvalitet og erfaring forenes for å tilby golfere som besøker oss en unik opplevelse, full av historie der.
Informasjonen som er gitt her kan inneholde feil og inngår ikke i noen kontrakt. Tilbudet kan endres eller trekkes tilbake uten varsel. Priser inkluderer ikke andre kostnader som påløper ved kjøp.