
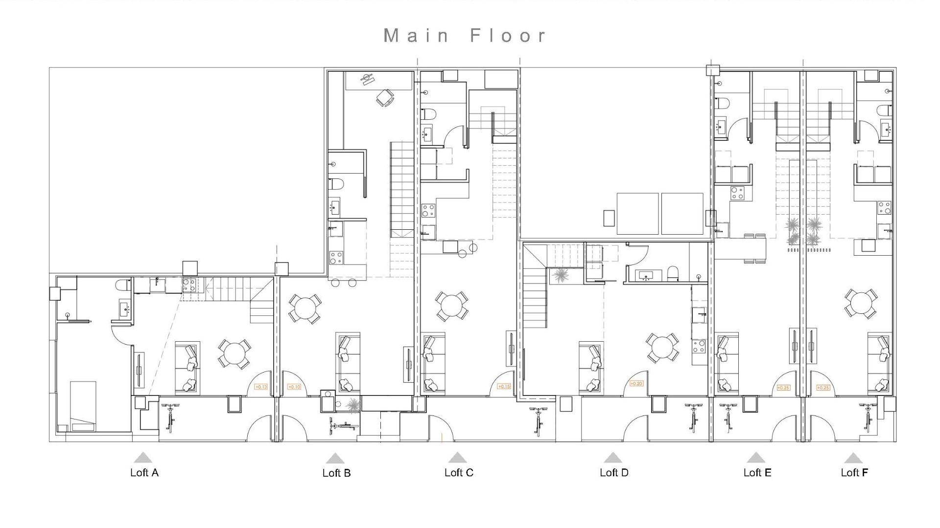
Moderne duplex-loftleiligheter i hjertet av Alicante Eksklusivt nytt boligprosjekt i Benalúa-området Oppdag en unik mulighet til å eie en stilfull duplex-loftleilighet i Benalúa, et av de mest livlige og godt tilknyttede områdene i Alicante. Dette unike prosjektet forvandler seks ubrukte næringslokaler til moderne boliglofter, og tilbyr en moderne urban livsstil bare 1 km fra Middelhavskysten. Benalúa er kjent for sine lokale butikker, kafeer, kulturelle aktiviteter og nærhet til sentrum, noe som gjør det til et svært ettertraktet område for både beboere og investorer. Moderne loftstil Hver bolig er fullstendig omdesignet for å tilby et friskt, åpent og elegant boareal. Prosjektet omfatter 1- og 2-roms duplex-lofter med 2 bad, alle med imponerende doble takhøyder som forsterker det naturlige lyset og gir en ekte loftstemning. Øverste etasje har soverom og komplett bad, noe som skaper privatliv og komfort. Med egen inngang fra gaten og privat terrasse kombinerer hver leilighet moderne arkitektur med praktisk boende. Høy kvalitet på finish, moderne planløsning og lyse interiører gjør disse loftene til et fremragende valg for de som søker stil og funksjonalitet. Komfort og fellesfasiliteter Beboerne vil ha tilgang til et felles svømmebasseng i bygningen, som gir en avslappende og forfriskende atmosfære på varme middelhavsdager. De private terrassene og separate inngangene gir ekstra bekvemmelighet og eksklusivitet. Førsteklasses beliggenhet nær viktige severdigheter Prosjektet har en perfekt beliggenhet både for å bo og for investering, og er omgitt av viktige tjenester og store attraksjoner: Alicante strandpromenade: 1 km Renfe togstasjon: 0,8 km El Corte Inglés kjøpesenter: 0,7 km Alicante rettspalass: 0,5 km Alicante flyplass: 12 km Alicante marina og havn: 2 km Golfbaner (Alicante Golf): 7 km Området tilbyr utmerkede offentlige transportforbindelser, kulturelle arenaer, grønne områder og enkel tilgang til byens vakre strender. En smart investering i Alicantes kystliv Enten du er på utkikk etter en primærbolig, en feriebolig eller en investering med stort utleiepotensial, representerer disse duplex-loftleilighetene i Benalúa en unik mulighet i et av Alicantes mest lovende områder. Kontakt oss i dag for å reservere din eksklusive loftleilighet og nyte et moderne liv i hjertet av Alicante. * Tilgang til svømmebassenget avventer godkjenning fra borettslaget når endringen av bruken av lokalene gjennomføres.
Informasjonen som er gitt her kan inneholde feil og inngår ikke i noen kontrakt. Tilbudet kan endres eller trekkes tilbake uten varsel. Priser inkluderer ikke andre kostnader som påløper ved kjøp.