
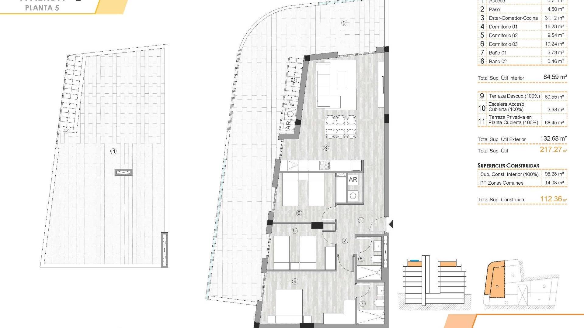
Nybyggede leiligheter i hjertet av Torrevieja Bare 400 m fra Playa del Cura Førsteklasses beliggenhet i sentrum av Torrevieja Dette nye boligbygget har en uovertruffen beliggenhet i sentrum av Torrevieja, bare 400 m fra Playa del Cura. Omgitt av butikker, supermarkeder, restauranter og daglige tjenester, tilbyr det alt du trenger innen gangavstand. Området gir også tilgang til parker, fritidssoner og grønne områder, og skaper en perfekt balanse mellom urbane bekvemmeligheter og øyeblikk av avslapning. Moderne boliger med 2 og 3 soverom Prosjektet tilbyr et utvalg av leiligheter med 2 og 3 soverom, inkludert penthouse-leiligheter, noen av dem med private solterrasser. Hver bolig er designet i moderne stil, med åpen planløsning, store terrasser og integrerte kjøkken i amerikansk stil. Badene er fullt utstyrt med møbler, dusjvegger og gulvvarme. Kjøkkenene inkluderer hvitevarer, og hver leilighet har forhåndsinstallert kanalisert klimaanlegg. Valgfri underjordisk parkering og bod er tilgjengelig. Fasiliteter i resort-stil for velvære Beboerne kan nyte en rekke eksklusive fasiliteter. Første etasje har et fullt utstyrt treningsstudio, ideelt for daglige treningsøkter. Solariet på taket er en ekte oase for avslapning med solsenger, finsk sauna og et minibasseng. Både heisen og trappen går direkte til taket for maksimal bekvemmelighet og tilgjengelighet. Bo i et unikt natur- og kystmiljø Torrevieja er kjent for sitt varme middelhavsklima, med en gjennomsnittlig årstemperatur på 20 ºC, noe som gjør det til et perfekt sted å bo hele året. Byen er kjent for sine naturlige saltlaguner og den beskyttede naturparken La Mata og Torrevieja, som ligger bare 4 km fra boligkomplekset. De rosa og grønne innsjøene, de naturskjønne turstiene og den rike biologiske mangfoldigheten tilbyr en sunn og inspirerende livsstil. Avstander til viktige severdigheter Playa del Cura 0,4 km Torrevieja Marina 1 km La Mata naturpark 4 km Villamartin Golf 8 km Alicante lufthavn 45 km Murcia lufthavn 60 km Opplev middelhavslivsstilen Ikke gå glipp av muligheten til å eie et moderne hjem i en av Costa Blancas mest attraktive kystbyer. Kontakt oss i dag for å avtale et besøk og sikre deg en plass i dette eksepsjonelle nye boligprosjektet.
Informasjonen som er gitt her kan inneholde feil og inngår ikke i noen kontrakt. Tilbudet kan endres eller trekkes tilbake uten varsel. Priser inkluderer ikke andre kostnader som påløper ved kjøp.