
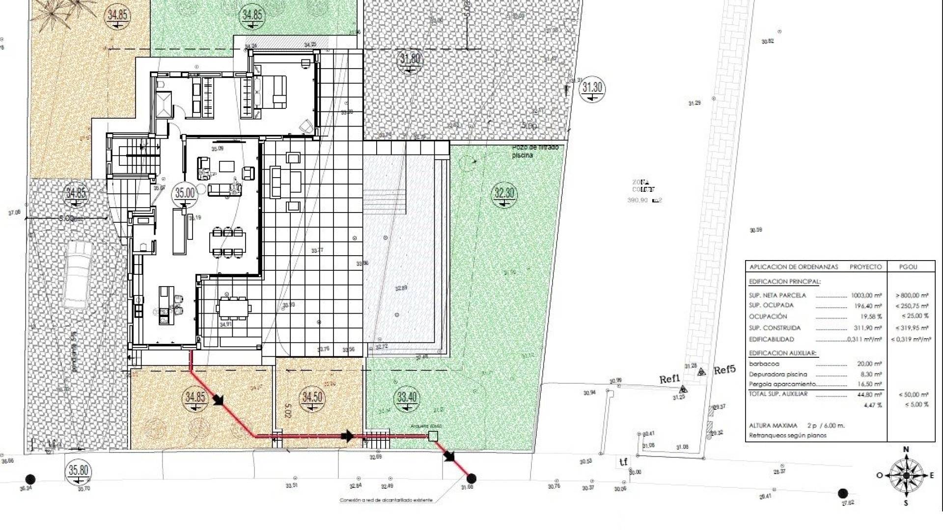
LUKSUS NYBYGG VILLA I MORAIRA Nybygg Luksusvilla med de beste kvaliteter, og med gangavstand til de vakre strendene og sentrum av Moraira. Denne luksusvillaen er fordelt over 3 etasjer: i første etasje (147,30m2) er det en stor lys stue ved siden av det åpne kjøkkenet med en kokeøy, et gjestetoalett og et soverom med eget bad. På utsiden av denne etasjen finner vi svømmebassenget og grillplassen. Deretter går vi opp til øverste etasje (133,65m2) hvor vi finner 3 romslige rom med eget bad. Til slutt kjelleretasjen, hvor det leder til dobbelgarasje og vaskerom. EKSTRA: Teknisk snekring med sikkerhetsglass, komplett kjøkken med hvitevarer fra Siemens, komplette bad og kraner fra Roca-merket, LED-belysning, aerotermisk system for varmtvann og gulvvarme, kanalisert klimaanlegg (varmt og kaldt) i hele huset, solcellepaneler, garderober , elektriske persienner, innvendig alarm, forhåndsinstallasjon av utvendig alarm og sikkerhetskameraer. Rektangulært basseng med overløpssystem på 12x4,5 meter, grillplass på 22m2, vaskerom, ferdig hage. Automatiske adkomstdører. Energiklassifisering A. Sør-orientering. Moraira er en liten by med gode restauranter, barer og mange supermarkeder rundt. Det er en veldig hyggelig strand rett ved siden av byen som er flott for familier. Strandpromenaden tilbyr en fantastisk utsikt over Penon Ifach over bukten i Calpe. Kystveien dit er vel verdt å gjøre med noen spektakulære utsikter. Moraira ligger omtrent 1 time og 15 minutter nordover opp A7 fra Alicante flyplass, det er ganske enkelt å komme til. Det er omtrent samme avstand eller litt mindre sør fra Valencia flyplass. 489
Informasjonen som er gitt her kan inneholde feil og inngår ikke i noen kontrakt. Tilbudet kan endres eller trekkes tilbake uten varsel. Priser inkluderer ikke andre kostnader som påløper ved kjøp.