
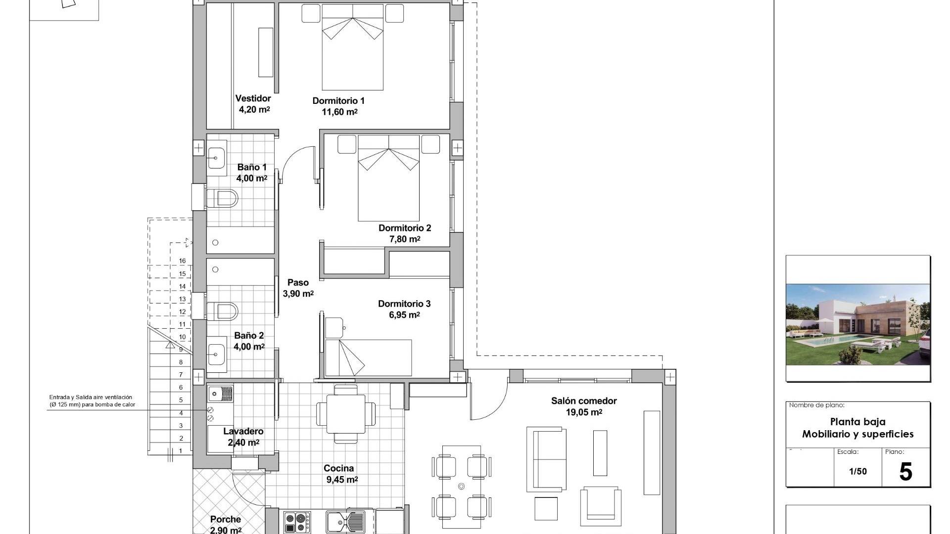
Nybygde frittliggende villaer med privat basseng i Country Club de Mazarrón Moderne villaer i et rolig boligområde Oppdag dette eksklusive utvalget av frittliggende villaer i Country Club de Mazarrón-området i Murcia. Beliggende i et rolig boligområde omgitt av natur, tilbyr denne beliggenheten den perfekte balansen mellom ro og tilgjengelighet. Country Club er kjent for sin avslappede atmosfære, sine brede gater og sin nærhet til både kysten og byen Mazarrón, noe som gjør det til et attraktivt valg for permanent opphold eller ferie. Enetasjes design med private uteområder Hver villa er nøye designet i ett plan, noe som gir komfort og enkelhet i hverdagen. Planløsningen inkluderer tre romslige soverom og to bad, hvorav det ene er en suite. Hovedsoverommet har et walk-in-closet. Den lyse, åpne stuen kombinerer stue, spisestue og kjøkken, med direkte tilgang til terrassen og hagen. De store vinduene lar naturlig lys strømme gjennom hele huset og skaper en perfekt forbindelse mellom innendørs- og utendørslivet. Den private hagen har et privat svømmebasseng og en terrasse som er ideell for soling eller utendørs måltider. Hver eiendom har også parkering på tomten, noe som garanterer komfort og sikkerhet. Privat solterrasse med åpen utsikt Den private solterrassen på taket er tilgjengelig via en utvendig trapp og tilbyr et ekstra uteområde hvor du kan nyte det middelhavske klimaet hele året. Solterrassen er utstyrt med vann- og strømtilkoblinger, noe som gjør det mulig å installere et sommerkjøkken, en utendørs dusj eller en hvileplass i fremtiden. Dette høytliggende området er perfekt for å slappe av, ta imot gjester eller nyte den panoramautsikten over det omkringliggende landskapet. Høy kvalitet og moderne komfort Disse nybygde villaene er bygget med materialer av høy kvalitet og moderne finish for å sikre holdbarhet og komfort. Blant funksjonene er innebygde skap i alle soverom, forhåndsinstallert sentral klimaanlegg og forhåndsinstallert kjøkken, noe som gir kjøperne muligheten til å tilpasse interiøret etter sin personlige stil. Det moderne designet og den praktiske planløsningen gjør disse boligene egnet som permanent bolig, feriehus eller smart investering. Beliggenhet nær Mazarrón og kysten Prosjektet ligger omtrent 9 km fra strendene i Mazarrón og bare 5 km fra byen Mazarrón, hvor du finner alle nødvendige tjenester, inkludert butikker, restauranter, legesentre og skoler. Området har også enkel tilgang til motorveien, noe som gir gode forbindelser til nærliggende byer og tettsteder. Viktige avstander til interessante steder Byen Mazarrón: 5 km Strendene i Mazarrón og Bolnuevo: 9 km Yachthavnen i Mazarrón: 14 km Golfbaner: 20 km Murcia Corvera flyplass: 45 km Cartagena by: 35 km Ditt nye hjem på Costa Cálida Nyt privatlivet, komforten og friluftslivet i en av disse eksklusive nybygde villaene i Country Club Mazarrón. Kontakt oss i dag for mer informasjon eller for å avtale en visning, og sikre deg din plass i dette attraktive boligområdet.
Informasjonen som er gitt her kan inneholde feil og inngår ikke i noen kontrakt. Tilbudet kan endres eller trekkes tilbake uten varsel. Priser inkluderer ikke andre kostnader som påløper ved kjøp.