
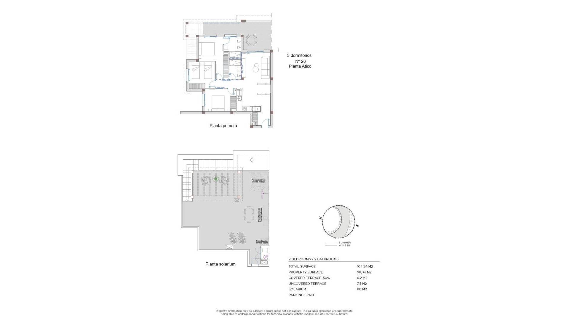
Moderne middelhavsleiligheter i Ciudad Quesada, Costa Blanca Eksklusivt boligområde Oppdag et eksklusivt privat boligkompleks designet for å tilby maksimal komfort, kvalitet og livsstil på et av de mest ettertraktede stedene på Costa Blanca. Dette moderne boligkomplekset ligger i Ciudad Quesada, bare noen minutter fra Alicante internasjonale lufthavn, og kombinerer den tidløse sjarmen til middelhavsarkitektur med et friskt, funksjonelt design som er ideelt for moderne livsstil. Elegante leiligheter med private uteområder Komplekset har to typer boliger som passer til forskjellige livsstiler. Velg mellom leiligheter i første etasje med en romslig privat hage, perfekt for avslapning utendørs, eller leiligheter i andre etasje med et stort privat solarium, ideelt for å nyte solskinnet og den rolige utsikten hele året. Hver leilighet har 2-3 soverom og 2 bad, og tilbyr lyse og komfortable interiører. I tillegg har hver bolig privat parkering innenfor komplekset og et bod for ekstra bekvemmelighet. Fellesarealer for avslapning og velvære Boligkomplekset er designet for nytelse og avslapning, og tilbyr vakkert anlagte felleshager og et stort svømmebasseng som skaper en rolig og eksklusiv atmosfære. Enten du ønsker å slappe av i solen, ta en forfriskende dukkert eller bare nyte naturen, tilbyr dette boligprosjektet alt du trenger for å leve komfortabelt på Costa Blanca. Førsteklasses beliggenhet nær strender og golf Ciudad Quesada er et veletablert og livlig samfunn, kjent for sine utmerkede tjenester, restauranter og fritidsaktiviteter. La Marquesa golfbane, som ligger bare noen få minutter unna, er en av de mest historiske golfbanene på Costa Blanca, med 18 hull og det berømte hull 17 inspirert av Sawgrass, som tilbyr en unik opplevelse for golfentusiaster. De vakre blåflaggstrendene i Guardamar del Segura, La Mata og Torrevieja ligger bare 15 km fra prosjektet, og er perfekte for soling eller vannsport. Alicante internasjonale lufthavn ligger praktisk til 40 km unna, noe som gjør det enkelt og tilgjengelig å reise. Middelhavslivsstil på sitt beste Omgitt av natur, golfbaner og havet, tilbyr dette boligprosjektet den perfekte rammen for både permanent boende og ferieopplevelser. Det er et sted hvor moderne komfort møter sjarmen ved middelhavsstilen. Planlegg ditt besøk i dag Ikke gå glipp av muligheten til å eie ditt nye hjem i Ciudad Quesada, Costa Blanca. Kontakt oss i dag for mer informasjon eller for å avtale en privat visning av disse eksepsjonelle nybygde leilighetene. 489
Informasjonen som er gitt her kan inneholde feil og inngår ikke i noen kontrakt. Tilbudet kan endres eller trekkes tilbake uten varsel. Priser inkluderer ikke andre kostnader som påløper ved kjøp.