
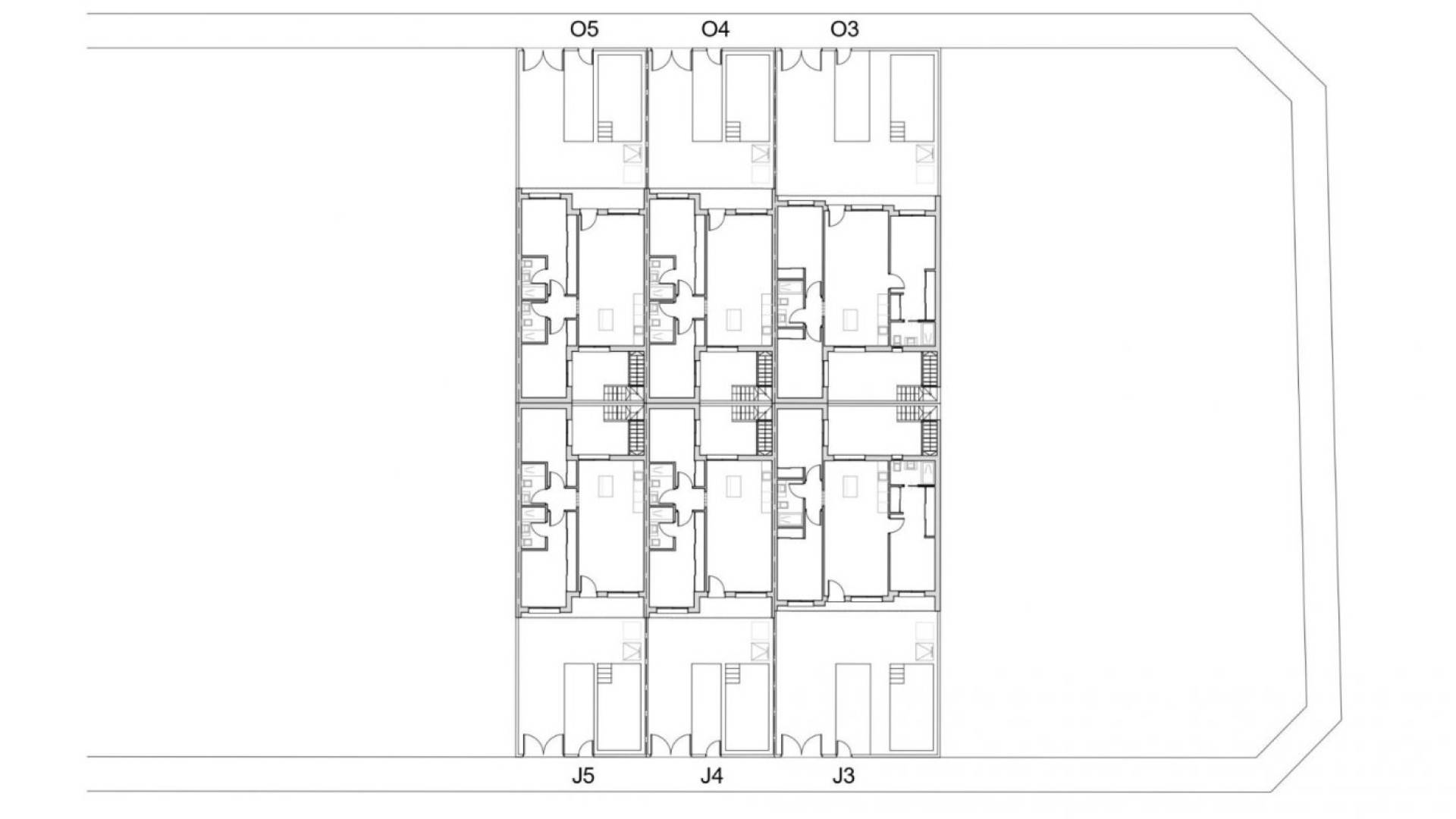
NYBYGGDE REKKEHUS I SAN JAVIER Nybygget luksuskompleks med 24 villaer på ett plan eller i 2 etasjer med privat basseng, terrasseområde og solarium med sommerkjøkken som lar deg nyte alle soltimer, hver dag hele året. Hver villa har 2 eller 3 soverom og 2 utstyrte bad på ett plan eller 3 soverom og 3 utstyrte bad på to plan. Designet med en moderne stil og åpen planløsning, som består av et fullt utstyrt kjøkken og stue/spisestue. Utbyggingen ligger i San Javier (Murcia), nær stranden, omgitt av tjenester, parker, idrettsanlegg og flere golfbaner. Eiendommen vil oppfylle de høyeste standarder og vil være utstyrt med: Privat svømmebasseng med dusj. Kjøkken fullt møblert og utstyrt med stekeovn, mikrobølgeovn, kjøleskap, integrert oppvaskmaskin, platetopp og avtrekksvifte. Belysning: inne i eiendommen (spisestue, kjøkken, korridorer og bad) samt utearealer. Fôrede garderober med skuffer. Fullt utstyrt bad med toalett, servantskap, speil og dusj med skjermpaneler. Pre-installasjon for kanalklimaanlegg. Solarium med sommerkjøkken. Parkeringsplass på tomten. San Javier ligger nær alle fasiliteter med lett tilgang til stranden, vannsport, butikker og transportnettverket. Her kan du nyte alle fasilitetene som San Javier har å tilby, som de lokale butikkene, barene og restaurantene, i tillegg til å være i nærheten av kjøpesentre, flyplassen i Murcia og alle de vakre stedene som finnes langs Mar Menor. Corvera/Murcia flyplass ligger 30 minutter unna og Alicante flyplass ligger 45 minutter unna.
Informasjonen som er gitt her kan inneholde feil og inngår ikke i noen kontrakt. Tilbudet kan endres eller trekkes tilbake uten varsel. Priser inkluderer ikke andre kostnader som påløper ved kjøp.