
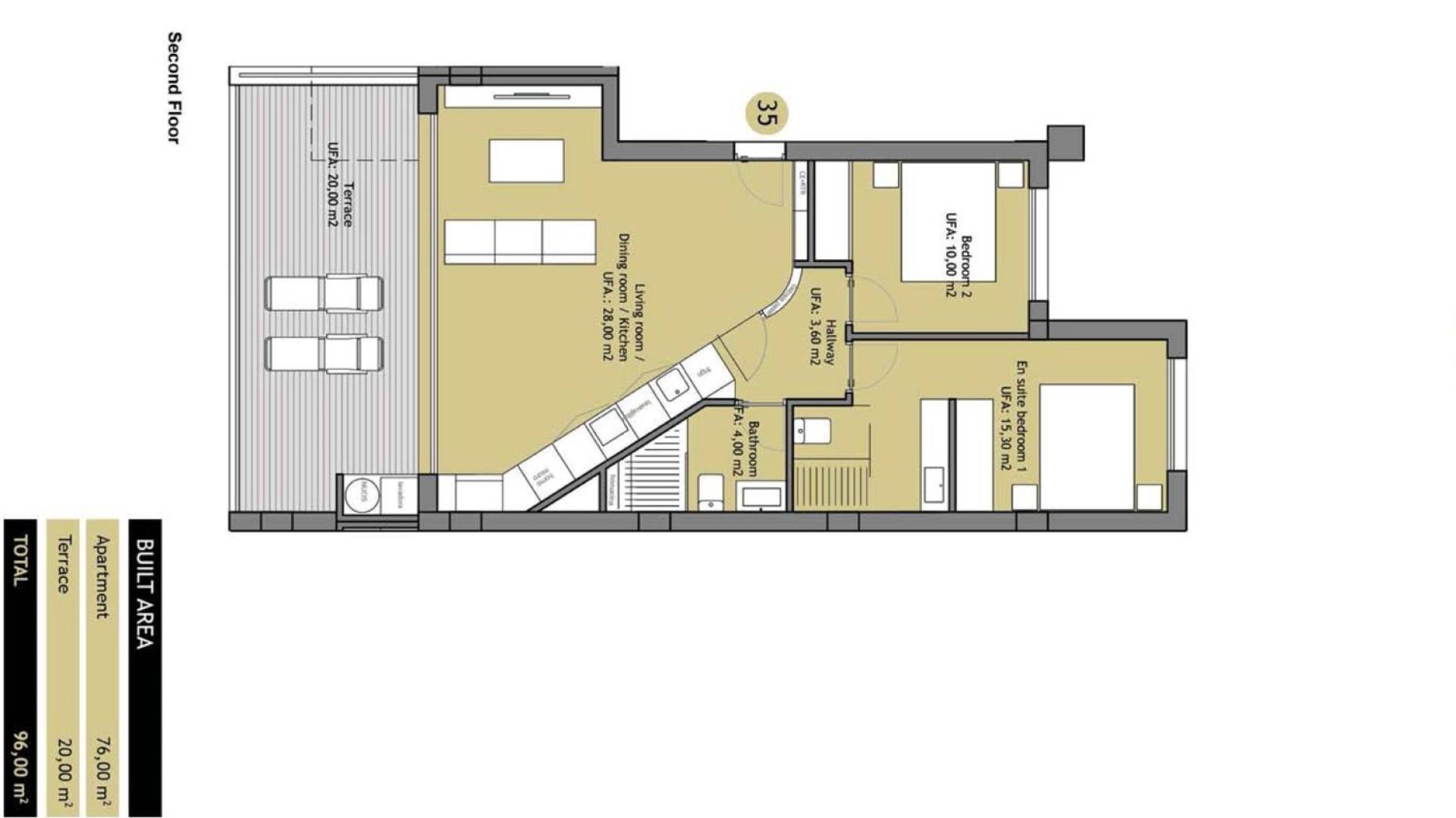
2-roms leilighet i Hinojo i Las Colinas Golf Hvis du drømmer om et luksuriøst hjem på Las Colinas Golf and Country Club i det mest gunstige klimaet i Spania, tilbyr vi deg denne møblerte drømmeleiligheten i Community Hinojo 1 i andre etasje. Når du kommer inn, blir du møtt av en varm og koselig atmosfære. Denne sørvendte leiligheten er kjærlig møblert og innredet i ibizastil. Stuen har tre store vinduer over hele bredden, som alle kan skyves opp slik at terrassen med samme fliser blir en forlengelse av stuen. Fra denne terrassen med koselig loungesett kan du nyte en fantastisk utsikt med mye grønt (skog), hav og Mar Menor med Manga. Kjøkkenet er utstyrt med luksuriøse Bosch-apparater og kan lukkes helt av til en bred hvit vegg. Det er to soverom med store, innbygde garderobeskap og ekstra oppbevaringsplass under sengene. Hovedsoverommet har et luksuriøst bad en suite, det andre soverommet har også sitt eget separate bad. Leiligheten inkluderer underjordisk parkering og privat bod. Viktigste fordeler med denne leiligheten er: Fullt møblert Sørvendt terrasse Meget godt og rent vedlikeholdt Som ny; ingen skader eller feil Fantastisk utsikt Fullt sørvendt Terrassen er innkapslet med glassvegger slik at du også har full utsikt mens du sitter Aircondition i alle rom Filtrert drikkevann Vaskemaskin/tørketrommel tilgjengelig i skapet utendørs Las Colinas Golf & Country Club En verden for seg! Las Colinas Golf & Country Club er et av de mest prestisjefylte feriestedene på Costa Blanca! Det er et eksklusivt og unikt golfresort på 330 hektar med mange sportsfasiliteter, inkludert golf, padel, fotturer, fitness, yoga og mye mer. Det er en verden for seg, hvor du kan nyte en sunn middelhavsstil. Med et eksepsjonelt klima og førsteklasses tjenester, har feriestedet blitt anerkjent som "Spanias og Europas ledende villaresort" av World Travel Awards de siste årene. Innhyllet blant åsene i Dehesa de Campoamor – på Middelhavskysten sør for Alicante – er Las Colinas Golf & Country Club et unikt naturområde som er blitt nøye bevart, og hvor eksklusive boliger er integrert i omgivelsene der du kan slappe av og nyte landskapet. Dette feriestedet, med noen utmerkede restauranter og Wow Beach by Las Colinas, har et internasjonalt rykte og er godt kjent og ettertraktet av kjendiser. Finn ditt drømmehjem i dag ved å ta en titt på de vakreste og mest eksklusive hjemmene vi har å tilby!
Informasjonen som er gitt her kan inneholde feil og inngår ikke i noen kontrakt. Tilbudet kan endres eller trekkes tilbake uten varsel. Priser inkluderer ikke andre kostnader som påløper ved kjøp.