
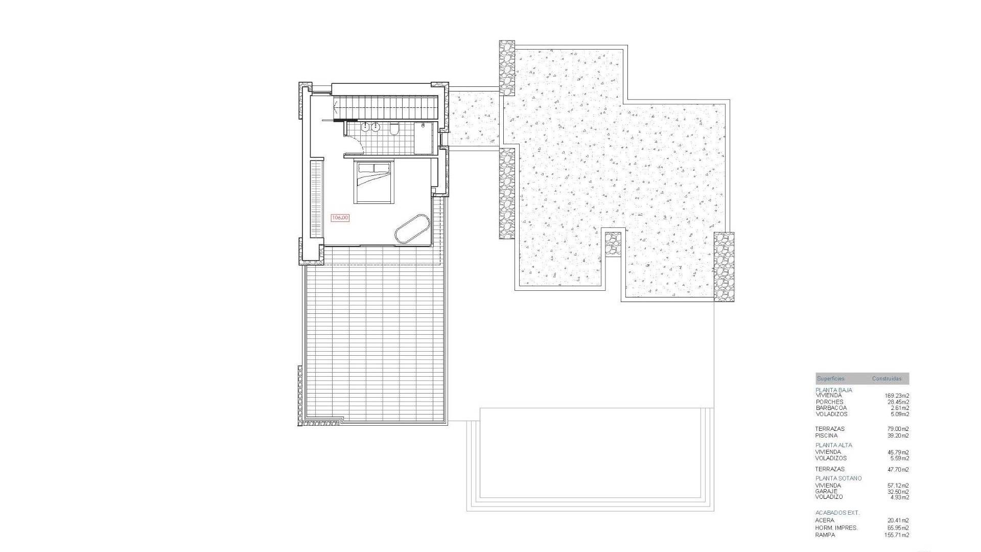
Luksusowa nowa willa z widokiem na morze w San Jaime, Benissa Ekskluzywna rezydencja w doskonałej lokalizacji na Costa Blanca Położona w prestiżowej dzielnicy San Jaime w Benissa, ta wyjątkowa nowa willa oferuje widok na morze, prywatność i nowoczesny śródziemnomorski design, zaledwie 2 km od plaży. Położona w cichej ślepej uliczce, nieruchomość gwarantuje spokój, pozostając jednocześnie blisko niezbędnych usług i obiektów rekreacyjnych na północnym wybrzeżu Costa Blanca. San Jaime jest jedną z najbardziej poszukiwanych stref mieszkaniowych w Benissa Costa, znaną z eleganckich willi, zielonego otoczenia i bliskości pól golfowych, plaż i uroczych nadmorskich miasteczek. Willa położona jest na dużej działce o powierzchni 1021 m2, a jej całkowita powierzchnia zabudowy wynosi 351 m2. Obecnie znajduje się w trakcie budowy, a konstrukcja jest już ukończona. Przemyślany projekt na trzech poziomach Ta nowoczesna willa jest podzielona na trzy starannie zaplanowane piętra, łącząc funkcjonalność z wyrafinowaną estetyką. Na poziomie wejściowym znajduje się prywatny garaż, pralnia i pomieszczenie techniczne, dzięki czemu praktyczne przestrzenie są dyskretnie wkomponowane w ogólny projekt. Na głównym piętrze otwarta część dzienna z jadalnią płynnie łączy się z w pełni wyposażoną kuchnią, tworząc jasną i przyjazną atmosferę, idealną do codziennego życia i rozrywki. Na tym poziomie znajdują się również dwie przestronne sypialnie, każda z własną łazienką. Taras zewnętrzny i prywatny basen rozszerzają przestrzeń mieszkalną, oferując idealne miejsce do relaksu, spożywania posiłków i cieszenia się śródziemnomorskim klimatem z pięknym widokiem na morze. Górne piętro przeznaczone jest na apartament główny z łazienką i bezpośrednim dostępem do dużego otwartego tarasu, z którego można podziwiać panoramiczne widoki i spokojne zachody słońca. Najwyższej jakości wyposażenie i nowoczesny komfort Willa jest wyposażona w wysokiej jakości wykończenia i zaawansowane systemy zapewniające maksymalny komfort i wydajność, w tym: W pełni wyposażona kuchnia ze sprzętem AGD Designerskie łazienki z meblami Elektryczne rolety Wideo domofon i system alarmowy System aerotermiczny do podgrzewania wody i ogrzewania podłogowego W pełni zainstalowana klimatyzacja kanałowa Doskonała lokalizacja w pobliżu pola golfowego, plaż i usług Nieruchomość znajduje się obok klubu golfowego Club de Golf Ifach i w pobliżu popularnego supermarketu Pepe La Sal. Wybrzeże i zatoczki Benissa Costa znajdują się zaledwie 2 km od obiektu. Odległości do najważniejszych punktów Plaża 2 km Moraira 5 km Calpe 8 km Club de Golf Ifach 0,5 km Lotnisko w Alicante 80 km Lotnisko w Walencji 110 km Zabezpiecz swoją wymarzoną willę w Benissa Costa Ta wyjątkowa willa łączy w sobie nowoczesną architekturę, widok na morze i doskonałą lokalizację w San Jaime. Skontaktuj się z nami już dziś, aby uzyskać więcej informacji lub umówić się na prywatną wizytę w tej ekskluzywnej, nowo wybudowanej nieruchomości w Benissa.
Podane informacje mogą zawierać błędy i nie stanowią części żadnej umowy. Oferta może zostać zmieniona lub wycofana bez uprzedzenia. Ceny nie obejmują kosztów zakupu.