
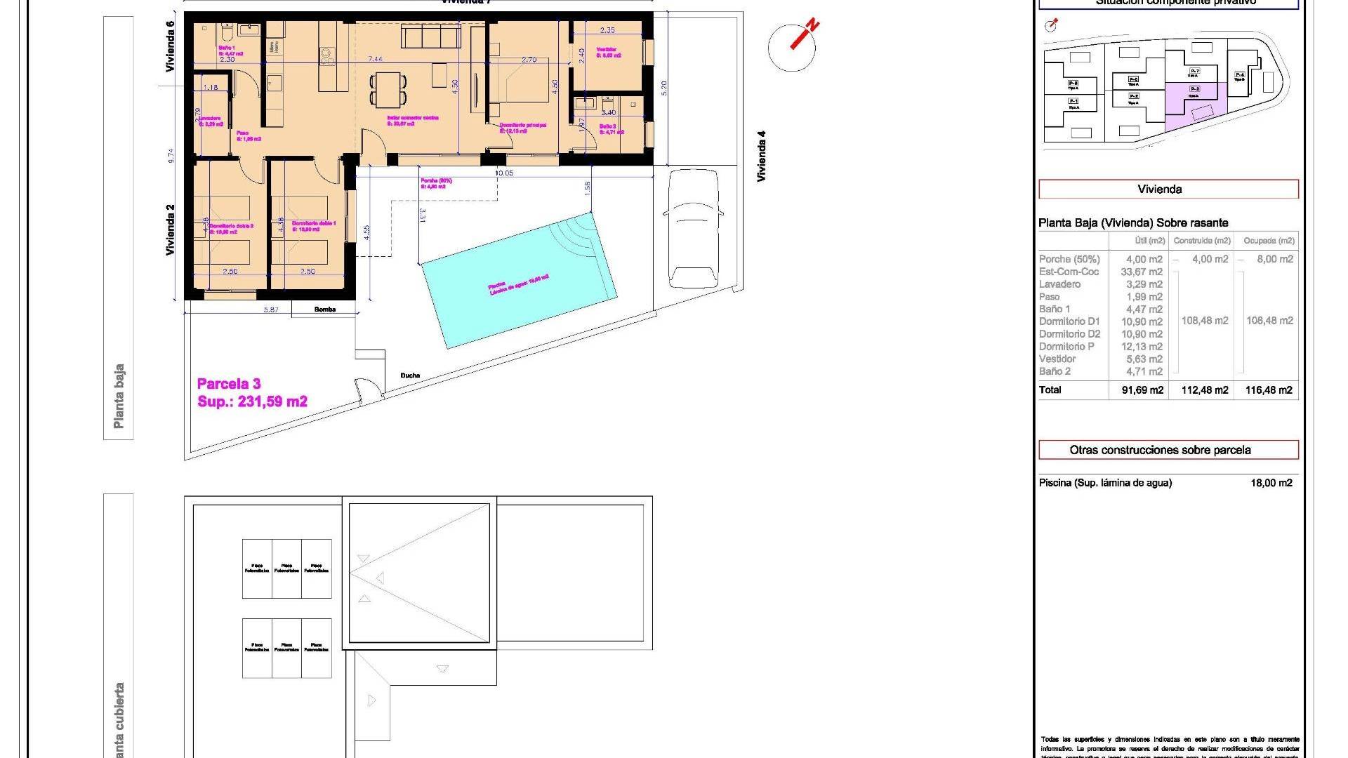
СРЕДИЗЕМНОМОРСКИЙ СТИЛЬ ЖИЗНИ НА ОДНОМ УРОВНЕ Деревня Дайя-Нуэва представляет собой идеальное сочетание спокойной и комфортной сельской жизни и оживленных прибрежных районов Коста-Бланка, до которых можно добраться за несколько минут на машине. Этот комплекс новых полуотдельных и отдельных вилл был спроектирован с вниманием к мельчайшим деталям и построен с высоким уровнем отделки. Все виллы будут иметь собственный бассейн. ВАШ СОБСТВЕННЫЙ ПРОСТРАНСТВО ДЛЯ ЖИЗНИ, ВСЕ НА ОДНОМ УРОВНЕ В дизайне использован светлый, свежий и современный подход. Расположены в небольшой деревне на юге провинции Аликанте. Деревня называется Дайя Нуэва. Новые одноэтажные виллы в новой части Дайя-Нуэва. В нескольких минутах ходьбы от центра деревни. Недвижимость состоит из 3 спален, 2 ванных комнат и частного бассейна площадью 18 м2. Гостиная/столовая с двойной высотой потолков, открытая кухня, естественное освещение и возможность установки солярия за дополнительную плату. В главной спальне есть возможность оборудовать гардеробную и ванную комнату. Расположен в новом тихом жилом районе, примерно в 10 минутах от пляжа Ла Марина дель Пинет и Гуардамар дель Сегура. Легкий доступ к автомагистрали A-70 и примерно в 25 минутах от международного аэропорта Аликанте.
Эта информация может подвеграться изменениям и не является частью будущего контракта. Предложение может быть изменено или отозвано без предварительного уведомления. Расходы на покупку не включены в цену обьекта