Alicante (Costa Blanca) - La Romana Batistes
Ссылка: N7699
Вилла Новая сборка

Детали

  • 130m2
  • 14.569m2
  • 3
  • 2
  •  

Характеристики

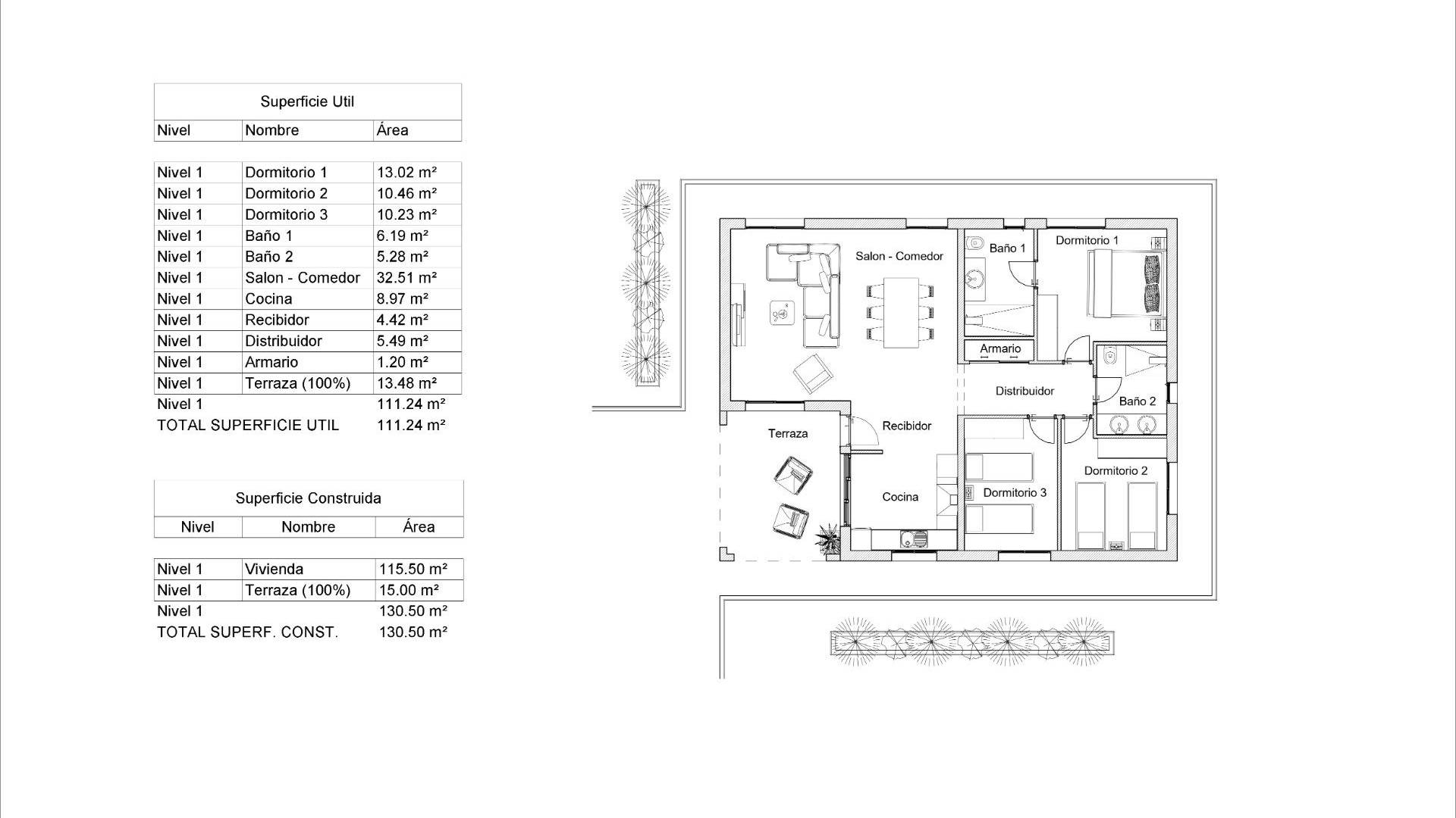
icon Спальни: 3
icon В ванных комнатах: 2
icon построен: 130m2
icon Участок: 14.569m2
icon Бассейн: Да
icon Private Pool
icon Gated
icon Near Schools
icon Number of Parking Spaces: 1
icon Air Conditioning: Pre-Installed
icon Garden
icon Double Bedrooms: 3
icon Useable Build Space: 110 Msq.
icon Terrace: 15 Msq.
icon Parking - Space
icon Location: Rural, Mountain
icon Beach: 40000 Meters
Класс энергопотребления
Класс энергопотребления:
B

Описание

Новые виллы в Ла-Романа. Новые виллы с несколькими моделями на выбор: 2 или 3 спальни, 1 или 2 этажа, построенные с использованием плит или каркаса: точная цена будет рассчитана в зависимости от модели и выбранного участка. Все виллы построены на участках площадью более 10 000 м2, из которых 2500 м2 будут огорожены. Виллы имеют американскую кухню с гостиной, встроенные шкафы, частный бассейн, веранду и открытое парковочное место. Есть несколько участков на выбор, для расчета цены был взят участок стоимостью 73 000 евро (при выборе другого участка будет доплачена разница в цене). Строительство осуществляется на условиях самофинансирования, сдача в эксплуатацию через 12 месяцев с момента получения лицензии. Если вы ищете тихое место, недалеко от типичных испанских деревень, вдали от массового туризма, в окружении гор, с очень большим участком и в 30 минутах от моря, то это ваш дом. Ла-Романа - типичная испанская деревня со всеми удобствами для повседневной жизни, окруженная горами и несколькими природными заповедниками, где можно заняться пешим туризмом или кататься на горных велосипедах. Расположена в 30 минутах езды от аэропорта Аликанте.

Место нахождения

экономика

Эта информация может подвеграться изменениям и не является частью будущего контракта. Предложение может быть изменено или отозвано без предварительного уведомления. Расходы на покупку не включены в цену обьекта

Расчет ипотеки

Обмен валют

  • Фунтов стерлингов: 326.630 GBP
  • Русский рубль: 326.630 RUB
  • Швейцарский франк: 346.097 CHF
  • Китайский юань: 3.023.584 CNY
  • Доллар: 444.566 USD
  • шведская крона: 4.098.276 SEK
  • Норвежская корона: 4.090.527 NOK

Запрос информации

Responsable del tratamiento: Costa Weflen Group SL, Finalidad del tratamiento: Gestión y control de los servicios ofrecidos a través de la página Web de Servicios inmobiliarios, Envío de información a traves de newsletter y otros, Legitimación: Por consentimiento, Destinatarios: No se cederan los datos, salvo para elaborar contabilidad, Derechos de las personas interesadas: Acceder, rectificar y suprimir los datos, solicitar la portabilidad de los mismos, oponerse altratamiento y solicitar la limitación de éste, Procedencia de los datos: El Propio interesado, Información Adicional: Puede consultarse la información adicional y detallada sobre protección de datos Aquí.

Контакт

Hilde Jeanette Weflen
Руководитель компании Телефон +34 639 689 651 Эл. почта hilde@cweflengroup.com
Контакт WhatsApp
WhatsApp