
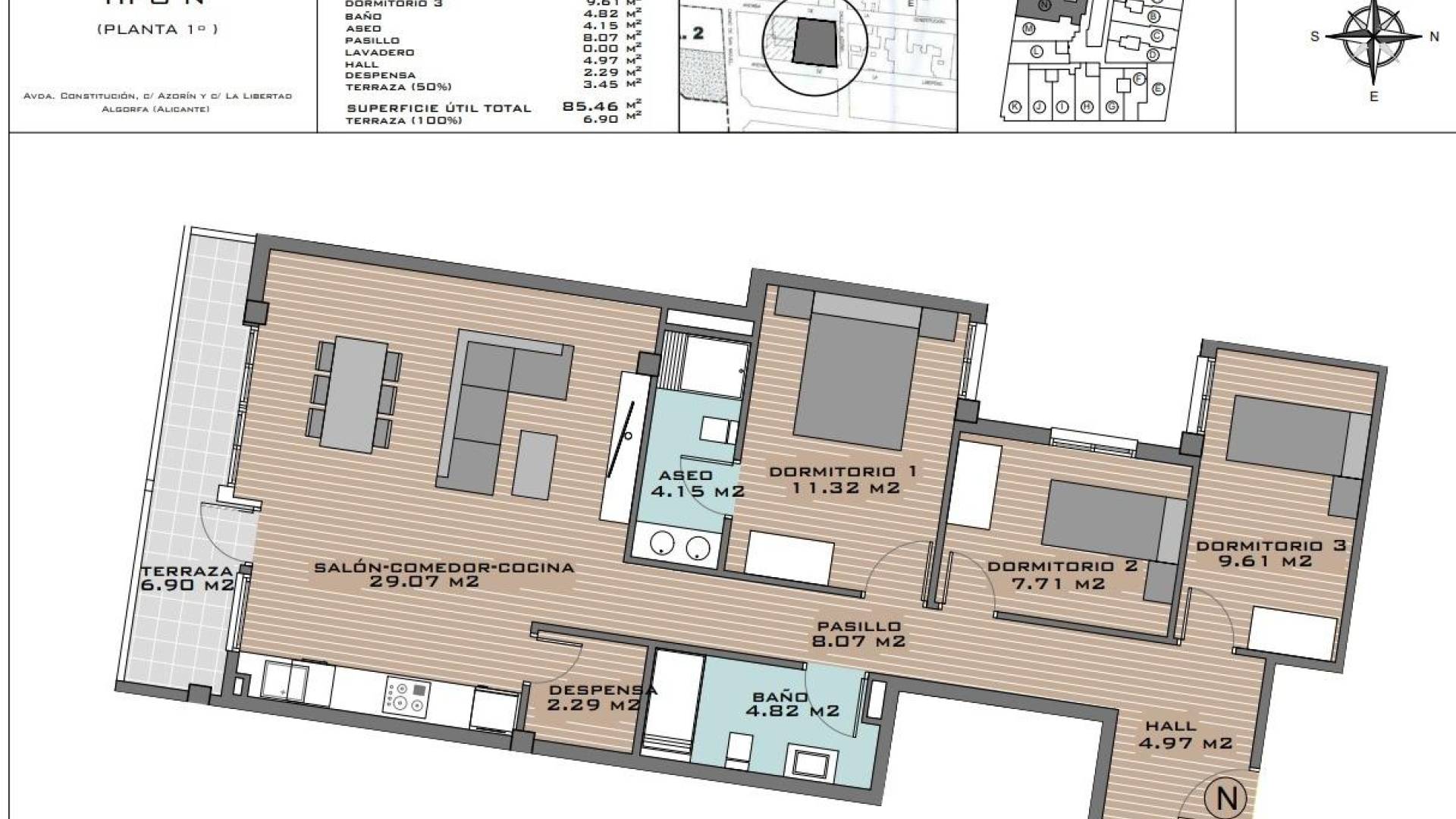
НОВЫЙ ЖИЛОЙ КОМПЛЕКС В АЛЬГОРФЕ Новый жилой комплекс из 41 стильной квартиры и пентхауса в Алгорфе. Комплекс состоит из 1, 2 и 3-спальных апартаментов с 1 или 2 ванными комнатами, кухней открытого плана с гостиной, встроенными шкафами. Современные пентхаусы имеют частный солярий. Предварительная установка кондиционеров горячего/холодного воздуха, подача через воздуховоды и возврат через решетки в подвесном потолке. Кухня и фронт из компактного ПВХ, оборудованы нижними и верхними шкафами, фасады ящиков и двери из комбинации белого ламината и деревянного ламината. Энергетическая маркировка A. Доступ к общему бассейну для релаксации и отдыха. Тренажерный зал на территории комплекса для любителей фитнеса. Расположенная в самом сердце традиционной деревни, Алгорфа предлагает идеальное сочетание испанского шарма и современных удобств, что делает ее идеальным местом для отдыха как для туристов, так и для местных жителей. Жилой комплекс расположен в нескольких минутах ходьбы от центра города, школ и поля для гольфа La finca. Всего в 15 минутах езды от прекрасных пляжей и больниц. До аэропорта - 35 минут езды.
Эта информация может подвеграться изменениям и не является частью будущего контракта. Предложение может быть изменено или отозвано без предварительного уведомления. Расходы на покупку не включены в цену обьекта