
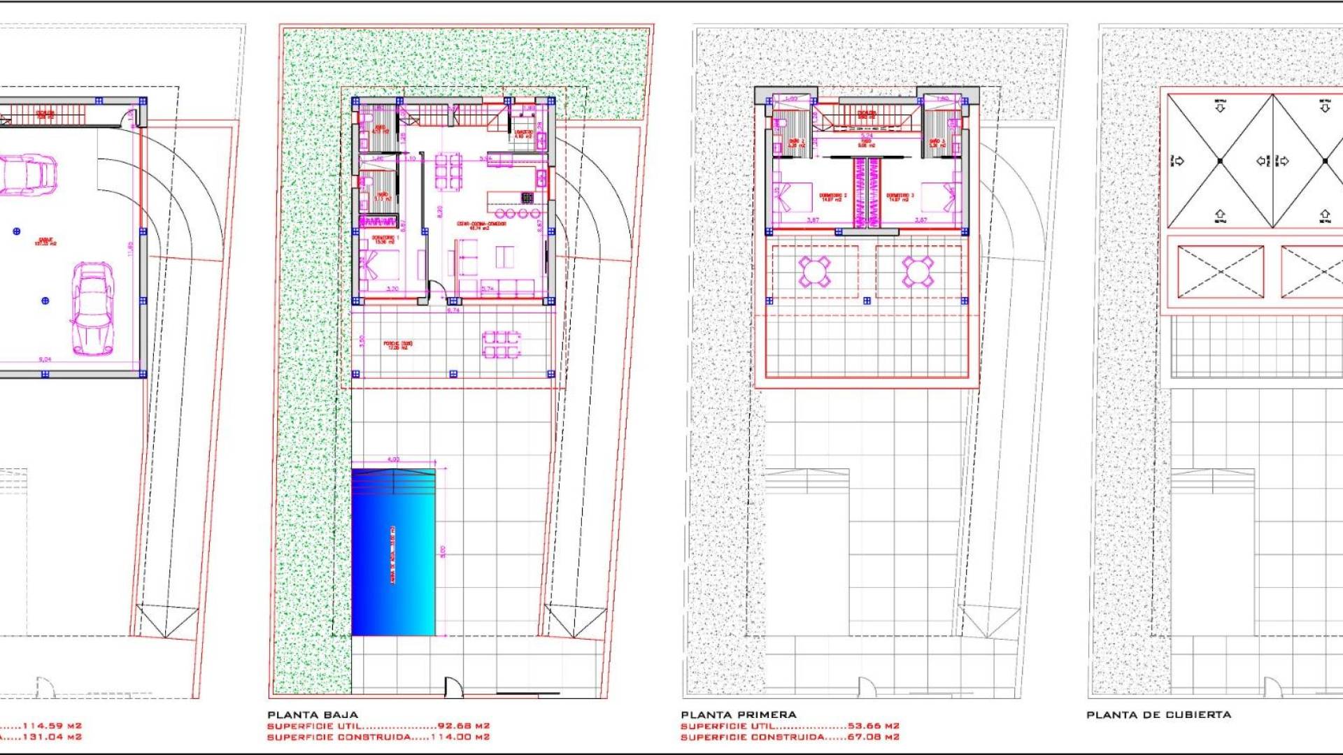
НОВАЯ ВИЛЛА В РОХАЛЕСЕ Новая современная вилла в Рохалесе вблизи всех удобств и услуг. Дом спроектирован таким образом, чтобы максимально использовать открытые пространства вокруг виллы, сочетая стиль и практичность. Дом включает в себя просторный подвал с 2 парковочными местами. Внизу находится большая гостиная, соединенная с кухней открытого плана, комната с выходом на улицу, 2 ванные комнаты и прачечная. Наверху вы найдете 2 спальни с собственными ванными комнатами, а также большую террасу. Вилла предлагает много открытого пространства для жизни, хорошо соединяясь с садом и бассейном, с различными местами для отдыха, такими как крытая терраса площадью 35 м2 на первом этаже. Здесь также есть бассейн 8x4 метра. Этот дом построен из первоклассных материалов и будет выглядеть великолепно. Вилла расположена всего в 10 минутах от поля для гольфа La Marquesa в тихом районе и на побережье. Рохалес - традиционно сельскохозяйственный город, который стал одним из любимых мест отдыха во внутренних районах Вега-Баха благодаря своему стратегическому расположению рядом с шоссе N-332 и AP-7. Благодаря отличной транспортной доступности вы сможете добраться до аэропорта Аликанте за 20 минут и за 15 минут насладиться пляжами Гуардамара, Ла-Маты или Торревьехи. Рохалес предлагает богатое и разнообразное гастрономическое и развлекательное предложение, а также престижное поле для гольфа La Marquesa Golf. Рохалес - это прекрасная деревня со всеми услугами, такими как супермаркеты, аптеки, банки, рестораны и природный парк, расположенный совсем рядом с виллами. La Marquesa Golf - одно из самых исторических полей на Коста-Бланке, с 18 лунками и одной такой же особенной, как 17-я лунка в Sawgrass. Традиции, качество и опыт объединяются, чтобы предложить гольфистам, которые посещают нас, уникальный опыт, полный истории.
Эта информация может подвеграться изменениям и не является частью будущего контракта. Предложение может быть изменено или отозвано без предварительного уведомления. Расходы на покупку не включены в цену обьекта