
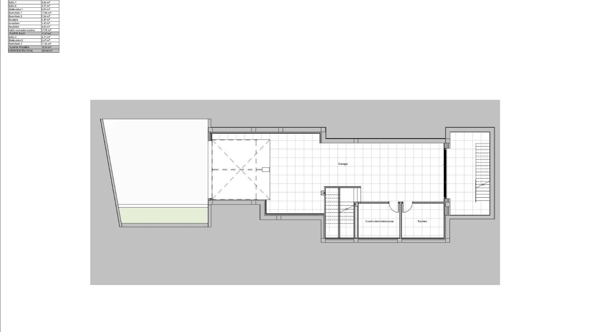
Новая вилла в Las Colinas Golf & Country Club, Ориуэла Эксклюзивное расположение на юге Коста-Бланки Эта потрясающая новая вилла расположена в Las Colinas Golf & Country Club, одном из самых престижных курортов в Ориуэла-Коста. Расположенный в пышной долине площадью 330 гектаров, окруженной средиземноморским лесом и зелеными насаждениями, этот комплекс предлагает эксклюзивный образ жизни с максимальной конфиденциальностью. Курорт находится всего в 40 км от аэропорта Аликанте и в 60 км от аэропорта Мурсия-Корвера, а до прекрасных средиземноморских пляжей можно доехать за несколько минут. Современная вилла с просторной планировкой Эта вилла, спроектированная с учетом элегантности и комфорта, расположена на двух этажах плюс подвал. Она имеет 3 спальни, каждая с ванной комнатой, и гостевой туалет. На первом этаже находится открытая кухня, соединенная с гостиной, две спальни и выход на большую террасу с частным бассейном площадью 60 м2 и ландшафтным садом. На втором этаже находится отдельная спальня, а в подвале — просторный гараж на две машины с естественным освещением и вентиляцией через английский патио. Высочайшее качество и технологии Эта вилла, построенная в соответствии с самыми высокими стандартами, включает в себя: Полностью установленную систему кондиционирования воздуха Отопление и горячее водоснабжение через аэротермальную систему Внутреннее светодиодное освещение Полностью оборудованные ванные комнаты с мебелью и душевыми перегородками Кухня, оборудованная премиум-техникой Система домашней автоматизации для максимального комфорта и эффективности Курортный образ жизни и услуги Las Colinas Golf & Country Club известен во всем мире благодаря своему 18-луночному полю для гольфа, которое считается одним из лучших в Испании. Курорт предлагает широкий спектр услуг для жителей, включая теннисные корты и корты для паддл-тенниса, современный тренажерный зал, оздоровительные и массажные процедуры, рестораны для гурманов и мини-маркет с ежедневной поставкой свежего хлеба. Благодаря более чем 200 000 м2 средиземноморских ландшафтов, жители могут наслаждаться живописными прогулками среди местной флоры, а также полей апельсиновых и лимонных рощ. Сочетание природы, эксклюзивности и первоклассных услуг делает Las Colinas поистине уникальным местом для жизни. Ваш эксклюзивный дом в Ориуэла-Коста ждет вас Эта вилла в Las Colinas Golf — это больше, чем просто недвижимость; это стиль жизни, сочетающий в себе роскошь, уединение и природу. Свяжитесь с нами сегодня, чтобы запланировать посещение и обеспечить себе новый дом в одном из самых престижных курортов южной Коста-Бланки.
Эта информация может подвеграться изменениям и не является частью будущего контракта. Предложение может быть изменено или отозвано без предварительного уведомления. Расходы на покупку не включены в цену обьекта