
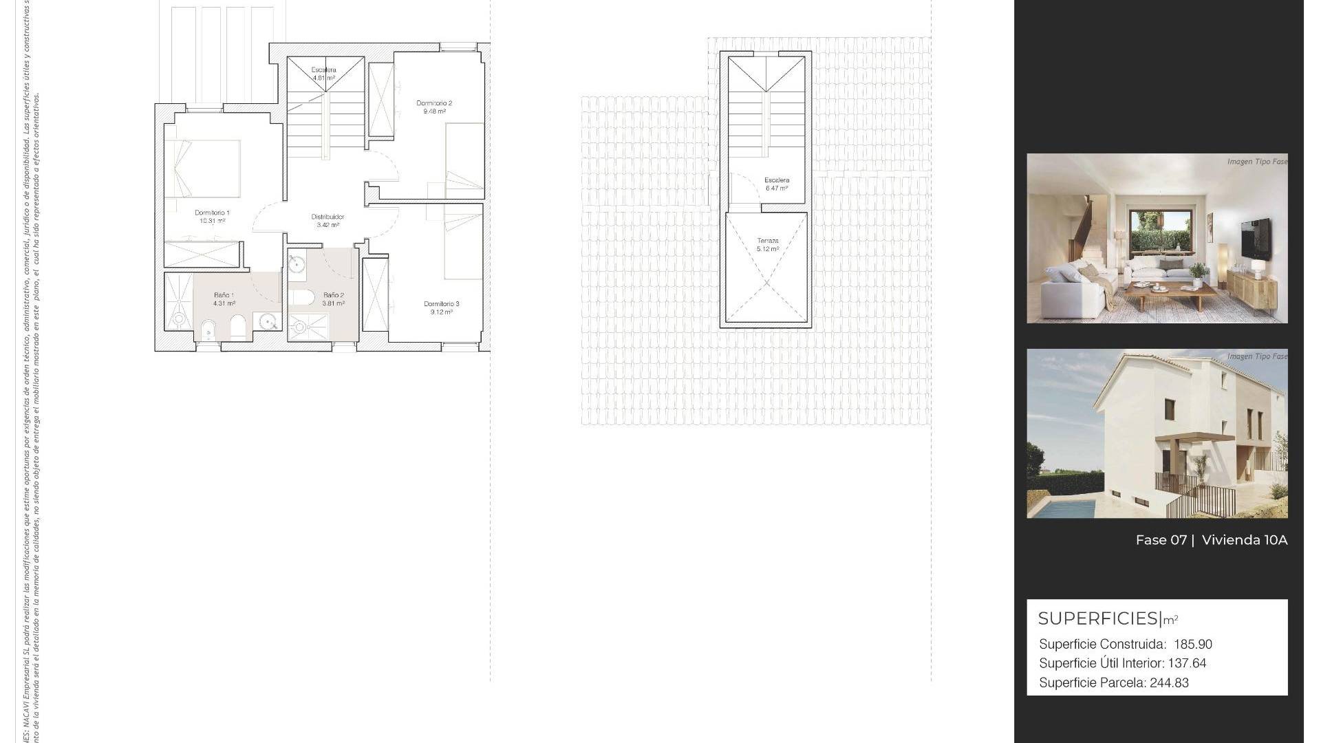
Эксклюзивные новые виллы с частным бассейном и гаражом в Ла-Нусия Откройте для себя этот элитный жилой комплекс из 14 новых вилл в средиземноморском стиле, сочетающих в себе вечную архитектуру и современный интерьер. Расположенные недалеко от главного торгового центра Ла-Нусия, эти дома предлагают идеальное сочетание спокойствия, изысканности и удобства. Выгодное расположение в Ла-Нусия Ла-Нусия — популярный городок в регионе Марина-Байша в провинции Аликанте, известный своим спокойным окружением, отличной инфраструктурой и близостью к оживленному городу Бенидорм. Жители наслаждаются расслабленным средиземноморским образом жизни с международными школами, первоклассными спортивными сооружениями, лучшими больницами, изысканными ресторанами, полями для гольфа и прекрасными пляжами поблизости. Городок находится всего в 8 км от Бенидорма, в 6 км от пляжей Альтеа и в 51 км к северу от Аликанте. Современный комфорт и премиальные удобства Каждая вилла расположена на частном участке и включает в себя подвал с гаражом, прачечную и кладовую. На первом этаже есть несколько террас, частный бассейн, гостиная-столовая открытой планировки, соединенная с кухней, и гостевой туалет. На втором этаже находятся 3 спальни и 2 ванные комнаты, включая главную спальню с ванной комнатой. Солярий на крыше предлагает панорамный вид. Высококачественные характеристики включают: Алюминиевые окна с тепловым мостом Входная дверь с системой безопасности Гаражная дверь с электроприводом Аэротермальное отопление и охлаждение с системой Airzone для индивидуального контроля в каждой комнате Горячее водоснабжение с помощью аэротермальной системы Спокойный и элегантный образ жизни В Ла-Нусия роскошь определяется балансом — временем, комфортом и благополучием. От завтрака на террасе до послеобеденного отдыха на пляже или поле для гольфа и вечеров в изысканных ресторанах — это место предлагает привилегированный образ жизни в самом сердце Коста-Бланки. Расстояния до основных достопримечательностей: Торговый центр: 1 км Пляж: 6 км Бенидорм: 8 км Плайя-дель-Альбир: 15 км Терра Митика: 5 минут Международная школа Elians: 5 минут Аэропорт Аликанте: 40 км Ваш дом мечты на Средиземноморье Эти виллы в Ла-Нусия идеально подходят для тех, кто ищет постоянное место жительства, второй дом или выгодную инвестиционную возможность. Благодаря своему стратегическому расположению, высококачественной отделке и современному дизайну, они представляют собой исключительную возможность на побережье Коста-Бланка. Свяжитесь с нами сегодня, чтобы договориться о просмотре и обеспечить себе место в этом эксклюзивном комплексе.
Эта информация может подвеграться изменениям и не является частью будущего контракта. Предложение может быть изменено или отозвано без предварительного уведомления. Расходы на покупку не включены в цену обьекта