
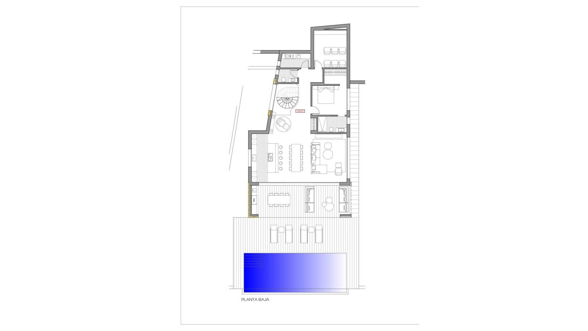
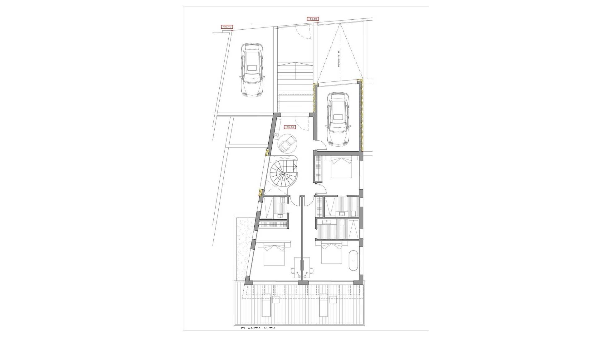
Роскошная новая вилла с видом на море в Морайре Отличное расположение рядом с пляжем и центром города Эта роскошная вилла в Морайре идеально расположена всего в 1,8 км от пляжа и оживленного центра города, предлагая идеальный баланс уединения и удобства. Морайра, очаровательный прибрежный городок на побережье Коста-Бланка, известен своими прекрасными песчаными пляжами, кристально чистой водой и средиземноморским образом жизни. В городе есть широкий выбор ресторанов, баров, супермаркетов и оживленная пристань для яхт. Международный аэропорт Аликанте находится примерно в 90 км (1 час 15 минут) по автомагистрали A7, а аэропорт Валенсии расположен на таком же расстоянии к северу, что делает доступ простым и удобным. Современный дизайн с просторными интерьерами Построенная на участке площадью 912 м², эта вилла имеет общую площадь 350 м², распределенную на два этажа. Дом включает 4 спальни с ванными комнатами и гостевой туалет, все отделанные материалами высшего качества. На первом этаже находится светлая открытая гостиная и столовая, плавно переходящая в современную кухню с центральным островом. Отсюда большие раздвижные двери ведут прямо на террасу, летнюю кухню и частный бассейн. Спальня с ванной комнатой, гостевой туалет, прачечная и универсальное многофункциональное помещение дополняют этот уровень. Элегантный верхний этаж с видом на море Дизайнерская лестница ведет на верхний этаж, где расположены три дополнительные спальни с ванными комнатами, а также просторный вестибюль и частная терраса с захватывающим видом на море. Недвижимость также предлагает гараж, частную парковку, полы с подогревом, кондиционер, двойные стеклопакеты и усиленную входную дверь, что обеспечивает максимальный комфорт и спокойствие. Средиземноморский оазис на открытом воздухе Экстерьер был спроектирован как уединенное место для отдыха, сочетающее в себе ландшафтные сады, крытые и открытые террасы, частный бассейн с душем на открытом воздухе и зону для барбекю, идеально подходящую для развлечений. Юго-восточная ориентация гарантирует обилие естественного света в течение всего дня, благодаря чему каждый уголок виллы выглядит светлым и уютным. Жизнь в Морайре Морайра славится своей непринужденной, но в то же время космополитичной атмосферой. Семьям понравится безопасный песчаный пляж, а любители природы смогут насладиться потрясающими прогулками по побережью с видом на скалу Пеньон-де-Ифач в Кальпе, расположенную всего в 12 км. Любители гольфа также найдут отличные поля для гольфа в радиусе 10-15 км. Вилла вашей мечты ждет вас Насладитесь роскошной жизнью в Морайре с этой эксклюзивной виллой. Свяжитесь с нами сегодня, чтобы запланировать просмотр и сделать этот средиземноморский рай своим новым домом. 489
Эта информация может подвеграться изменениям и не является частью будущего контракта. Предложение может быть изменено или отозвано без предварительного уведомления. Расходы на покупку не включены в цену обьекта