
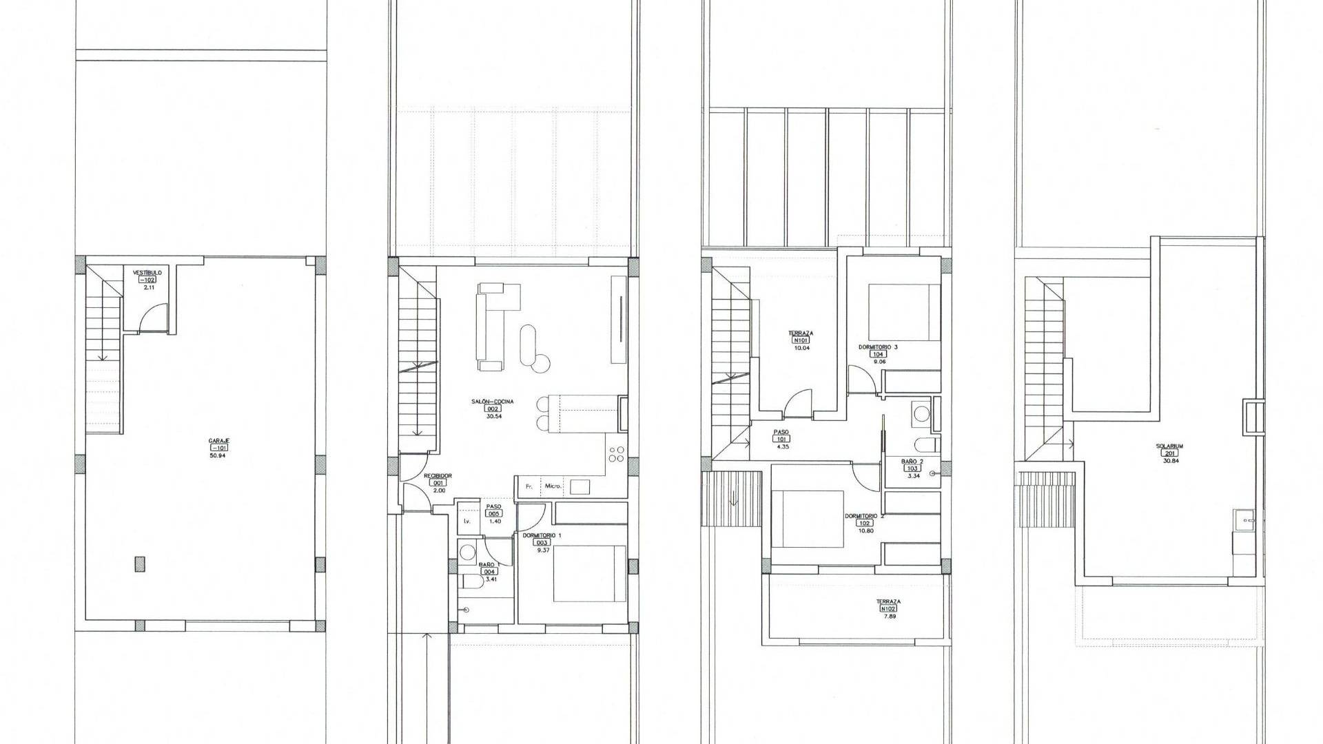
Новые таунхаусы на первой линии гольф-клуба La Serena в Лос-Алькасарес Премиальное расположение рядом с гольф-полем и морем Откройте для себя эксклюзивный жилой комплекс из 31 нового таунхауса, расположенный на первой линии гольф-клуба La Serena в Лос-Алькасарес, всего в 600 м от Мар-Менор. Расположенный в самом сердце Коста-Калида, этот привилегированный комплекс сочетает в себе гольф, пляж и средиземноморский образ жизни. Благодаря близости всех удобств и отличному транспортному сообщению, это идеальное место как для отдыха, так и для круглогодичного проживания. Современные дома с частным бассейном и солярием на крыше Каждый дом отличается стильным современным дизайном и светлыми интерьерами. Дома состоят из трех уровней и солярия на крыше, что обеспечивает максимальный комфорт и уединение: Подвал с частным гаражом на 2 машины и выходом на патио Первый этаж с открытой планировкой гостиной и кухни, выходящей в сад и к частному бассейну, 1 спальня и 1 ванная комната Второй этаж с 2 спальнями, 1 ванной комнатой и 2 террасами Солярий на крыше с летней кухней, идеально подходящий для отдыха и наслаждения панорамными видами Восточная и западная ориентация обеспечивают отличное естественное освещение и возможность проводить время на свежем воздухе в течение всего дня. Высококачественная отделка и комфорт Эти дома построены по самым высоким стандартам и предлагают такие преимущества, как: Частный бассейн Гараж на 2 машины с моторизованной дверью Аэротермальная система горячего водоснабжения Полностью установленная система кондиционирования с воздуховодами Меблированная и оборудованная кухня Полностью оборудованные ванные комнаты с мебелью, зеркалами и душевыми перегородками Безопасная входная дверь Живите между морем и полем для гольфа Расположенный среди пышных средиземноморских ландшафтов, этот эксклюзивный комплекс предлагает спокойную жизнь рядом с полем для гольфа Serena, известным 18-луночным полем, окруженным природой и тихими озерами. Теплые мелкие воды Мар Менор идеально подходят для купания и занятий водными видами спорта, такими как парусный спорт, паддл-серфинг и каякинг, в течение всего года. Ключевые расстояния: Пляж (Мар Менор): 600 м Поле для гольфа La Serena: рядом с комплексом Центр Лос-Алькасарес: 2 км Картахена: 22 км Город Мурсия: 40 км Аэропорт Мурсии: 30 км Аэропорт Аликанте: 90 км Обеспечьте себе средиземноморский образ жизни Независимо от того, ищете ли вы постоянное место жительства, дом для отдыха или выгодную инвестицию, эти дома предлагают роскошь, удобство и превосходный прибрежный образ жизни. Свяжитесь с нами сегодня, чтобы запланировать просмотр и обеспечить себе новый дом в Лос-Алькасаресе.
Эта информация может подвеграться изменениям и не является частью будущего контракта. Предложение может быть изменено или отозвано без предварительного уведомления. Расходы на покупку не включены в цену обьекта