Alicante (Costa Blanca) - Benissa Cala de la Fustera
Ссылка: N9313
Вилла Новая сборка

Детали

  • 342m2
  • 800m2
  • 4
  • 3
  •  

Характеристики

icon Спальни: 4
icon В ванных комнатах: 3
icon построен: 342m2
icon Участок: 800m2
icon Бассейн: Да
icon Private Pool
icon Gym
icon Gated
icon Near Trees
icon Near Schools
icon Near Commercial Center
icon Near Bus Route
icon Location: Coastal, Urbanisation
icon Views: Sea
icon Solarium: Yes
icon Garden
icon Useable Build Space: 290 Msq.
icon Double Bedrooms: 4
icon Number of Parking Spaces: 2
icon Under-Build / Basement
icon Parking - Space
icon Beach: 150 Meters
icon Terrace: 157 Msq.
icon Storage / Trastero
icon Toilet: 1
Класс энергопотребления
Класс энергопотребления:
B

Описание

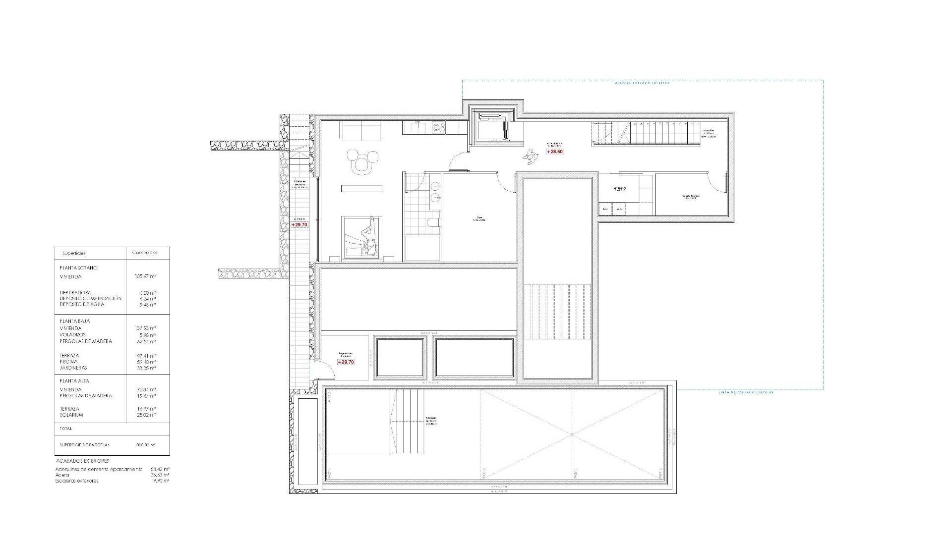
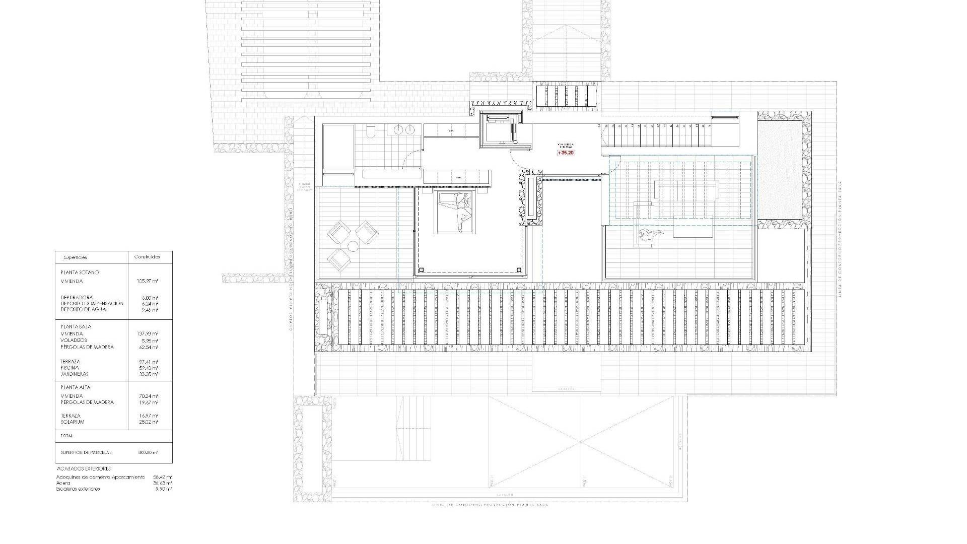
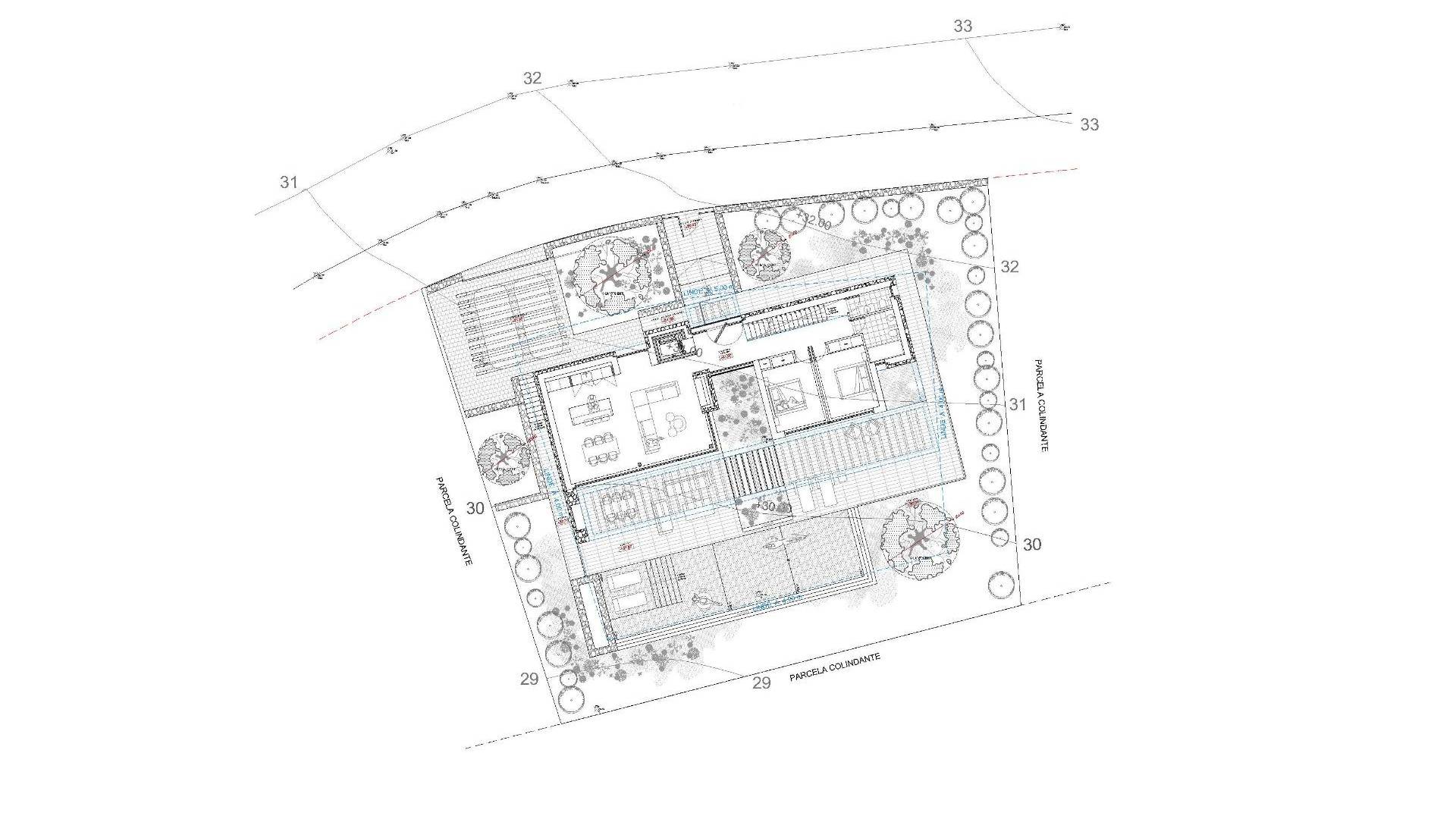
Современная вилла с панорамным видом на море в Ла-Фустера, Бенисса-Коста Эта эксклюзивная вилла новой постройки, спроектированная известным архитектором и построенная местным застройщиком с более чем 20-летним опытом, расположена на участке площадью 800 м² всего в нескольких шагах от пляжа Ла-Фустера. Сочетая в себе средиземноморское тепло и современную элегантность, архитектура виллы объединяет натуральный камень, дерево и мягкие нейтральные тона, гармонично вписываясь в прибрежный ландшафт. Общая площадь виллы составляет 716 м², распределенных на три уровня — подвал, первый этаж и второй этаж — и обеспечивает идеальный баланс между функциональностью, дизайном и комфортом. Подвал Нижний этаж площадью 105,97 м² спроектирован с учетом как практичности, так и досуга. Он включает в себя полностью оборудованный тренажерный зал, прачечную и технические помещения, с возможностью адаптации дополнительных пространств под винный погреб, кинотеатр или многофункциональный зал. На этом уровне также размещены система фильтрации бассейна и резервуары для воды, что обеспечивает эффективное управление всеми техническими установками. Первый этаж Основной уровень площадью 137,93 м² представляет собой светлую открытую планировку, которая отражает суть средиземноморского стиля жизни. Просторная гостиная, столовая и кухня открываются через большие окна от пола до потолка на главную террасу и бассейн-инфинити, обрамляя невероятные панорамные виды на море, которые определяют характер этого дома. Две спальни с двуспальными кроватями, полностью оборудованная ванная комната и гостевой туалет дополняют этот этаж, обеспечивая комфорт и функциональность. Снаружи деревянная пергола затеняет открытую гостиную и обеденную зону, окруженные пышными садами, солнечными террасами и пейзажным бассейном площадью 59,40 м², который визуально сливается с морем. Первый этаж Верхний уровень площадью 70,19 м² отведён под главную спальню — уединённое место с гардеробной, ванной комнатой и большой частной террасой с захватывающим видом на Средиземное море. Вторая спальня или кабинет дополняют этот этаж, который также имеет выход на солярий площадью 25,02 м², идеально подходящий для отдыха под солнцем и наслаждения спокойствием окружающей обстановки. Экстерьер и расположение Расположенная на тихой жилой улице, окруженной современными виллами, эта недвижимость имеет исключительное расположение всего в 3 минутах ходьбы от пляжа Ла Фустера (150 м), бара-ресторана Mandala Beach Bar & Restaurant и основных удобств, таких как супермаркеты и местные услуги. Эта вилла, спроектированная с акцентом на свет, пространство и плавный переход между внутренними и внешними помещениями, воплощает современный средиземноморский стиль жизни — элегантный, расслабленный и в полной гармонии с впечатляющими панорамными видами на море. Приобретите виллу своей мечты в Ла Фустера, Бенисса Коста, и насладитесь средиземноморским стилем жизни с захватывающими видами на море и непревзойденным комфортом.

Место нахождения

экономика

Эта информация может подвеграться изменениям и не является частью будущего контракта. Предложение может быть изменено или отозвано без предварительного уведомления. Расходы на покупку не включены в цену обьекта

Расчет ипотеки

Обмен валют

  • Фунтов стерлингов: 2.462.685 GBP
  • Русский рубль: 2.462.685 RUB
  • Швейцарский франк: 2.609.460 CHF
  • Китайский юань: 22.796.865 CNY
  • Доллар: 3.351.885 USD
  • шведская крона: 30.899.700 SEK
  • Норвежская корона: 30.841.275 NOK

Запрос информации

Responsable del tratamiento: Costa Weflen Group SL, Finalidad del tratamiento: Gestión y control de los servicios ofrecidos a través de la página Web de Servicios inmobiliarios, Envío de información a traves de newsletter y otros, Legitimación: Por consentimiento, Destinatarios: No se cederan los datos, salvo para elaborar contabilidad, Derechos de las personas interesadas: Acceder, rectificar y suprimir los datos, solicitar la portabilidad de los mismos, oponerse altratamiento y solicitar la limitación de éste, Procedencia de los datos: El Propio interesado, Información Adicional: Puede consultarse la información adicional y detallada sobre protección de datos Aquí.

Контакт

Hilde Jeanette Weflen
Руководитель компании Телефон +34 639 689 651 Эл. почта hilde@cweflengroup.com
Контакт WhatsApp
WhatsApp