
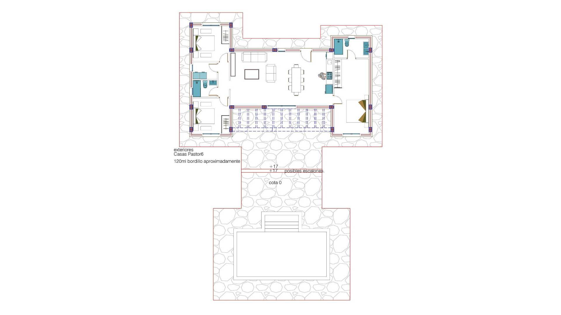
Новые виллы в Пиносо на загородных участках Вы можете выбрать виллы с традиционными испанскими элементами или суперсовременной, светлой и чистой отделкой. Есть несколько вариантов размеров на выбор: от 3 до 6 спален и 1 или 2 этажа. На выбор предлагаются различные законные участки (сельские, площадью не менее 10 000 м2), некоторые из них находятся недалеко от города, некоторые полностью частные, а самые популярные находятся в 5-10 минутах езды от города. У нас есть участки на любой вкус, все с потрясающими видами, и все с подключением к водопроводу + электричеством, включенным в цену, и высокоскоростным интернетом. В указанную цену входит 30 000 евро за участок, если выбранный участок стоит дороже, разница оплачивается дополнительно. От крупнейшего и лучшего застройщика в этом районе, мы используем материалы высшего качества для идеальной отделки. Все дома включают в себя террасу из штампованного бетона 2 м вокруг бассейна (цвет и узор на выбор), 1 м вокруг дома, закрытый вход, ограждение площадью 3000 м2, предварительная установка канального кондиционера, стандартная кухня, бронированная дверь, немецкие окна с поворотно-откидной системой (или раздвижные, по желанию), встроенный камин (в традиционном стиле), предварительная установка телевидения и интернета, гравийная дорожка и несколько метров вокруг дома, септик. Ванные комнаты включают душевую колонну, душевой поддон или ванну, туалетную мебель (на выбор несколько цветов) с раковинами, смесителями и зеркалами, а также большой выбор настенной плитки. Широкий выбор керамической плитки для пола, разных цветов, с эффектом дерева и т. д. Кухни включают шкафы со стандартными дверцами и ручками, раковину и смеситель из нержавеющей стали, предварительную установку для духовки, посудомоечной машины, вытяжки. На выбор предлагается несколько гранитных столешниц. Бытовая техника не входит в стоимость. Мраморная лестница (кремового, белого или серого цвета) и перила включены в стоимость, а также перила для переднего крыльца. Вы можете персонализировать дом по своему вкусу, большинство внутренних изменений бесплатны, вы можете выбрать отделку плитки, кухонные столешницы, мрамор для лестниц или полок и т. д. Дома можно расширить, и мы даже можем построить ваш собственный проект. Вы можете заказать различные дополнительные опции, такие как более большой бассейн, индивидуальный или двойной гараж, гостевой дом и т. д., за дополнительную плату. Город Пиносо находится примерно в 45 минутах езды от Аликанте и белых песчаных пляжей Коста-Бланки, недалеко от границы Мурсии и Аликанте. Население города составляет чуть менее 8000 человек. Пиносо, также известный как Эль-Пинос, получил свое название благодаря соснам, покрывающим горные хребты этого района. Пиносо предлагает испанский сельский образ жизни, без светофоров, почти без движения, практически единственные пробки вызваны тракторами, которые везут виноград на винодельню. Поля засажены виноградниками, миндальными и оливковыми деревьями. В феврале поля покрываются розовыми цветами миндальных деревьев. В Пиносо есть много баров, ресторанов и магазинов, новый круглосуточный медицинский центр, стоматологи, две начальные школы и одна средняя школа, театр. Здесь есть отличный спортивный центр с открытыми бассейнами, теннисными кортами, футбольными полями и тренажерным залом, библиотека и многие другие удобства, в том числе красивая зона для пикника среди сосен с барбекю, зонами отдыха и водопроводом.
Эта информация может подвеграться изменениям и не является частью будущего контракта. Предложение может быть изменено или отозвано без предварительного уведомления. Расходы на покупку не включены в цену обьекта