Alicante (Costa Blanca) - Torrevieja Playa de El Cura
Ссылка: N9381
Апартаменты Новая сборка

Детали

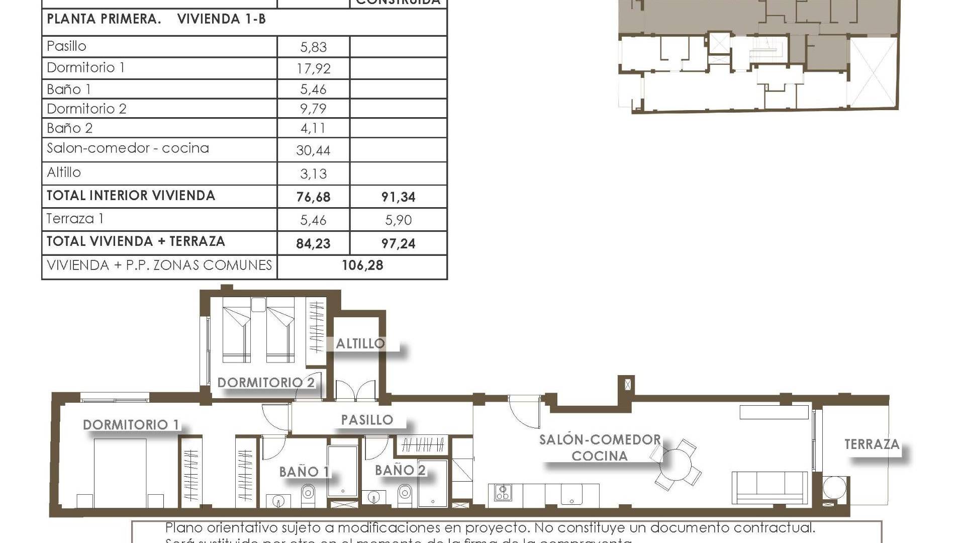
  • 91m2
  • 2
  • 2
  •  

Характеристики

icon Спальни: 2
icon В ванных комнатах: 2
icon построен: 91m2
icon Бассейн: Да
icon Elevator/Lift
icon Communal Pool
icon Gated
icon Near Schools
icon Near Commercial Center
icon Near Bus Route
icon Double Bedrooms: 2
icon Air Conditioning: Pre-Installed
icon Space
icon Near Childrens Parks
icon Useable Build Space: 76 Msq.
icon Location: Coastal
icon Beach: 150 Meters
icon Terrace: 5 Msq.
Класс энергопотребления
Класс энергопотребления:
B

Описание

Современные новые апартаменты в центре Торревьехи Выгодное расположение всего в 150 м от моря Этот исключительный новый комплекс расположен в самом центре Торревьехи, всего в 150 м от природных бассейнов и набережной, и всего в 500 м от Плайя-дель-Кура. В окружении широкого спектра услуг, включая магазины, супермаркеты, парки, кафе и рестораны, этот район предлагает все необходимое в нескольких минутах ходьбы. Сочетание городских удобств и прибрежной тишины делает его одним из самых привлекательных жилых районов города. Современные апартаменты с 1 и 2 спальнями Комплекс предлагает современные апартаменты с 1 или 2 спальнями и 1 или 2 ванными комнатами, включая два эксклюзивных пентхауса с частным солярием, барбекю и частным бассейном. Все дома спроектированы с открытой планировкой, которая максимально использует естественное освещение, и включают просторные террасы и стильные кухни в американском стиле. Каждая квартира включает в себя полностью оборудованную кухню с бытовой техникой, полностью оборудованные ванные комнаты с мебелью, душевыми перегородками и подогревом пола, а также внутреннее освещение. Также предусмотрена предварительная установка канального кондиционирования, обеспечивающего комфорт в течение всего года. Привлекательные общие зоны для отдыха Жители могут пользоваться отличными общими удобствами, предназначенными для благополучия и досуга. На первом этаже находится освежающий общий бассейн и расслабляющая сауна. На террасе на крыше есть общий солярий, идеально подходящий для принятия солнечных ванн и наслаждения средиземноморской атмосферой. Наслаждайтесь уникальной прибрежной и природной средой Торревьеха славится своим мягким средиземноморским климатом со средней годовой температурой 20 ºC, идеально подходящим для проживания круглый год. В городе находятся знаменитые соленые озера и охраняемый природный парк Ла-Мата и Торревьеха, расположенный всего в 4 км от комплекса. С его яркими розовыми и зелеными лагунами, живописными пешеходными маршрутами и разнообразной дикой природой, он обеспечивает здоровую и вдохновляющую природную среду. Расстояния до основных достопримечательностей Порт-депортиво-де-Торревьеха 1 км Природный парк Ла-Мата 4 км Гольф-клуб Вильямартин 8 км Аэропорт Аликанте 45 км Аэропорт Мурсия 60 км Живите по-средиземноморски Приобретите современный дом в одном из самых популярных прибрежных городов Коста-Бланки. Свяжитесь с нами сегодня, чтобы запланировать посещение и забронировать место в этом выдающемся новом комплексе.

Место нахождения

экономика

Эта информация может подвеграться изменениям и не является частью будущего контракта. Предложение может быть изменено или отозвано без предварительного уведомления. Расходы на покупку не включены в цену обьекта

Расчет ипотеки

Обмен валют

  • Фунтов стерлингов: 250.589 GBP
  • Русский рубль: 250.589 RUB
  • Швейцарский франк: 265.524 CHF
  • Китайский юань: 2.319.681 CNY
  • Доллар: 341.069 USD
  • шведская крона: 3.144.180 SEK
  • Норвежская корона: 3.138.235 NOK

Запрос информации

Responsable del tratamiento: Costa Weflen Group SL, Finalidad del tratamiento: Gestión y control de los servicios ofrecidos a través de la página Web de Servicios inmobiliarios, Envío de información a traves de newsletter y otros, Legitimación: Por consentimiento, Destinatarios: No se cederan los datos, salvo para elaborar contabilidad, Derechos de las personas interesadas: Acceder, rectificar y suprimir los datos, solicitar la portabilidad de los mismos, oponerse altratamiento y solicitar la limitación de éste, Procedencia de los datos: El Propio interesado, Información Adicional: Puede consultarse la información adicional y detallada sobre protección de datos Aquí.

Контакт

Hilde Jeanette Weflen
Руководитель компании Телефон +34 639 689 651 Эл. почта hilde@cweflengroup.com
Контакт WhatsApp
WhatsApp