
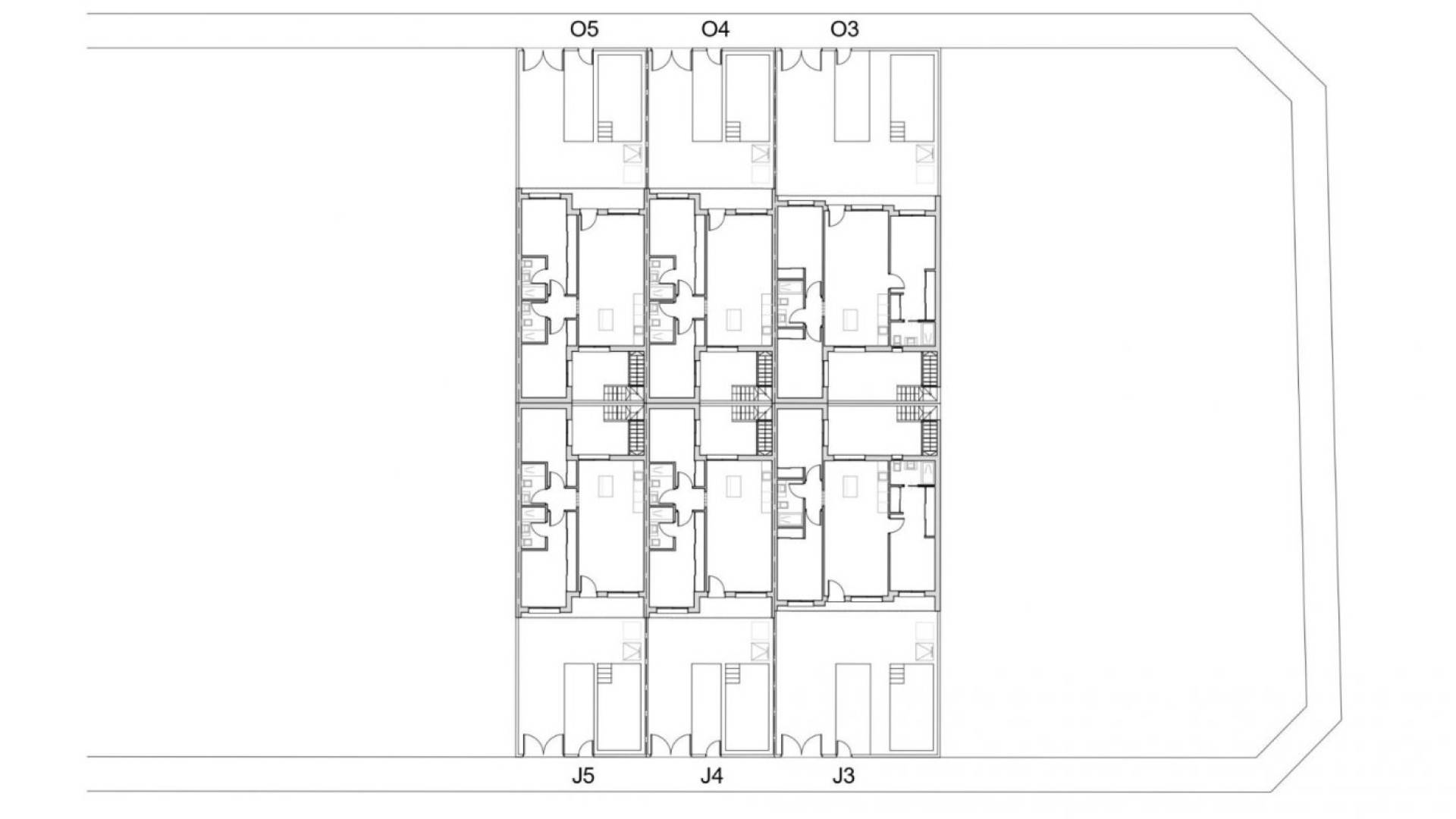
НОВЫЕ ТАУНХАУСЫ В САН-ХАВЬЕРЕ Новый роскошный комплекс из 24 одноуровневых или двухэтажных вилл с частным бассейном, террасой и солярием с летней кухней, что позволит вам наслаждаться солнечными часами каждый день в году. Каждая вилла имеет 2 или 3 спальни и 2 оборудованные ванные комнаты на одном уровне или 3 спальни и 3 оборудованные ванные комнаты на двух уровнях. Дизайн выполнен в современном стиле и имеет открытую планировку, включающую полностью оборудованную кухню и гостиную-столовую. Комплекс расположен в Сан-Хавьере (Мурсия), недалеко от пляжа, в окружении услуг, парков, спортивных сооружений и нескольких гольф-полей. Недвижимость будет соответствовать самым высоким стандартам и будет оборудована: Частный бассейн с душем. Кухня полностью меблирована и оборудована духовкой, микроволновой печью, холодильником, встроенной посудомоечной машиной, плитой и вытяжкой. Освещение: внутри дома (столовая, кухня, коридоры и ванные комнаты), а также на открытых площадках. Встроенные шкафы с выдвижными ящиками. Полностью оборудованные ванные комнаты с туалетом, тумбой, зеркалом и душем с экраном. Предварительная установка для канального кондиционера. Солярий с летней кухней. Парковочное место на участке. Сан Хавьер находится рядом со всеми удобствами, с легким доступом к пляжу, водным видам спорта, магазинам и транспортной сети. Здесь вы сможете насладиться всеми удобствами, которые может предложить Сан Хавьер, такими как местные магазины, бары и рестораны, а также недалеко от торговых центров, аэропорта Мурсии и всех красивых мест, которые можно найти вдоль Мар Менор. Аэропорт Корвера/Мурсия находится в 30 минутах езды, а аэропорт Аликанте - в 45 минутах езды.
Эта информация может подвеграться изменениям и не является частью будущего контракта. Предложение может быть изменено или отозвано без предварительного уведомления. Расходы на покупку не включены в цену обьекта