Alicante (Costa Blanca) - Finestrat Golf Bahia
Ссылка: N9579
Вилла Новая сборка

Детали

  • 255m2
  • 501m2
  • 4
  • 4
  •  

Характеристики

icon Спальни: 4
icon В ванных комнатах: 4
icon построен: 255m2
icon Участок: 501m2
icon Бассейн: Да
icon Private Pool
icon Laundry room
icon Gated
icon Near Schools
icon Near Commercial Center
icon Near Bus Route
icon Location: Coastal, Urbanisation
icon Number of Parking Spaces: 1
icon Near Golf / Golf Resort Property
icon Solarium: Yes
icon Garden
icon Double Bedrooms: 4
icon Under-Build / Basement
icon Parking - Space
icon Beach: 3500 Meters
icon Useable Build Space: 147 Msq.
icon Patio
icon Terrace: 81 Msq.
icon Storage / Trastero
icon Toilet: 1
Класс энергопотребления
Класс энергопотребления:
A

Описание

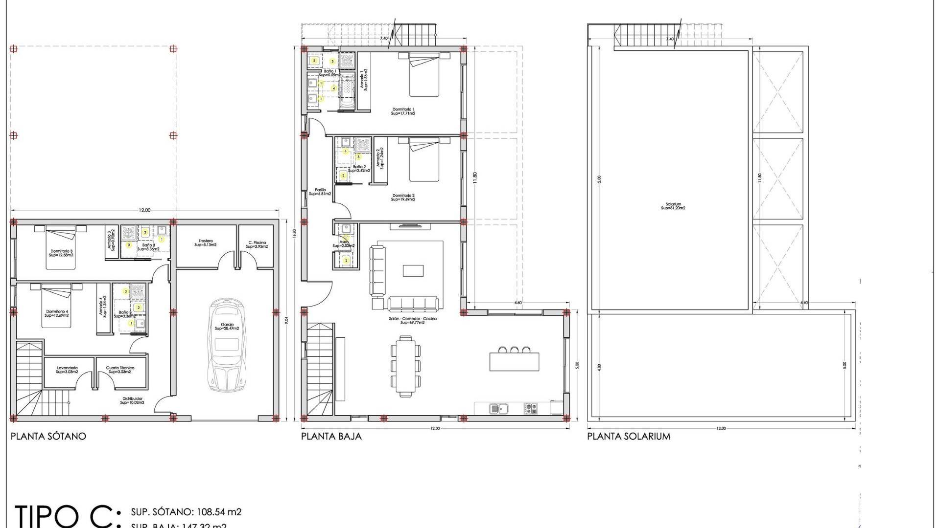
Роскошные новые виллы в Финестрате недалеко от Бенидорма Эксклюзивная коллекция экологичных отдельно стоящих вилл Этот престижный комплекс состоит из 36 отдельно стоящих вилл в популярном районе Баия Гольф в Финестрате, всего в 3,5 км от побережья Средиземного моря. Созданные для сочетания роскоши, комфорта и экологичности, эти современные дома предлагают исключительный образ жизни на побережье Коста-Бланка, в окружении природы, но в то же время недалеко от всех удобств. Каждая вилла имеет 3 или 4 просторные спальни, частный ландшафтный сад и частный бассейн-инфинити. Из некоторых вилл открывается потрясающий вид на море, а все объекты расположены на просторных участках площадью более 500 м2 с застроенной площадью от 222 м2. Гибкая планировка с подвалом и солярием на крыше Покупатели могут выбрать из четырех различных планировок, все из которых тщательно разработаны для максимального использования пространства и естественного освещения. Каждая вилла имеет подвал с частной парковкой, кладовой, прачечной и двумя спальнями с ванными комнатами, соединенными с английским патио для естественного освещения и вентиляции. На первом этаже расположены одна или две дополнительные спальни с ванными комнатами, гостевой туалет и открытая кухня, соединенная с гостиной и столовой, с прямым выходом на террасу и к бассейну. Каждая вилла увенчана солярием на крыше, откуда открывается панорамный вид на горы или море и где можно установить джакузи. Высококачественная отделка и энергоэффективность по стандарту BREEAM Эти виллы построены в соответствии со стандартами сертификации BREEAM, что гарантирует отличную энергоэффективность и экологическую ответственность. В число премиальных характеристик входят: Алюминиевые окна с двойным остеклением, терморазрывом и электрическими жалюзи Полностью установленная система канального кондиционирования Моторизованные ворота для въезда автомобилей Частный бассейн и ландшафтный сад Современная кухня от PORCELANOSA, оборудованная бытовой техникой Дизайнерские ванные комнаты с мебелью, зеркалами и душевыми кабинами Керамическая плитка PORCELANOSA Выгодное расположение рядом с пляжами, гольф-полями и магазинами Финестрат — очаровательный городок, расположенный между горами и морем, который предлагает спокойствие, находясь всего в нескольких минутах от оживленного Бенидорма. Этот район сочетает в себе природную красоту с отличной инфраструктурой, международными школами, ресторанами и торговыми центрами. Расстояния до основных достопримечательностей Пляжи Бенидорма 3,5 км Торговый центр La Marina 1 км Гольф-клуб Puig Campana 3 км Старый город Бенидорма 4 км Аэропорт Аликанте 55 км Доступ к автомагистрали A7 2 км Воплотите в жизнь свою средиземноморскую мечту в Финестрате Эти виллы предлагают идеальный баланс между роскошью, природой и транспортной доступностью на побережье Коста-Бланка. Свяжитесь с нами сегодня, чтобы получить дополнительную информацию или договориться о частном просмотре этих исключительных новостроек в Финестрате.

Место нахождения

экономика

Эта информация может подвеграться изменениям и не является частью будущего контракта. Предложение может быть изменено или отозвано без предварительного уведомления. Расходы на покупку не включены в цену обьекта

Расчет ипотеки

Обмен валют

  • Фунтов стерлингов: 736.278 GBP
  • Русский рубль: 736.278 RUB
  • Швейцарский франк: 773.524 CHF
  • Китайский юань: 6.689.526 CNY
  • Доллар: 988.576 USD
  • шведская крона: 9.145.428 SEK
  • Норвежская корона: 9.146.702 NOK

Запрос информации

Responsable del tratamiento: Costa Weflen Group SL, Finalidad del tratamiento: Gestión y control de los servicios ofrecidos a través de la página Web de Servicios inmobiliarios, Envío de información a traves de newsletter y otros, Legitimación: Por consentimiento, Destinatarios: No se cederan los datos, salvo para elaborar contabilidad, Derechos de las personas interesadas: Acceder, rectificar y suprimir los datos, solicitar la portabilidad de los mismos, oponerse altratamiento y solicitar la limitación de éste, Procedencia de los datos: El Propio interesado, Información Adicional: Puede consultarse la información adicional y detallada sobre protección de datos Aquí.

Контакт

Hilde Jeanette Weflen
Руководитель компании Телефон +34 639 689 651 Эл. почта hilde@cweflengroup.com
Контакт WhatsApp
WhatsApp