
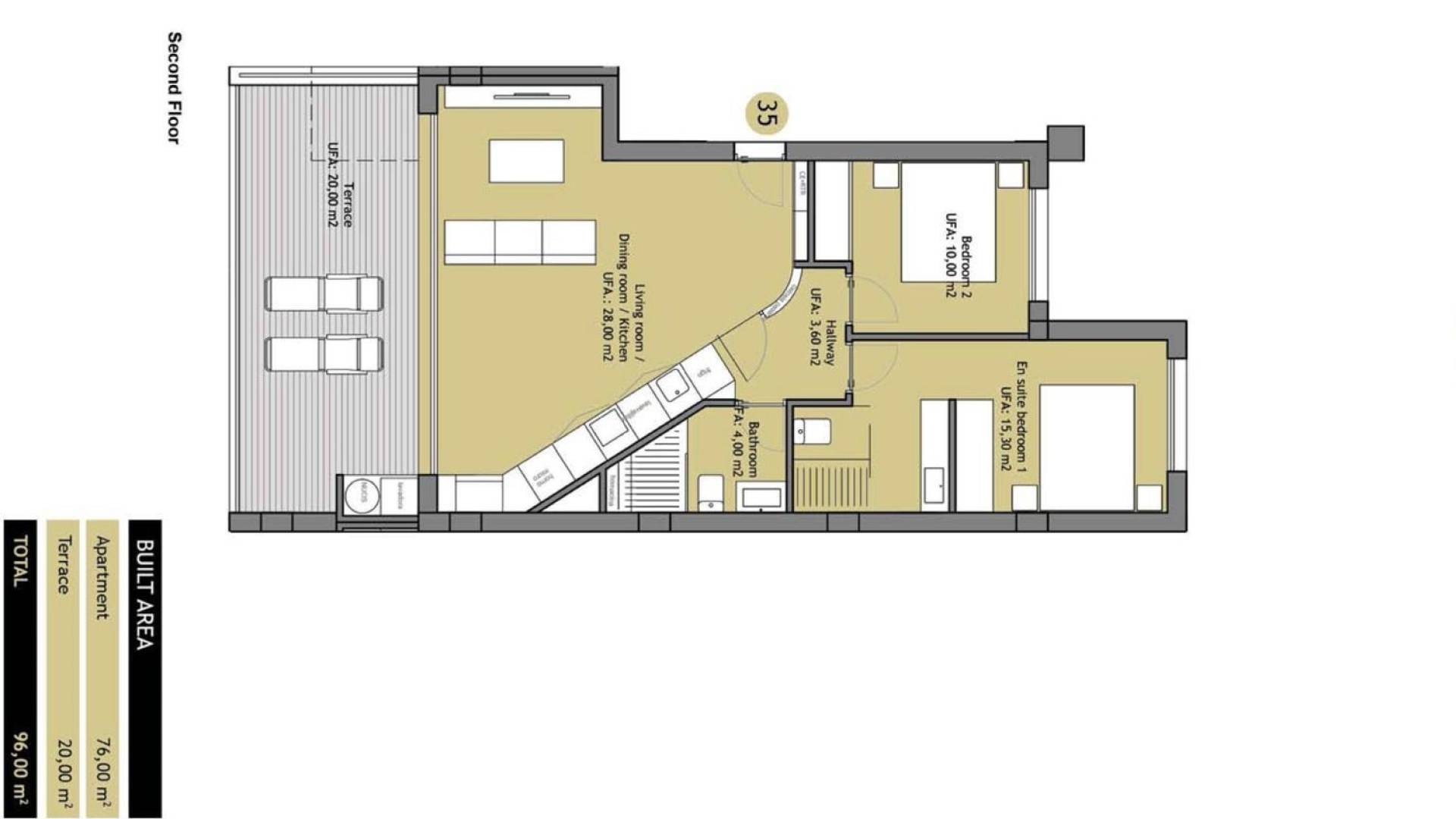
Двухспальная квартира в Хинохо в Лас-Колинас Гольф Если вы мечтаете о роскошном доме в Лас-Колинас Гольф энд Кантри Клаб в самом благоприятном климате Испании, мы предлагаем вам эту меблированную квартиру-мечту в комплексе Хинохо 1 на втором этаже. Когда вы войдете сюда, вас встретит теплая и уютная атмосфера. Эта квартира с южной ориентацией обставлена и декорирована с любовью в стиле Ибицы. В гостиной три больших окна на всю ширину, все из которых можно раздвинуть, так что терраса с тем же кафельным полом становится продолжением гостиной. С этой террасы с уютным лаунж-набором вы можете наслаждаться великолепным видом на много зелени (лес), море и Мар-Менор с Мангой. Кухня оборудована роскошной техникой Bosch и может быть полностью закрыта широкой белой стеной. Есть две спальни с большими встроенными шкафами и дополнительным местом для хранения под кроватями. В главной спальне есть роскошная ванная комната, вторая спальня также имеет свою отдельную ванную комнату. Квартира включает в себя подземную парковку и отдельную кладовую. Основные преимущества этой квартиры: Полностью меблирована Терраса с южной ориентацией Очень хорошо и чисто содержится Как новая; без повреждений и дефектов Фантастический вид Полностью расположена на солнечном юге Терраса закрыта стеклянными стенами, так что у вас также есть полный обзор, сидя внутри Кондиционер во всех комнатах Фильтрованная питьевая вода Стиральная машина/сушилка в наружном шкафу Лас-Колинас Гольф энд Кантри Клаб Мир отдельно! Лас-Колинас Гольф энд Кантри Клаб — один из самых престижных курортов на Коста-Бланка! Это эксклюзивный и уникальный гольф-курорт площадью 330 гектаров со многими спортивными сооружениями, включая гольф, падель, пеший туризм, фитнес, йогу и многое другое. Это отдельный мир, где вы можете наслаждаться здоровым средиземноморским образом жизни. Благодаря исключительному климату и первоклассному сервису курорт в последние годы был признан Ведущим вилл-курортом Испании и Европы по версии World Travel Awards. Расположенный среди холмов Деэса-де-Кампоамор — на средиземноморском побережье к югу от Аликанте — Лас-Колинас Гольф энд Кантри Клаб представляет собой уникальную природную зо.
Эта информация может подвеграться изменениям и не является частью будущего контракта. Предложение может быть изменено или отозвано без предварительного уведомления. Расходы на покупку не включены в цену обьекта